Bilocale Via Demonte, Milano (zona Niguarda)
€ 299.000Bilocale in vendita
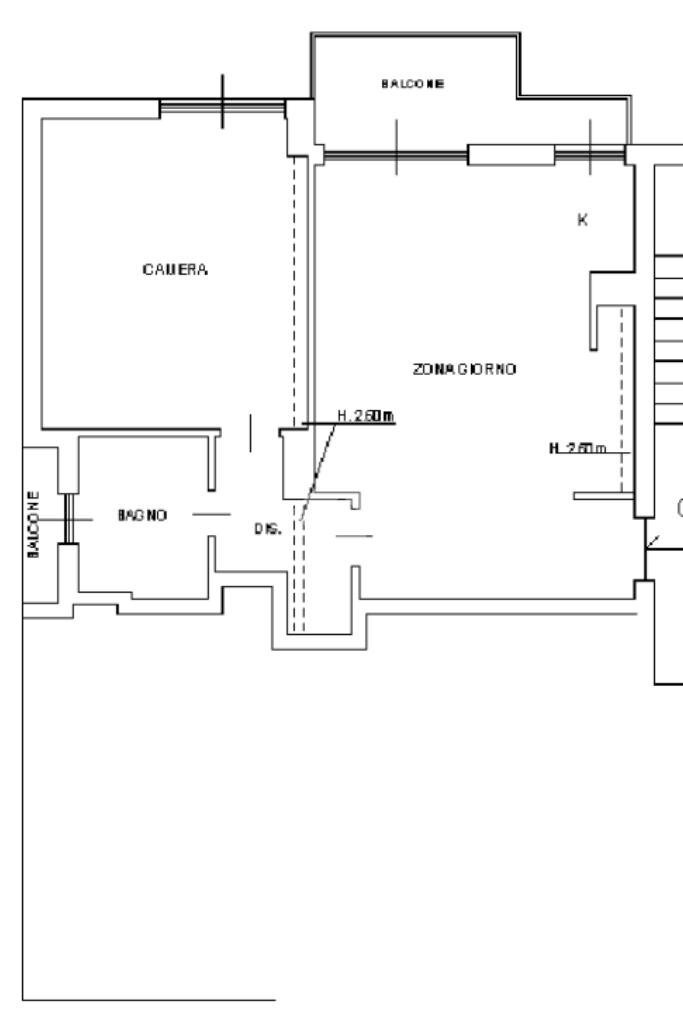
-VIA DE MONTE - Nel cuore del quartiere Niguarda a Milano, proponiamo in vendita un appartamento di 60 mq situato all'ultimo piano di un edificio costruito nel 1960.La posizione strategica dell'immobile garantisce un facile accesso ai servizi essenziali e ai mezzi di trasporto pubblico, rendendo gli spostamenti in città semplici e veloci.
L'appartamento ha un ingresso ,soggiorno con cucina a vista,camera da letto,bagno finestrato con doccia , due balconi.
La soluzione è stata ristrutturata 4 mesi fa, con aria condizionata, riscaldamento autonomo.
Verrà venduto arredato.
Completa la proprietà una cantina di pertinenza.
Libero a rogito.
L'appartamento ha un ingresso ,soggiorno con cucina a vista,camera da letto,bagno finestrato con doccia , due balconi.
La soluzione è stata ristrutturata 4 mesi fa, con aria condizionata, riscaldamento autonomo.
Verrà venduto arredato.
Completa la proprietà una cantina di pertinenza.
Libero a rogito.
Dati principali
| Riferimento | 61167410 |
| Data annuncio | 29/01/2026 |
| Contratto | Vendita |
| Tipologia | Appartamento |
| Superficie | 60 m2 |
| Locali | 2 (2 altro), 1 bagno |
| Piano | 9 di 9 totali |
Costi
| Prezzo | 299.000 € |
| Prezzo al m2 | 4.983 €/m2 |
| Spese condominiali | € 175,00/mese |
Efficienza energetica
| Anno costruzione | 1960 |
| Riscaldamento | Centralizzato |
| Tipo Alimentazione Riscaldamento | Metano |
| Classe energetica | E |
| Indice di prestazione energetica (EP GL, REN) | 0.25 kWh/m3 anno |
| Indice di prestazione energetica (EP GL, NREN) | 142.99 kWh/m3 anno |
Planimetrie
Indirizzo e mappa
Via Demonte, Milano - quartiere Niguarda
Calcolo mutuo
Prezzo di vendita:
Anticipo
20,00
Mutuo
80,00
Tasso: -+
Rata: 855 al mese
I risultati sono una stima indicativa basata sui dati inseriti e non costituiscono un’offerta finanziaria.
Inserzionista
Agenzia Tecnocasa Studio Niguarda D.I.
Via Ornato, 48, Milano
Mostra Telefono
Chiama
CONTATTA

