Negozio via Andrea Fantoni, 1, Alzano Lombardo
€ 235.000ampio negozio accessoriato nel centro storico
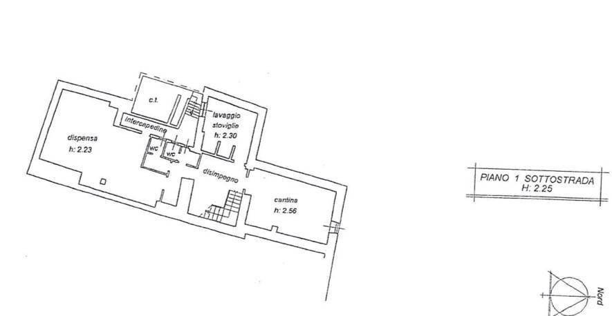
Ottima opportunità !!! Molto grazioso e caratteristico con ottime potenzialità in posizione strategica e servita inserito in contesto storico e posizione invidiabile , disponibilità di soluzione commerciale per varie attività aperte al pubblico .Ideale per attività di ristorazione gia in precedenza predisposto per attività di ristorazione e servito da cortile interno ideale per un dehor estivo .Ampia metratura con due accesi indipendenti , (uno dalla strada principale e uno secondario per il cortile interno), sviluppata al piano terra piu il piano seminterrato collegati attraverso la scala interna di accesso ad ogni piano ; al p terra si possono avere tre accessi indipendenti su tre lati. Il piano terra molto caratteristico composto da ingresso , ampio open space luminoso con camino d'epoca piu locale adiacente, entrambi comunicanti con il cortile interno molto riservato ; al primo piano invece con accesso dalla scala si trovano altri tre locali ampi open space con tre bagni e un montacarichi collegato al piano seminterrato, molto bene accessoriato con bagni, locale magazzino cella frigorifica , locale cantina , lavanderia , canna fumaria , montacarichi ,ecc. la destinazione d'uso puo restare commerciale o ripristinata in residenziale totale o parziale . Da vedere e valutare sul posto .per info e visite agenzia Grandimora dott.ssa Milea C. tel 3342132338
Dati principali
| Riferimento | ID2962119 |
| Data annuncio | 25/01/2026 |
| Contratto | Vendita |
| Tipologia | Negozio |
| Superficie | 290 m2 |
| Piano | 2 totali |
| Uso immobile | Commerciale |
Costi
| Prezzo | 235.000 € |
| Prezzo al m2 | 810 €/m2 |
Efficienza energetica
| Riscaldamento | Autonomo |
| Classe energetica | B |
| Indice di prestazione energetica (IPE) | 65 kWh/m2 anno |
Planimetrie
Indirizzo e mappa
via Andrea Fantoni, 1, Alzano Lombardo
Calcolo mutuo
Prezzo di vendita:
Anticipo
20,00
Mutuo
80,00
Tasso: -+
Rata: 672 al mese
I risultati sono una stima indicativa basata sui dati inseriti e non costituiscono un’offerta finanziaria.
Inserzionista

Grandimora
Via Masone 19, Bergamo
Mostra Telefono
Mostra Cellulare
Chiama
CONTATTA

