Villa via monte grappa 30, Merate
€ 1.400.000
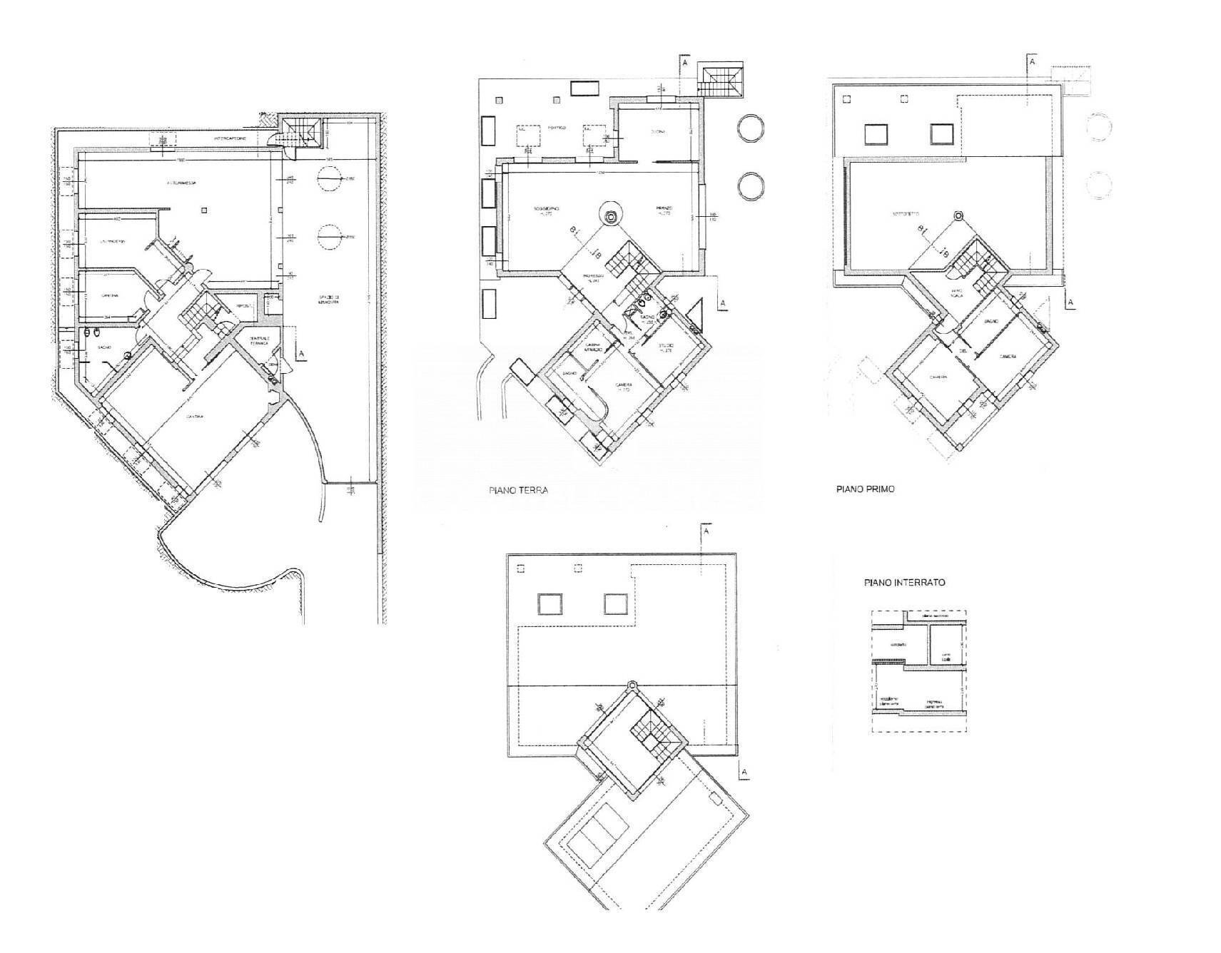
VILLA SINGOLA CON GIARDINO PRIVATO MERATE (LC) In una delle zone residenziali più riservate di Merate, in posizione dominante e panoramica, proponiamo in vendita una villa singola di ampia metratura. Limmobile è stato progettato per valorizzare al massimo lesposizione e la luce naturale: le ampie aperture e la distribuzione degli ambienti rendono ogni spazio particolarmente luminoso e accogliente. DISTRIBUZIONE DEGLI SPAZI La proprietà si sviluppa su circa 570 mq complessivi, distribuiti su più livelli, ed è circondata sui quattro lati da un giardino privato pianeggiante di circa 1.700 mq, ideale per chi desidera privacy e vivibilità allaperto. Gli spazi interni, ampi e funzionalmente distribuiti, si articolano come segue: Piano terra (circa 185 mq): accoglie lingresso e si apre su un magnifico soggiorno di circa 92 mq, estremamente luminoso e impreziosito da un importante camino centrale; completano il livello una cucina abitabile, due camere, una cabina armadio e due servizi. Piano primo (circa 58 mq): dedicato alla zona notte con due camere da letto, un bagno e un balcone. Piano torretta (circa 26 mq): ambiente di forte impatto grazie alle ampie vetrate, ideale come studio, area relax o spazio hobby. Taverna fuori terra (circa 60 mq): locale con luce diretta e accesso esterno, con collegamento a una terrazza di circa 56 mq affacciata sul giardino, perfetta per momenti conviviali e per una fruizione quotidiana degli spazi esterni. Piano interrato (circa 87 mq): destinato a locali tecnici, cantina e locali lavanderia. Completa la soluzione una grande autorimessa di circa 200 mq, adatta a più autovetture e a uso deposito. DOTAZIONI: La villa è completata da dotazioni di livello, tra cui parquet, riscaldamento a pavimento, tapparelle motorizzate, inferriate retrattili a scomparsa, impianto dallarme, porte blindate, videocitofono e cancello elettrico. Presenti inoltre filodiffusione con impianti separati tra taverna e piani superiori e impianto di aspirazione centralizzato con punti di presa su ogni livello. Una residenza ideale per chi ricerca spazi generosi, massima indipendenza e un contesto tranquillo e panoramico, senza rinunciare alla comodità dei collegamenti e dei servizi della Brianza lecchese.
Dati principali
| Riferimento | CBI135-2937-2727 |
| Data annuncio | 29/01/2026 |
| Contratto | Vendita |
| Tipologia | Villa |
| Superficie | 570 m2 |
| Locali | 5 (4 camere da letto, 1 altro), 3 bagni, cucina abitabile |
| Piano | Su più livelli, 3 totali |
| Tipo di costruzione | Signorile |
| Occupato | Libero |
| Box auto | Singolo |
| Numero posti auto | 10 |
| Arredamento | Assente |
Caratteristiche
Costi
| Prezzo | 1.400.000 € |
| Prezzo al m2 | 2.456 €/m2 |
Efficienza energetica
| Stato | Ottimo |
| Riscaldamento | Autonomo |
| Tipo Impianto Di Riscaldamento | a pavimento |
| Classe energetica | F |
| Indice di prestazione energetica (IPE) | - |
Planimetrie
Indirizzo e mappa
via monte grappa
30, Merate
Annuncio senza mappa,
prova a chiedere la posizione all'inserzionista
prova a chiedere la posizione all'inserzionista
Calcolo mutuo
Prezzo di vendita:
Anticipo
20,00
Mutuo
80,00
Tasso: -+
Rata: 4.004 al mese
I risultati sono una stima indicativa basata sui dati inseriti e non costituiscono un’offerta finanziaria.
Inserzionista

Coldwell Banker Immobiliare Morabito
Corso Sempione, 44, Milano
Mostra Cellulare
Bellegoni Anastasia
Mostra Telefono
Chiama
CONTATTA

