Trilocale Via Moncalieri 1, Brindisi
€ 110.000
Coldwell Banker Brindisi propone in vendita appartamenti di 3 vani da ristrutturare, situati allinterno di un palazzo completamente riqualificato nel 2020, ideale per chi desidera personalizzare la propria abitazione. Ledificio è stato oggetto di importanti interventi di rifacimento facciata e riqualificazione delle parti comuni, tra cui: sostituzione dellascensore nuove finestre scala e portoni cancello automatico cassette postali contatori gas colonne montanti fognarie impianto di videosorveglianza Limmobile è ubicato in zona centrale e ben servita, alle spalle dellex Liceo Scientifico Enrico Fermi e a pochi metri da Piazza Sapri. DISPONIBILITÀ 1° piano 3 vani | ca. 90 mq ' 110.000 2° piano 3 vani | ca. 90 mq ' 110.000 4° piano 3 vani | ca. 90 mq ' 110.000 5° piano n.2 appartamenti di 3 vani | ca. 90 mq ' 110.000 ciascuno Possibilità di acquisto di due unità attigue al quinto piano per chi necessita di ampie metrature. Possibilità di acquisto delle pertinenze: Posti auto (ca. 13 mq) ' 8.000 cad. Cantine (ca. 5 mq) ' 5.000 cad. Unottima soluzione sia come abitazione principale che come investimento. Un esclusiva Coldwell Banker Contatti i nostri uffici per ulteriori informazioni oppure per richiedere una visita sullimmobile.
Dati principali
| Riferimento | CBI092-1772-63966 |
| Data annuncio | 29/01/2026 |
| Contratto | Vendita |
| Tipologia | Appartamento |
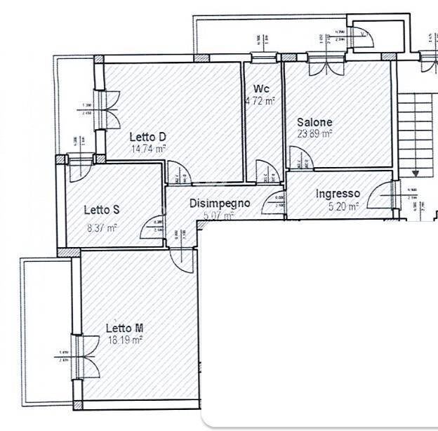
| Superficie | 90 m2 |
| Locali | 3 (2 camere da letto, 1 altro), 1 bagno, cucina abitabile |
| Piano | 2 di 6 totali |
| Tipo di costruzione | Media |
| Occupato | Libero |
| Box auto | Assente |
| Arredamento | Assente |
Caratteristiche
Costi
| Prezzo | 110.000 € |
| Prezzo al m2 | 1.222 €/m2 |
Efficienza energetica
| Stato | Da ristrutturare |
| Riscaldamento | Assente |
| Tipo Alimentazione Riscaldamento | Altro |
| Classe energetica | G |
| Indice di prestazione energetica (IPE) | 175 kWh/m2 anno |
Planimetrie
Indirizzo e mappa
Via Moncalieri
1, Brindisi
Annuncio senza mappa,
prova a chiedere la posizione all'inserzionista
prova a chiedere la posizione all'inserzionista
Calcolo mutuo
Prezzo di vendita:
Anticipo
20,00
Mutuo
80,00
Tasso: -+
Rata: 315 al mese
I risultati sono una stima indicativa basata sui dati inseriti e non costituiscono un’offerta finanziaria.
Chiama
CONTATTA


