Quadrilocale Str. Pedemontana est, Langhirano
€ 195.000Quadrilocale in vendita
PILASTRO: in una zona residenziale tranquilla e ben curata, all’interno di una palazzina del 2004 servita da ascensore ,proponiamo questo appartamento al primo piano, una soluzione ideale per chi cerca comfort e funzionalità.
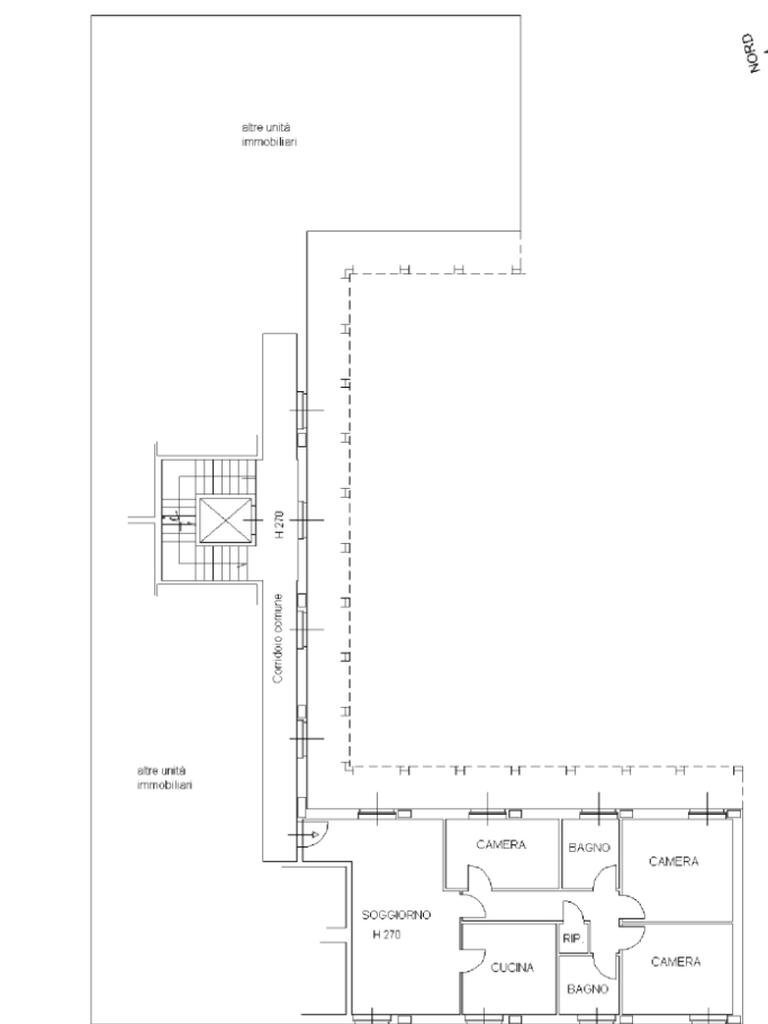
L’ingresso conduce a una zona giorno luminosa, con soggiorno accogliente perfetto per i momenti di relax e una cucina separata, pratica e ben organizzata. Gli ambienti sono ben distribuiti e pensati per una vita quotidiana comoda e ordinata.
La zona notte offre tre camere da letto, di cui due matrimoniali e una singola, adatta anche come studio o stanza multifunzione. I due bagni, entrambi con box doccia, garantiscono praticità e comfort per tutta la famiglia.
Completano la proprietà cantina, garage e due posti auto privati coperti, un plus raro e molto apprezzato. Il riscaldamento autonomo consente una gestione efficiente dei consumi.
Una casa pronta da abitare, in un contesto recente e ben tenuto, ideale per famiglie o per chi desidera spazi ben organizzati e un ambiente sereno in cui vivere.
Referente: Melissa 380.124.5415
Si avvertono i Signori clienti che gli indirizzi inseriti all'interno dell'annuncio sono puramente indicativi e non rispecchiano la realtà. Questa indicazione vuole essere un ausilio nell'indicazione della zona pur rispettando la Privacy dei venditori.
Ulteriori informazioni possono essere fornite presso il nostro ufficio telefonicamente. Se è vostra intenzione VENDERE o AFFITTARE un immobile, contattandoci allo 0521/88.49.85, vi forniremo una VALUTAZIONE GRATUITA ,in modo tale da tener aggiornato il valore secondo i recenti sviluppi del mercato immobiliare. Se invece CERCATE in ACQUISTO o in AFFITTO un immobile, senza alcun impegno, vi forniremo maggiori indicazioni su ciò che è presente nel mercato, seguendovi costantemente nella vostra ricerca . Se quello che state cercando in questo momento non è presente nelle nostre proposte, lasciate una richiesta nella nostra BANCA DATI presso l'ufficio TECNOCASA più vicino, indicando tutte le esigenze e le caratteristiche che dovrà avere la vostra futura abitazione. Sarete contattati dal nostro Consulente di Zona il quale cercherà il vostro immobile agenzia ha un proprio titolare ed è presenti informazioni non costituiscono elemento contrattuale
L’ingresso conduce a una zona giorno luminosa, con soggiorno accogliente perfetto per i momenti di relax e una cucina separata, pratica e ben organizzata. Gli ambienti sono ben distribuiti e pensati per una vita quotidiana comoda e ordinata.
La zona notte offre tre camere da letto, di cui due matrimoniali e una singola, adatta anche come studio o stanza multifunzione. I due bagni, entrambi con box doccia, garantiscono praticità e comfort per tutta la famiglia.
Completano la proprietà cantina, garage e due posti auto privati coperti, un plus raro e molto apprezzato. Il riscaldamento autonomo consente una gestione efficiente dei consumi.
Una casa pronta da abitare, in un contesto recente e ben tenuto, ideale per famiglie o per chi desidera spazi ben organizzati e un ambiente sereno in cui vivere.
Referente: Melissa 380.124.5415
Si avvertono i Signori clienti che gli indirizzi inseriti all'interno dell'annuncio sono puramente indicativi e non rispecchiano la realtà. Questa indicazione vuole essere un ausilio nell'indicazione della zona pur rispettando la Privacy dei venditori.
Ulteriori informazioni possono essere fornite presso il nostro ufficio telefonicamente. Se è vostra intenzione VENDERE o AFFITTARE un immobile, contattandoci allo 0521/88.49.85, vi forniremo una VALUTAZIONE GRATUITA ,in modo tale da tener aggiornato il valore secondo i recenti sviluppi del mercato immobiliare. Se invece CERCATE in ACQUISTO o in AFFITTO un immobile, senza alcun impegno, vi forniremo maggiori indicazioni su ciò che è presente nel mercato, seguendovi costantemente nella vostra ricerca . Se quello che state cercando in questo momento non è presente nelle nostre proposte, lasciate una richiesta nella nostra BANCA DATI presso l'ufficio TECNOCASA più vicino, indicando tutte le esigenze e le caratteristiche che dovrà avere la vostra futura abitazione. Sarete contattati dal nostro Consulente di Zona il quale cercherà il vostro immobile agenzia ha un proprio titolare ed è presenti informazioni non costituiscono elemento contrattuale
Dati principali
| Riferimento | 61168517 |
| Data annuncio | 28/01/2026 |
| Contratto | Vendita |
| Tipologia | Appartamento |
| Superficie | 134 m2 |
| Locali | 4 (4 altro), 2 bagni |
| Piano | 1 di 2 totali |
| Numero posti auto | 2 |
Costi
| Prezzo | 195.000 € |
| Prezzo al m2 | 1.455 €/m2 |
| Spese condominiali | € 125,00/mese |
Efficienza energetica
| Anno costruzione | 2004 |
| Riscaldamento | Autonomo |
| Tipo Alimentazione Riscaldamento | Gasolio |
| Classe energetica | G |
| Indice di prestazione energetica (IPE) | - |
Planimetrie
Indirizzo e mappa
Str. Pedemontana est, Langhirano
Calcolo mutuo
Prezzo di vendita:
Anticipo
20,00
Mutuo
80,00
Tasso: -+
Rata: 558 al mese
I risultati sono una stima indicativa basata sui dati inseriti e non costituiscono un’offerta finanziaria.
Inserzionista
Chiama
CONTATTA

