Quadrilocale Via Tibaldi, Mappano
€ 228.000Quadrilocale in vendita
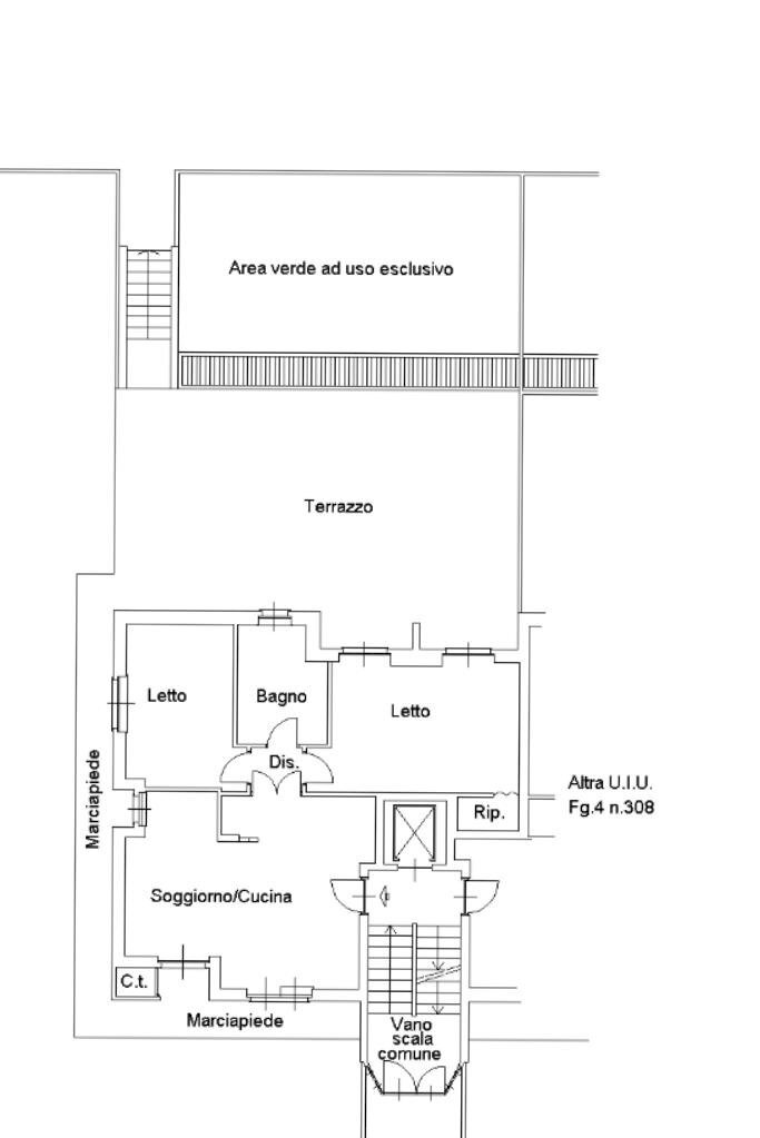
Nel comune di Mappano, proponiamo in vendita un appartamento con giardino che offre un perfetto equilibrio tra comfort e funzionalità.
Situato in una piccola palazzina, l'immobile si estende su una superficie di 100 mq, garantendo un'ampia metratura interna ideale per chi cerca spazio e comodità.
L'appartamento è composto da quattro locali ben distribuiti, tra cui una luminosa zona giorno che si affaccia direttamente sul giardino privato che si estende su tripla area: lato est, sud e ovest, perfetto per momenti di relax all'aperto.
Le due camere da letto offrono un ambiente accogliente e riservato, ideale per famiglie o per chi desidera uno spazio aggiuntivo per ospiti o studio.
Questa soluzione abitativa rappresenta un'opportunità unica per chi desidera vivere in un contesto tranquillo con del verde privato e senza rinunciare alla comodità degli spazi interni.
Completa la soluzione una cantina e un posto auto interno cortile.
Per avere ulteriori informazioni o per fissare un appuntamento può chiamarci al numero oppure , mandarci un sms al nostro numero whatsapp o passate a trovarci presso l'ufficio TECNOCASA in Strada Cuorgnè 138 a Mappano . Se fosse interessato ad una valutazione GRATUITA e SENZA IMPEGNO del Suo immobile, siamo a Sua completa disposizione!
Le ricordiamo, inoltre, che la nostra struttura offre CONSULENZE DI MUTUI!
Situato in una piccola palazzina, l'immobile si estende su una superficie di 100 mq, garantendo un'ampia metratura interna ideale per chi cerca spazio e comodità.
L'appartamento è composto da quattro locali ben distribuiti, tra cui una luminosa zona giorno che si affaccia direttamente sul giardino privato che si estende su tripla area: lato est, sud e ovest, perfetto per momenti di relax all'aperto.
Le due camere da letto offrono un ambiente accogliente e riservato, ideale per famiglie o per chi desidera uno spazio aggiuntivo per ospiti o studio.
Questa soluzione abitativa rappresenta un'opportunità unica per chi desidera vivere in un contesto tranquillo con del verde privato e senza rinunciare alla comodità degli spazi interni.
Completa la soluzione una cantina e un posto auto interno cortile.
Per avere ulteriori informazioni o per fissare un appuntamento può chiamarci al numero oppure , mandarci un sms al nostro numero whatsapp o passate a trovarci presso l'ufficio TECNOCASA in Strada Cuorgnè 138 a Mappano . Se fosse interessato ad una valutazione GRATUITA e SENZA IMPEGNO del Suo immobile, siamo a Sua completa disposizione!
Le ricordiamo, inoltre, che la nostra struttura offre CONSULENZE DI MUTUI!
Dati principali
| Riferimento | 61168126 |
| Data annuncio | 28/01/2026 |
| Contratto | Vendita |
| Tipologia | Appartamento |
| Superficie | 100 m2 |
| Locali | 4 (4 altro), 1 bagno |
| Piano | 3 totali |
| Numero posti auto | 1 |
Costi
| Prezzo | 228.000 € |
| Prezzo al m2 | 2.280 €/m2 |
| Spese condominiali | € 117,00/mese |
Efficienza energetica
| Anno costruzione | 1998 |
| Riscaldamento | Autonomo |
| Tipo Alimentazione Riscaldamento | Metano |
| Classe energetica | Immobile esente da certificazione energetica |
Planimetrie
Video
Indirizzo e mappa
Via Tibaldi, Mappano
Calcolo mutuo
Prezzo di vendita:
Anticipo
20,00
Mutuo
80,00
Tasso: -+
Rata: 652 al mese
I risultati sono una stima indicativa basata sui dati inseriti e non costituiscono un’offerta finanziaria.
Inserzionista
Chiama
CONTATTA

