Monolocale Via Caianello, Milano
€ 265.000
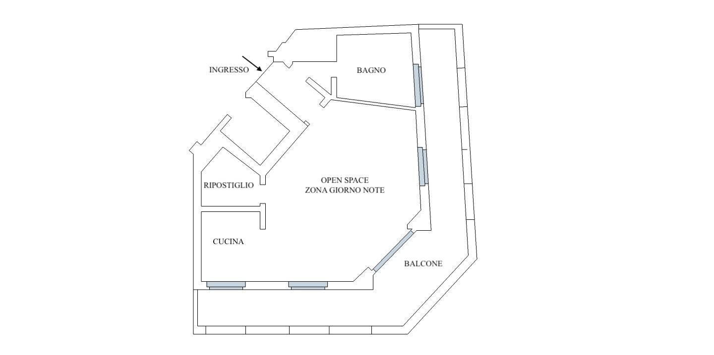
Open space in vendita a Dergano, Milano. Via Caianello, in stabile signorile di moderna costruzione (2006) con giardino condominiale proponiamo, al primo piano con ascensore, appartamento di 65 mq commerciali composto da: ingresso, ampio open space con zona giorno/notte e cucina a vista, bagno, ripostiglio e balconata di 24 mq che copre tutto il perimetro della casa, cantina e box singolo di 16 mq. Limmobile è situato al primo piano e ha doppia esposizione angolare esterna. Lappartamento è in ottime condizioni, fornito di porta blindata, infissi in legno con doppi vetri, videocitofono, riscaldamento autonomo. Il palazzo è dotato di video-sorveglianza con servizio di portineria mezza giornata. Ci sono almeno 3 motivi per acquistarlo: 1) ottime rifiniture 2) zona in costante sviluppo 3) ideale per chi ama stabili di moderna costruzione Classe Energetica E Ipe 95,26 Kwh/m2a. Prezzo euro 265.000 oltre 30.000 euro per il box. Spese condominiali annuali euro 850, per il box euro 100. Il condominio è situato in zona residenziale, nelle vicinanze sono presenti supermercati (CONAD, CARREFOUR), negozi di prima necessità, centri ricreativi, farmacie, bar, ristoranti, pub e spazi verdi. La zona è ben servita dai mezzi di trasporto pubblico: - bus 82 - MM3 fermata Dergano a pochi minuti a piedi, con cui si raggiunge il centro in 10 minuti, la stazione delle Ferrovie Nord di Affori F.N. in sole due fermate e la stazione Centrale in 5 minuti. Vicinanza a tangenziali e autostrade. Chiama il numero 02.37052776. Agenzia Immobiliare Sarpi, dal lunedì al venerdì dalle 9.30 alle 13 e dalle 15 alle 18.30, il sabato dalle 9 alle 13.
Dati principali
| Riferimento | 1806 |
| Data annuncio | 28/01/2026 |
| Contratto | Vendita |
| Tipologia | Appartamento |
| Superficie | 65 m2 |
| Locali | 1 (1 altro), 1 bagno, cucina a vista |
| Piano | 1 di 5 totali |
| Tipo di costruzione | Signorile |
| Occupato | Libero |
| Box auto | Singolo |
| Arredamento | Assente |
Caratteristiche
Costi
| Prezzo | 265.000 € |
| Prezzo al m2 | 4.077 €/m2 |
Efficienza energetica
| Stato | Ottimo |
| Riscaldamento | Autonomo |
| Classe energetica | E |
| Indice di prestazione energetica (IPE) | - |
Planimetrie
Video
Indirizzo e mappa
Via Caianello, Milano
Annuncio senza mappa,
prova a chiedere la posizione all'inserzionista
prova a chiedere la posizione all'inserzionista
Calcolo mutuo
Prezzo di vendita:
Anticipo
20,00
Mutuo
80,00
Tasso: -+
Rata: 758 al mese
I risultati sono una stima indicativa basata sui dati inseriti e non costituiscono un’offerta finanziaria.
Inserzionista

Sarpi Agenzia 18
via Cenisio 42, Milano
Mostra Telefono
Mostra Cellulare
Chiama
CONTATTA

