Trilocale Via Ciriè, Borgaro Torinese
€ 135.000Trilocale in vendita
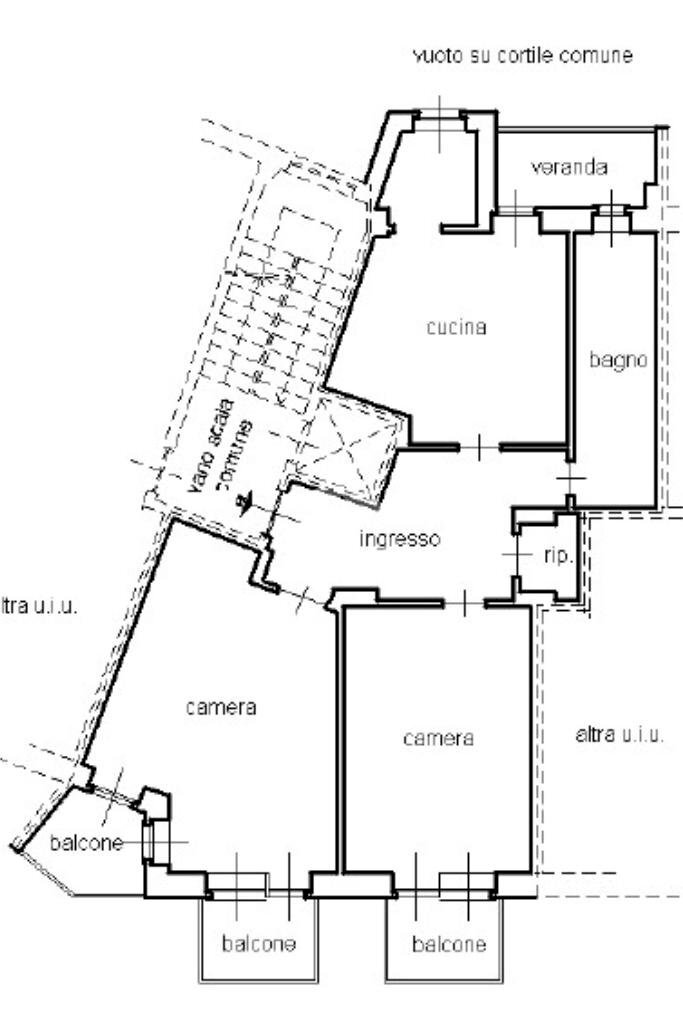
Nel cuore di Borgaro Torinese, proponiamo un appartamento di 85 mq situato al piano medio di un edificio dotato di ascensore. L'immobile, costruito nel 1980, offre una disposizione funzionale degli spazi, ideale per chi cerca comfort e praticità. L'appartamento si compone di tre locali: un soggiorno accogliente con angolo cottura e due camere da letto luminose. Il bagno è ben organizzato e facilmente accessibile.
La presenza di tre balconi garantisce un'ottima luminosità naturale e offre spazi esterni per momenti di relax.
Completa la proprietà un box auto, che aggiunge comodità e sicurezza. La posizione centrale permette di raggiungere facilmente i principali servizi e le vie di comunicazione, rendendo questa soluzione abitativa adatta a diverse esigenze.
La presenza di tre balconi garantisce un'ottima luminosità naturale e offre spazi esterni per momenti di relax.
Completa la proprietà un box auto, che aggiunge comodità e sicurezza. La posizione centrale permette di raggiungere facilmente i principali servizi e le vie di comunicazione, rendendo questa soluzione abitativa adatta a diverse esigenze.
Dati principali
| Riferimento | 61168659 |
| Data annuncio | 27/01/2026 |
| Contratto | Vendita |
| Tipologia | Appartamento |
| Superficie | 85 m2 |
| Locali | 3 (3 altro), 1 bagno |
| Piano | 4 di 7 totali |
Costi
| Prezzo | 135.000 € |
| Prezzo al m2 | 1.588 €/m2 |
| Spese condominiali | € 108,00/mese |
Efficienza energetica
| Anno costruzione | 1980 |
| Riscaldamento | Centralizzato |
| Tipo Alimentazione Riscaldamento | Metano |
| Classe energetica | Immobile esente da certificazione energetica |
Planimetrie
Indirizzo e mappa
Via Ciriè, Borgaro Torinese
Calcolo mutuo
Prezzo di vendita:
Anticipo
20,00
Mutuo
80,00
Tasso: -+
Rata: 386 al mese
I risultati sono una stima indicativa basata sui dati inseriti e non costituiscono un’offerta finanziaria.
Inserzionista
Chiama
CONTATTA

