Bilocale Località Cala del Faro, Arzachena
€ 500.000
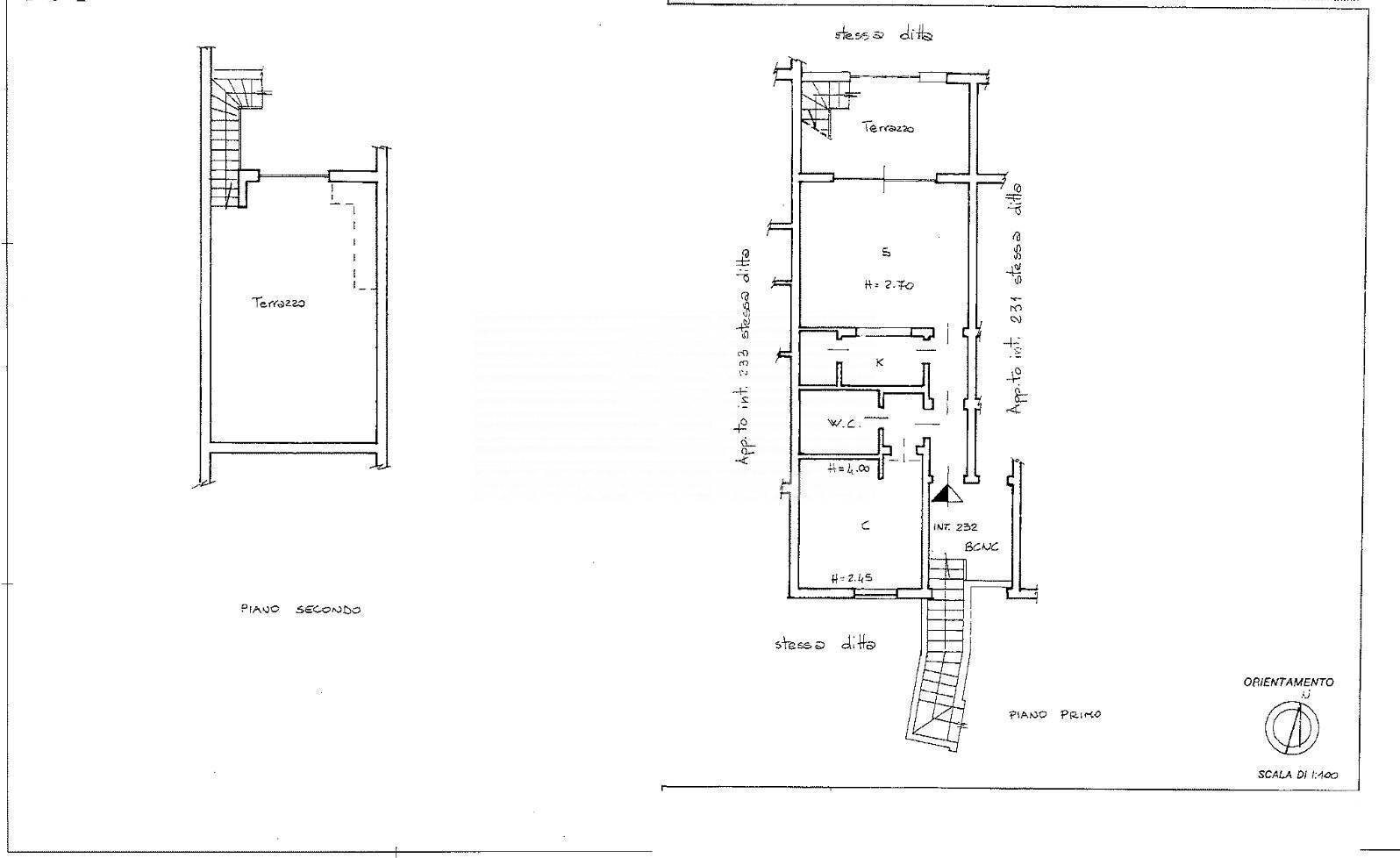
Appartamento Vista Mare in Costa Smeralda Allinterno dellelegante consorzio I Delfini a Cala del Faro, nel cuore della rinomata Costa Smeralda, proponiamo in vendita un luminoso e ampio appartamento con vista mare, situato al primo piano con solarium privato al secondo piano, libero su due lati. Progettata dal celebre Architetto Luigi Vietti, la proprietà si distingue per il suo stile raffinato e larmonia con il paesaggio circostante. Gli ambienti interni sono così distribuiti: - Ampio soggiorno con terrazza panoramica vista mare - Cucina funzionale - Camera matrimoniale - Bagno finestrato Posizione privilegiata, riparata dai venti predominanti, ideale per vivere momenti di relax allaria aperta. Lingresso è servito da una scala privata dalle linee morbide, che conduce direttamente alla proprietà. Caratteristiche principali: - Soffitti alti mansardati con travi in legno a vista - Pavimenti in cotto artigianale - Pareti decorate a mano con eleganti motivi floreali Cala del Faro è una delle spiagge più amate della Costa Smeralda, con sabbia dorata e mare cristallino, perfetta per nuoto, snorkeling e windsurf. Il villaggio è immerso nel verde, con ampi prati curati, ideali anche per chi ama rilassarsi lontano dalla sabbia o praticare beach volley. Servizi inclusi nel complesso Cala del Faro: La proprietà gode di tutti i comfort offerti dal prestigioso consorzio, pensati per garantire benessere e tranquillità in ogni stagione: - Spiaggia privata attrezzata con lettini e ombrelloni riservati ai residenti - Area giochi dedicata ai bambini - Servizio di guardiania e custode attivo tutto lanno - Aree verdi curate con prato e fioriture stagionali - Bar sulla spiaggia privata, ideale per momenti di relax fronte mare Una cornice esclusiva che rende questa casa perfetta per chi cerca mare, natura e servizi di qualità in uno degli angoli più affascinanti della Costa Smeralda.
Dati principali
| Riferimento | CBI038-525-301665 |
| Data annuncio | 27/01/2026 |
| Contratto | Vendita |
| Tipologia | Appartamento |
| Superficie | 69 m2 |
| Locali | 2 (1 camera da letto, 1 altro), 1 bagno, cucina cucinino |
| Piano | Su più livelli, 2 totali |
| Tipo di costruzione | Signorile |
| Occupato | Libero |
| Box auto | Assente |
| Arredamento | Completo |
Caratteristiche
Costi
| Prezzo | 500.000 € |
| Prezzo al m2 | 7.246 €/m2 |
Efficienza energetica
| Stato | Ottimo |
| Riscaldamento | Assente |
| Classe energetica | G |
| Indice di prestazione energetica (IPE) | 175 kWh/m2 anno |
Planimetrie
Indirizzo e mappa
Località Cala del Faro, Arzachena
Annuncio senza mappa,
prova a chiedere la posizione all'inserzionista
prova a chiedere la posizione all'inserzionista
Calcolo mutuo
Prezzo di vendita:
Anticipo
20,00
Mutuo
80,00
Tasso: -+
Rata: 1.430 al mese
I risultati sono una stima indicativa basata sui dati inseriti e non costituiscono un’offerta finanziaria.
Inserzionista

Coldwell Banker Gruppo Bodini
Via Orazio, 23, Roma
Mostra Telefono
Chiama
CONTATTA

