Porzione di casa Via ulzio, Rivoli
€ 359.000Porzione di trifamiliare in vendita
A pochi passi dal centro, in una zona tranquilla e riservata, si trova questa abitazione capace di unire comfort, indipendenza e spazi da vivere.
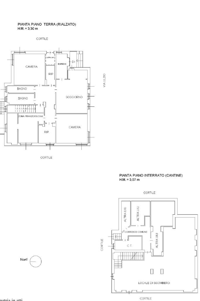
L’ingresso accompagna in un’ampia e luminosa zona giorno, un ambiente accogliente dove rilassarsi e condividere momenti speciali. La cucina abitabile, collegata al balcone tramite porta-finestra, invita a vivere l’esterno: da qui si accede direttamente al giardino privato, uno spazio intimo e ben esposto, ideale per pranzi all’aperto, giochi all’aria aperta o semplicemente per godersi il silenzio.
La zona notte, ben separata, ospita tre camere da letto, di cui due matrimoniali e una singola, pensate per garantire privacy e tranquillità a tutta la famiglia. I due bagni finestrati, entrambi con doccia, completano il piano con funzionalità ed eleganza.
Una scala interna conduce alla taverna, attualmente allo stato grezzo e con la stessa metratura dell’abitazione: uno spazio da trasformare e personalizzare secondo i propri desideri, che sia una zona hobby, una palestra o una grande area conviviale.
A completare la proprietà, un box auto doppio in lunghezza.
Una casa che offre indipendenza, luce e ampi spazi, perfetta per chi desidera vivere in un contesto sereno, senza rinunciare alla comodità dei servizi.
L’ingresso accompagna in un’ampia e luminosa zona giorno, un ambiente accogliente dove rilassarsi e condividere momenti speciali. La cucina abitabile, collegata al balcone tramite porta-finestra, invita a vivere l’esterno: da qui si accede direttamente al giardino privato, uno spazio intimo e ben esposto, ideale per pranzi all’aperto, giochi all’aria aperta o semplicemente per godersi il silenzio.
La zona notte, ben separata, ospita tre camere da letto, di cui due matrimoniali e una singola, pensate per garantire privacy e tranquillità a tutta la famiglia. I due bagni finestrati, entrambi con doccia, completano il piano con funzionalità ed eleganza.
Una scala interna conduce alla taverna, attualmente allo stato grezzo e con la stessa metratura dell’abitazione: uno spazio da trasformare e personalizzare secondo i propri desideri, che sia una zona hobby, una palestra o una grande area conviviale.
A completare la proprietà, un box auto doppio in lunghezza.
Una casa che offre indipendenza, luce e ampi spazi, perfetta per chi desidera vivere in un contesto sereno, senza rinunciare alla comodità dei servizi.
Dati principali
| Riferimento | 61165431 |
| Data annuncio | 26/01/2026 |
| Contratto | Vendita |
| Tipologia | Porzione di casa |
| Superficie | 220 m2 |
| Locali | 5 (5 altro), 2 bagni |
| Piano | 1 totali |
Costi
| Prezzo | 359.000 € |
| Prezzo al m2 | 1.632 €/m2 |
Efficienza energetica
| Anno costruzione | 1980 |
| Riscaldamento | Autonomo |
| Tipo Alimentazione Riscaldamento | Metano |
| Classe energetica | E |
| Indice di prestazione energetica (EP GL, REN) | 315.6 kWh/m3 anno |
| Indice di prestazione energetica (EP GL, NREN) | 315.6 kWh/m3 anno |
Planimetrie
Video
Indirizzo e mappa
Via ulzio, Rivoli
Calcolo mutuo
Prezzo di vendita:
Anticipo
20,00
Mutuo
80,00
Tasso: -+
Rata: 1.027 al mese
I risultati sono una stima indicativa basata sui dati inseriti e non costituiscono un’offerta finanziaria.
Inserzionista
Agenzia Tecnocasa Studio Castello Sas
Corso Susa, 44, Rivoli
Mostra Telefono
Chiama
CONTATTA

