Casa semi indipendente Via Allegara, Prignano sulla Secchia
€ 32.000Casa semindipendente in vendita
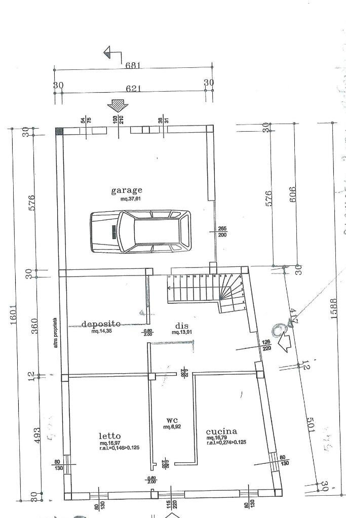
SASSUOLO: RIF. 507 - Nel cuore della tranquilla località di Casa Azzoni, nel comune di Prignano sulla Secchia, si propone in vendita una casa semindipendente di 140 mq. Questa dimora d'epoca, costruita nel 1950, si sviluppa su più livelli, offrendo spazi versatili e accoglienti. La struttura conserva il fascino del passato, con dettagli architettonici che raccontano la sua storia. Gli interni, da personalizzare secondo le proprie esigenze, permettono di creare un ambiente unico e confortevole. La posizione strategica consente di godere della quiete della campagna, pur rimanendo a breve distanza dai principali servizi. Ideale per chi cerca una residenza che unisca il carattere storico a potenzialità di personalizzazione, questa proprietà rappresenta un'opportunità interessante per chi desidera vivere in un contesto autentico e suggestivo. LE PLANIMETRIE ALLEGATE DI STATO DI PROGETTO
Dati principali
| Riferimento | 61167209 |
| Data annuncio | 24/01/2026 |
| Contratto | Vendita |
| Tipologia | Casa semi indipendente |
| Superficie | 140 m2 |
| Piano | 2 totali |
Costi
| Prezzo | 32.000 € |
| Prezzo al m2 | 229 €/m2 |
Efficienza energetica
| Anno costruzione | 1950 |
| Riscaldamento | Assente |
| Classe energetica | Immobile esente da certificazione energetica |
Planimetrie
Indirizzo e mappa
Via Allegara, Prignano sulla Secchia
Calcolo mutuo
Prezzo di vendita:
Anticipo
20,00
Mutuo
80,00
Tasso: -+
Rata: 92 al mese
I risultati sono una stima indicativa basata sui dati inseriti e non costituiscono un’offerta finanziaria.
Inserzionista
Chiama
CONTATTA

