Appartamento all'asta Via Tre Scalini 5, Rapallo
€ 66.375Appartamento - Quadrilocale a Rapallo
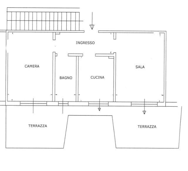
Appartamento residenziale composto da ingresso, cucina, bagno, sala e camera da letto, oltre a due terrazze di pertinenza. - Il Prezzo visualizzato è la Base d'Asta in quanto l’immobile è oggetto di esecuzione immobiliare venduto tramite Asta Giudiziaria. - L'immobile aggiudicato, viene venduto libero e sgombro da persone cose ed ipoteche nello stato di fatto e di diritto in cui si trova. - Non rappresentiamo il Tribunale, ma lavoriamo nell'esclusivo interesse del potenziale acquirente per garantire un acquisto sicuro. - I consulenti di ASTE ITALIA ti assisteranno in tutte le attività dell'iter giudiziario dalla visita dell'immobile fino alla consegna chiavi. - Contatta il nostro Servizio Clienti , i nostri operatori sono a disposizione per chiarire i molteplici dubbi per partecipare alle ASTE.
Dati principali
| Riferimento | GE327/22LU-1404-26-1300 |
| Data annuncio | 23/01/2026 |
| Contratto | Vendita |
| Tipologia | Appartamento |
| Superficie | 66 m2 |
| Locali | 4 (1 camera da letto, 3 altro), 1 bagno |
| Piano | 1 totali |
| Numero di terrazzi | 1 |
Costi
| Offerta minima | € 66.375 |
| Prezzo al m2 | 1.006 €/m2 |
Efficienza energetica
| Classe energetica | G |
Planimetrie
Indirizzo e mappa
Via Tre Scalini 5, Rapallo
Calcolo mutuo
Prezzo di vendita:
Anticipo
20,00
Mutuo
80,00
Tasso: -+
Rata: 190 al mese
I risultati sono una stima indicativa basata sui dati inseriti e non costituiscono un’offerta finanziaria.
Inserzionista

DOMY ONLINE S.R.L.
Via San Lorenzo 5 Int. 41, Genova
Mostra Telefono
Mostra Cellulare
Chiama
CONTATTA

