Appartamento via delle rimembranze 14, Casalincontrada
€ 43.500Appartamento - 2 vani letto a Centro, Casalincontrada
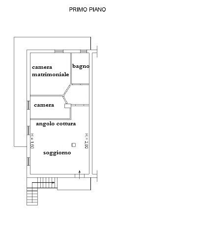
Casalincontrada: vi proponiamo in vendita grazioso appartamento mansardato in piccolo stabile di sole 4 unità abitative. L'appartamento è sito al piano primo, con ingresso autonomo ed indipendente, composto da ingresso, soggiorno con angolo cottura, disimpegno, camera matrimoniale, piccola cameretta e balcone con vista panoramica. L'immobile è termoautonomo, arredato e con disponibilità immediata, soluzione adatta per giovane coppia, single o ad uso investimento.
Dati principali
| Riferimento | man1917 |
| Data annuncio | 23/01/2026 |
| Contratto | Vendita |
| Tipologia | Appartamento |
| Superficie | 72 m2 |
| Locali | 4 (2 camere da letto, 2 altro), 1 bagno |
| Piano | 1 totali |
| Numero di balconi | 1 |
| Arredamento | Completo |
Costi
| Prezzo | 43.500 € |
| Prezzo al m2 | 604 €/m2 |
Efficienza energetica
| Anno costruzione | 2005 |
| Classe energetica | G |
Planimetrie
Indirizzo e mappa
via delle rimembranze 14, Casalincontrada
Calcolo mutuo
Prezzo di vendita:
Anticipo
20,00
Mutuo
80,00
Tasso: -+
Rata: 124 al mese
I risultati sono una stima indicativa basata sui dati inseriti e non costituiscono un’offerta finanziaria.
Inserzionista

STUDIO CASA SAS
Via XX Settembre, 45/47 Zona Scalo, Manoppello
Mostra Telefono
Mostra Cellulare
Chiama
CONTATTA

