Attico Via Guido Sinopoli 15, Conegliano
€ 340.000
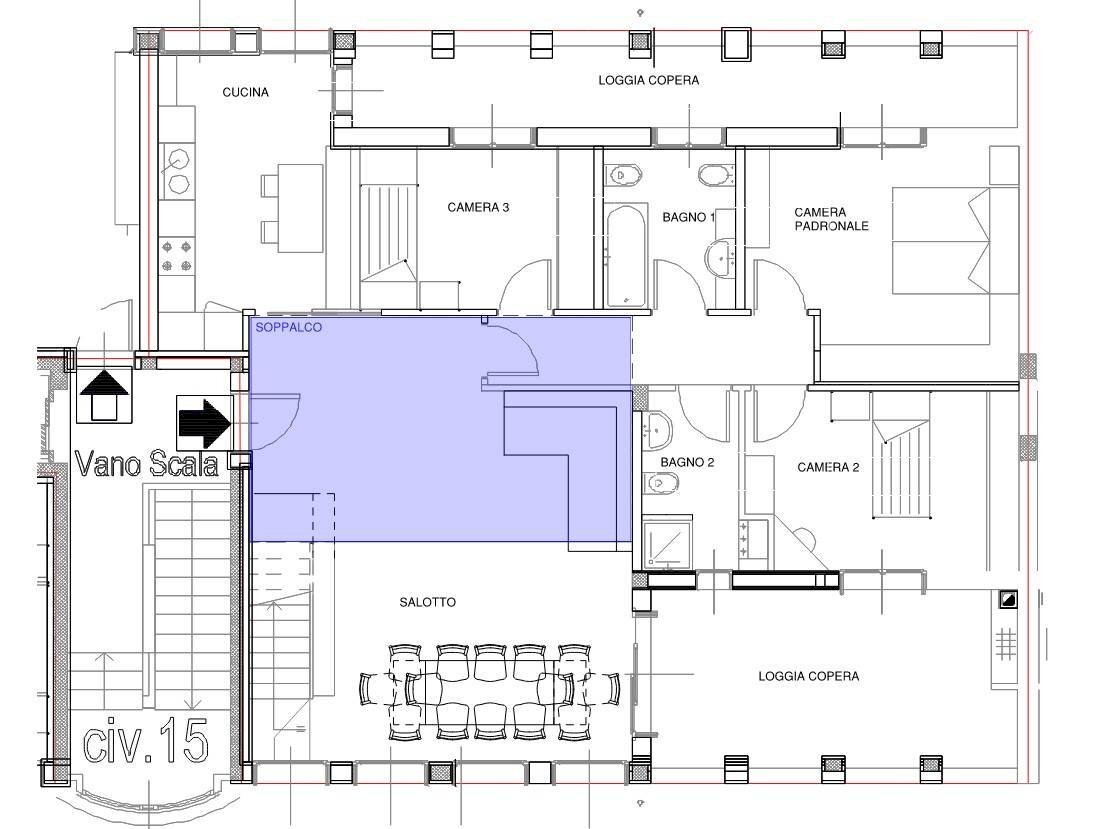
Attico in vendita a 'Sette Borghi', Conegliano, con tre camere e soppalco Proponiamo in vendita un splendido attico al quarto piano, edificato nel 2007, allinterno del ricercato complesso residenziale Sette Borghi. Limmobile colpisce per la luminosità, gli spazi generosi e la cura con cui è stato mantenuto. Una soluzione abitativa pronta da vivere, ideale per chi cerca comfort, qualità e un contesto residenziale moderno e tranquillo. COMPOSIZIONE Piano quarto La zona giorno è composta da ingresso sull'ampio soggiorno con sala da pranzo e accesso diretto a una grande terrazza, cucina abitabile e soppalco raggiungibile da scala interna, ideale come studio o area relax. La zona notte comprende tre camere da letto (matrimoniale, doppia e singola) e due bagni, uno con doccia e lavanderia e laltro con vasca. Dalle camere si accede a una seconda terrazza. Piano interrato: Al piano interrato è presente un box auto doppio di 27mq. DOTAZIONI L'attico dispone di 160mq commerciali, con tre camere e due bagni. Presenta una mansarda abitabile e completa la proprietà un garage doppio. L'immobile si presenta in ottime condizioni. IMPIANTI Il riscaldamento è centralizzato, con riscaldamento e raffrescamento a pavimento. L'appartamento è dotato di impianto domotico BTicino, comando generale per lo spegnimento di luci e prese. SPESE CONDOMINIALI Le spese condominiali ammontano a circa 200/mese e comprendono pulizia scale, ascensore e spese ordinarie di gestione. POSIZIONE L'immobile si trova nel complesso residenziale 'Sette Borghi' in centro a Conegliano, nelle vicinanze di tutti i servizi. PREZZO 350.000 SOCIAL Segui le nostre pagine social per rimanere aggiornato sulle nuove proposte: @chasaimmobiliare
Dati principali
| Riferimento | 27 |
| Data annuncio | 24/01/2026 |
| Contratto | Vendita |
| Tipologia | Attico |
| Superficie | 160 m2 |
| Locali | più di 5 (3 camere da letto, 3 altro), 2 bagni, cucina abitabile |
| Piano | Attico, 4 totali |
| Tipo di costruzione | Signorile |
| Occupato | Libero |
| Box auto | Doppio |
| Arredamento | Parziale |
Caratteristiche
Costi
| Prezzo | 340.000 € |
| Prezzo al m2 | 2.125 €/m2 |
Efficienza energetica
| Stato | Ottimo |
| Riscaldamento | Semi-autonomo |
| Tipo Impianto Di Riscaldamento | a pavimento |
| Classe energetica | B |
| Indice di prestazione energetica (IPE) | 180 kWh/m2 anno |
Planimetrie
Indirizzo e mappa
Via Guido Sinopoli
15, Conegliano
Annuncio senza mappa,
prova a chiedere la posizione all'inserzionista
prova a chiedere la posizione all'inserzionista
Calcolo mutuo
Prezzo di vendita:
Anticipo
20,00
Mutuo
80,00
Tasso: -+
Rata: 972 al mese
I risultati sono una stima indicativa basata sui dati inseriti e non costituiscono un’offerta finanziaria.
Inserzionista
CHASA immobiliare
Via Emilio Antoniazzi 3/b, Conegliano
Mostra Cellulare
Chiama
CONTATTA

