Appartamento Lungomare Vittorio Veneto, frazione San Massimo, Rapallo
€ 400.000APPARTAMENTO STORICO IN CASTELLO CON VISTA MARE A RAPALLO
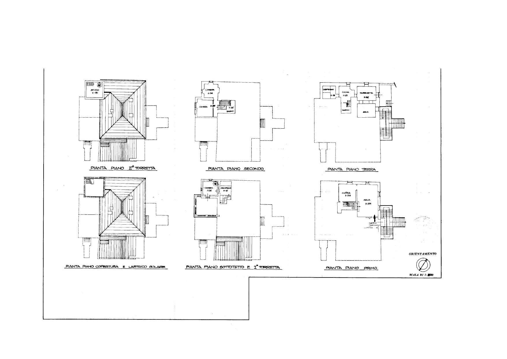
Stato: Disponibile in ESCLUSIVA Zona: Golf club Rapallo Superficie Interna: 261 m² Spazio Esterno: 34 m² Camere da letto: 2 Bagni: 2 La Torre Dondero a Rapallo è un’antica torre medievale, parte del nucleo storico originale della città, che risale a prima del 1200. Tuttavia, l’edificio specifico in Via Torre Dondero è inserito in una villa storica con caratteristiche nobiliari e secoli di storia. Sebbene la sua configurazione attuale includa elementi moderni e restauri, conserva il fascino di una residenza storica con una torre privata. Disposto su 4 livelli, offre una taverna storica con cucina e terrazza, un ampio soggiorno con camino in marmo di Carrara, una seconda cucina spaziosa, due camere matrimoniali, studio, locali aggiuntivi e accesso alla torre con vista mare mozzafiato dalle molteplici terrazze. La proprietà include una porzione di giardino privato oltre ad aree verdi comuni. Tutte le persiane sono state splendidamente restaurate. Nonostante la vicinanza all’autostrada, le spesse mura in pietra garantiscono silenzio e comfort. Una rara opportunità di possedere parte di una residenza nobiliare e vivere una vita davvero magica. CARATTERISTICHE INTERNE Condizioni: buone Arredato: parzialmente Riscaldamento/Raffrescamento: riscaldamento autonomo Spazi Esterni: terrazze e giardino EDIFICIO & SERVIZI Ascensore: no Posto auto privato: 13 m² Cantina/Deposito: sì POSIZIONE & ACCESSIBILITÀ (IN AUTO) Stazione Ferroviaria: 11 minuti Supermercato: 4 minuti Spiaggia: 10 minuti PREZZO: €400.000 NOTE SPECIALI: Dall’esterno del castello, la vicinanza dell’autostrada è percepibile sia visivamente che acusticamente, mentre all’interno, grazie all’integrità strutturale delle mura, il rumore non è percepibile. Dopo aver visionato tutte le foto, i video, i dettagli scritti, i prezzi, il virtual tour e le planimetrie, saremo lieti di organizzare una visita privata. Inviaci un messaggio su Idealista e ti invieremo tutte le informazioni/disponibilità. Seguici su Instagram: @portofinoimmobiliare.
Dati principali
| Riferimento | ID2957646 |
| Data annuncio | 22/01/2026 |
| Contratto | Vendita |
| Tipologia | Appartamento |
| Superficie | 303 m2 |
| Locali | più di 5 (2 camere da letto, 6 altro), 2 bagni, cucina abitabile |
| Piano | 4 totali |
| Tipo di costruzione | Signorile |
| Numero di terrazzi | 1 |
| Box auto | Assente |
| Numero posti auto | 1 |
| Arredamento | Completo |
Caratteristiche
Costi
| Prezzo | 400.000 € |
| Prezzo al m2 | 1.320 €/m2 |
Efficienza energetica
| Anno costruzione | 1200 |
| Stato | Ottimo |
| Riscaldamento | Autonomo |
| Classe energetica | G |
| Indice di prestazione energetica (IPE) | 175 kWh/m2 anno |
Planimetrie
Indirizzo e mappa
Lungomare Vittorio Veneto, Rapallo - località San Massimo
Calcolo mutuo
Prezzo di vendita:
Anticipo
20,00
Mutuo
80,00
Tasso: -+
Rata: 1.144 al mese
I risultati sono una stima indicativa basata sui dati inseriti e non costituiscono un’offerta finanziaria.
Inserzionista

Portofino Immobiliare
Via Pietrafredda 32/1, Rapallo
Mostra Cellulare
Chiama
CONTATTA

