Casa indipendente all'asta Via Ponte 1, Serra Riccò
€ 1.625.574Indipendente - Castello a Serra Riccò
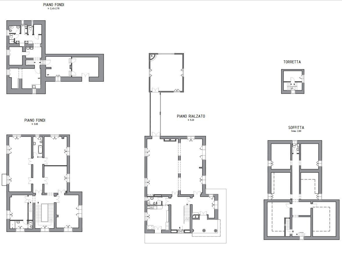
Castello, denominato Castello di San Cipriano, sito in Serra Riccò (GE), Via Ponte 1, e da n. 6 terreni. - Il Prezzo visualizzato è la Base d'Asta in quanto l’immobile è oggetto di esecuzione immobiliare venduto tramite Asta Giudiziaria. - L'immobile aggiudicato, viene venduto libero e sgombro da persone cose ed ipoteche nello stato di fatto e di diritto in cui si trova. - Non rappresentiamo il Tribunale, ma lavoriamo nell'esclusivo interesse del potenziale acquirente per garantire un acquisto sicuro. - I consulenti di ASTE ITALIA ti assisteranno in tutte le attività dell'iter giudiziario dalla visita dell'immobile fino alla consegna chiavi. - Contatta il nostro Servizio Clienti , i nostri operatori sono a disposizione per chiarire i molteplici dubbi per partecipare alle ASTE.
Dati principali
| Riferimento | GE433/24LU-1604-26-1500 |
| Data annuncio | 22/01/2026 |
| Contratto | Vendita |
| Tipologia | Casa indipendente |
| Superficie | 808 m2 |
| Locali | più di 5 (8 camere da letto, 14 altro), 6 bagni |
| Piano | 5 totali |
| Numero di terrazzi | 1 |
| Numero di balconi | 1 |
Caratteristiche
Costi
| Offerta minima | € 1.625.574 |
| Prezzo al m2 | 2.012 €/m2 |
Efficienza energetica
| Classe energetica | F |
Planimetrie
Indirizzo e mappa
Via Ponte 1, Serra Riccò
Calcolo mutuo
Prezzo di vendita:
Anticipo
20,00
Mutuo
80,00
Tasso: -+
Rata: 4.649 al mese
I risultati sono una stima indicativa basata sui dati inseriti e non costituiscono un’offerta finanziaria.
Inserzionista

DOMY ONLINE S.R.L.
Via San Lorenzo 5 Int. 41, Genova
Mostra Telefono
Mostra Cellulare
Chiama
CONTATTA

