Bilocale via Padova, 38, Milano
€ 355.000Milano Nolo loft in classe A costruito nel 2019, posto auto
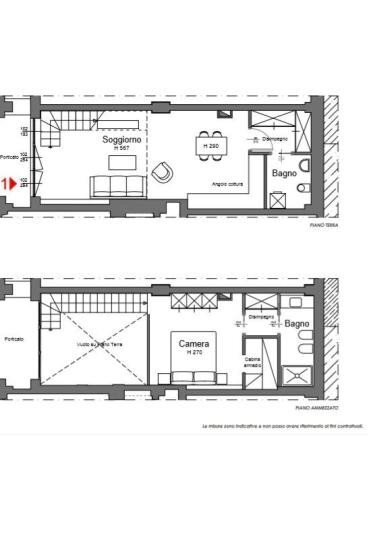
Milano Loreto – Un'opportunità imperdibile! Situato in una zona servitissima, questo splendido loft su due livelli rappresenta la soluzione ideale per chi cerca stile e funzionalità. L'appartamento è inserito in un contesto di recupero totale di un edificio di archeologia industriale realizzato nel 2019 con un'elevatissima qualità costruttiva ed, è composto da un ampio soggiorno con altezza di 5.8 metri tutto a vetrate, cucina a vista, bagno di servizio al paino terra ; una suggestiva scala di design conduce alla zona notte, composta da una spaziosa camera da letto, una cabina armadio e un ulteriore bagno. La proprietà include inoltre un posto auto meccanizzato, compatibile anche con SUV. E' possibile acquistare anche una cantina al piano terra al prezzo di € 10.000. Prezzo: € 355.000,0: Box € 22.000,00 Contattaci subito per maggiori informazioni e per prenotare una visita!
Dati principali
| Riferimento | 202645 |
| Data annuncio | 21/01/2026 |
| Contratto | Vendita |
| Tipologia | Appartamento |
| Superficie | 79 m2 |
| Locali | 2 (1 camera da letto, 1 altro), 2 bagni, cucina a vista |
| Piano | 2 totali |
| Tipo di costruzione | Signorile |
| Numero posti auto | 1 |
| Arredamento | Parziale |
Caratteristiche
Costi
| Prezzo | 355.000 € |
| Prezzo al m2 | 4.494 €/m2 |
| Spese condominiali | € 165,00/mese |
Efficienza energetica
| Anno costruzione | 2019 |
| Stato | Ottimo |
| Riscaldamento | Centralizzato |
| Classe energetica | A+ |
| Indice di prestazione energetica (IPE) | 73.35 kWh/m2 anno |
Planimetrie
Indirizzo e mappa
via Padova, 38, Milano
Calcolo mutuo
Prezzo di vendita:
Anticipo
20,00
Mutuo
80,00
Tasso: -+
Rata: 1.015 al mese
I risultati sono una stima indicativa basata sui dati inseriti e non costituiscono un’offerta finanziaria.
Inserzionista

Bassi immobiliare
Via Appiani 25 angolo via Zucchi 25, Monza
Mostra Telefono
Chiama
CONTATTA

