Monolocale Via M. Jacchia, Parma (zona Montanara)
€ 145.000Trilocale in vendita
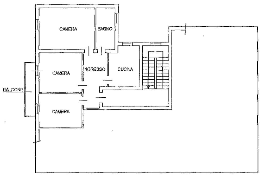
Centro Contabile: in contesto residenziale curato e tranquillo, proponiamo trilocale posto al terzo e ultimo piano, senza ascensore, di una bella palazzina ben tenuta.
L’appartamento è composto da soggiorno, cucina, due camere da letto, balcone e bagno con finestra. La posizione all’ultimo piano garantisce ottima luminosità e privacy.
L'immobile proposto è da ristrutturare ed è sprovvisto di impianto riscaldamento. Attualmente è riscaldato tramite split.
Completa la proprietà un comodo garage.
Soluzione ideale per chi cerca un’abitazione accogliente in un contesto piacevole e ben curato. Spese di condominio contenute.
L’appartamento è composto da soggiorno, cucina, due camere da letto, balcone e bagno con finestra. La posizione all’ultimo piano garantisce ottima luminosità e privacy.
L'immobile proposto è da ristrutturare ed è sprovvisto di impianto riscaldamento. Attualmente è riscaldato tramite split.
Completa la proprietà un comodo garage.
Soluzione ideale per chi cerca un’abitazione accogliente in un contesto piacevole e ben curato. Spese di condominio contenute.
Dati principali
| Riferimento | 61160797 |
| Data annuncio | 22/01/2026 |
| Contratto | Vendita |
| Tipologia | Appartamento |
| Superficie | 86 m2 |
| Locali | 1 (1 altro), 1 bagno |
| Piano | 3 di 3 totali |
Costi
| Prezzo | 145.000 € |
| Prezzo al m2 | 1.686 €/m2 |
| Spese condominiali | € 33,00/mese |
Efficienza energetica
| Anno costruzione | 1960 |
| Riscaldamento | Assente |
| Classe energetica | G |
| Indice di prestazione energetica (EP GL, REN) | 14.41 kWh/m3 anno |
| Indice di prestazione energetica (EP GL, NREN) | 192.03 kWh/m3 anno |
Planimetrie
Indirizzo e mappa
Via M. Jacchia, Parma - quartiere Montanara
Calcolo mutuo
Prezzo di vendita:
Anticipo
20,00
Mutuo
80,00
Tasso: -+
Rata: 415 al mese
I risultati sono una stima indicativa basata sui dati inseriti e non costituiscono un’offerta finanziaria.
Inserzionista
Chiama
CONTATTA

