Villa a Schiera via calvetti, Bergamo
€ 790.000
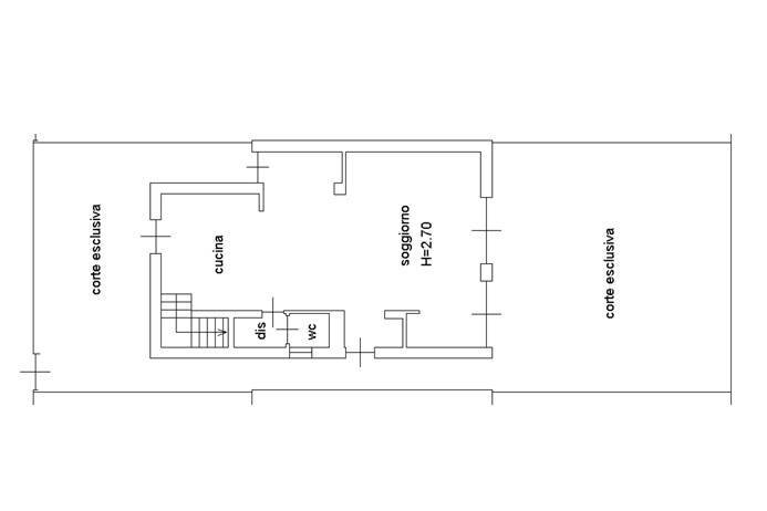
- BERGAMO _ CANOVINE Moderna ed elegante casa indipendente di mq 240 dotata di 130 mq di area esterna, terrazza panoramica di mq 50 e autorimessa doppia in larghezza L'immobile si trova all'interno di un residence costruito nel 2013 dagli alti standard energetici e di tecnologia avveniristica, in una pozione totalmente interna ed immersa nel verde con una splendida visuale dei colli di Bergamo e del centro cittadino distante pochi minuti a piedi da Piazza Pontida, nelle immediate vicinanze del polo ospedalieri Papa Giovanni XIII raggiungibile a piedi, comodo per raggiungere la superstrada e l'autostrada in pochi minuti ma nella piu totale quiete e riservatezza. Internamente l'immobile è cosi composto: Al piano terreno accesso indipendente al cortile esclusivo sul retro ed al giardino sul fronte principale, ingresso con zona armadi, soggiorno di importanti dimensioni con grandi porte finestre con accesso al giardino, grande cucina open space con isola, ripostiglio e bagno giorno Al piano primo disimpegno notte, camera padronale con cabina armadio ed accesso al balcone privato, seconda camera con accesso alla splendida serra solare totalmente a vetrate, terza camera da letto ampia con affaccio sul verde, ampio bagno finestrato dotato di doccia e vasca da bagno, secondo bagno finestrato con doccia. Al piano secondo mansarda con ambiente open space utilizzabile quale studio o quarta camera da letto con accesso alla terrazza panoramica di circa 50 mq, ampio ripostiglio e bagno lavanderia. L'immobile è elegantemente e lussuosamente rifinito in ogni dettaglio, dotato di pavimentazioni in parquet e moderno gres nei bagni, cucina con piano induzione e sistema di estrazione fumi a soffitto, riscaldamento e raffrescamento a soffitto con impianto di ventilazione meccanizzata e deumidificazione di ultima generazione, impianto di allarme interno ed esterno, tapparelle motorizzate tipo sun block, infissi ad alte prestazioni, il giardino esterno è piantumato con siepi e piante ornamentali, dotato di illuminazione, particolarmente godibile nella bella stagione per pranzi,. cene e feste all'aperto in continuità con la zona giorno. L'immobile viene venduto completo dell'arredo cucina con elettrodomestici di alta gamma, librerie ed armadiature presenti. L'immobile è stato inoltre dotato di pannelli fotovoltaici privati con una potenza di 3 kw. La proprietà si completa di un'ampia autorimessa doppia di 33 mq e si presta particolarmente per chi desidera godere della tranquillità e del polmone verde in cui è ubicato ma allo stesso tempo di poter usufruire di tutti i servizi offerti dalla città. 790.000,00 Spese condominiali 3.300,00 annue comprensive di riscaldamento e raffrescamento. CLASSE ENERGETICA: A4 8,29 [Kwh/m²a] Vai all'annuncio: https://www.studio-valle.com/it/bergamo-canovine-5/ STUDIO IMMOBILIARE VALLE Flaminia S.r.l. Real estate and investments 24121 Bergamo - Italy V.le Vitt. Emanuele II n. 65 tel +39 035 231588 WhatsApp: +39 3920190070 www.studio-valle.com [email protected] Facebook: StudioImmobiliareValle Instagram: studio.immobiliare.valle X: ValleRealEstate Skype: Valle-Real-Estate
Dati principali
| Riferimento | bgcalv240 |
| Data annuncio | 22/01/2026 |
| Contratto | Vendita |
| Tipologia | Villa a Schiera |
| Superficie | 240 m2 |
| Locali | 5 (4 camere da letto, 1 altro), 4 bagni, cucina abitabile |
| Piano | Terra, 3 totali |
| Tipo di costruzione | Signorile |
| Occupato | Libero |
| Box auto | Doppio |
| Arredamento | Parziale |
Caratteristiche
Costi
| Prezzo | 790.000 € |
| Prezzo al m2 | 3.292 €/m2 |
Efficienza energetica
| Stato | Parzialmente ristrutturato |
| Riscaldamento | Semi-autonomo |
| Tipo Impianto Di Riscaldamento | a pavimento |
| Tipo Alimentazione Riscaldamento | Elettrico |
| Classe energetica | A4 |
Planimetrie
Virtual tour
Video
Indirizzo e mappa
via calvetti, Bergamo
Annuncio senza mappa,
prova a chiedere la posizione all'inserzionista
prova a chiedere la posizione all'inserzionista
Calcolo mutuo
Prezzo di vendita:
Anticipo
20,00
Mutuo
80,00
Tasso: -+
Rata: 2.259 al mese
I risultati sono una stima indicativa basata sui dati inseriti e non costituiscono un’offerta finanziaria.
Inserzionista

Studio Immobiliare Valle
Viale Vittorio Emanuele II 65, Bergamo
Mostra Telefono
Chiama
CONTATTA

