Appartamento Via Leonida 59, Taranto
€ 49.000
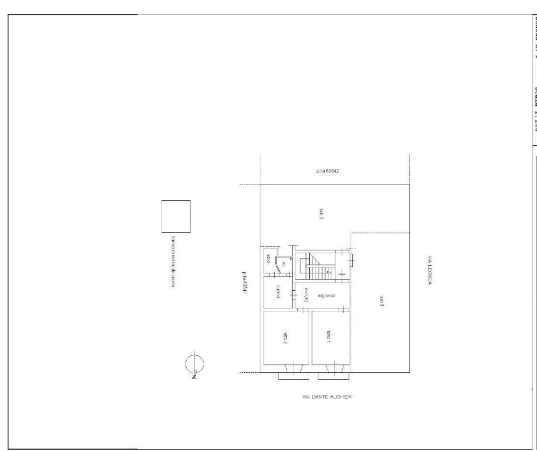
PUGLIA - TARANTO - VIA LEONIDA Proponiamo in vendita appartamento posto al primo piano in stabile sprovvisto di ascensore e precisamente in via Leonida n. 59 . L'immobile in ottimo stato manutentivo, si compone di 5 locali, di cui 2 camere da letto, una matrimoniale e l'altra di più piccole dimensioni per un letto singolo, cucina con accesso ad un piccolo atrio scoperto di proprietà e 1 bagno. L'immobile è stato recentemente ristrutturato . Attualmente l'immobile è locato con contratto transitorio con scadenza Aprile 2026. L' immobile è in zona servita da punti vendita e mezzi di trasporto, oltre la presenza a pochi passi di un'ampia area di parcheggio.
Dati principali
| Riferimento | CBI150-2568-63836 |
| Data annuncio | 21/01/2026 |
| Contratto | Vendita |
| Tipologia | Appartamento |
| Superficie | 68 m2 |
| Locali | 5 (2 camere da letto, 3 altro), 1 bagno, cucina cucinino |
| Piano | 1 di 6 totali |
| Tipo di costruzione | Media |
| Occupato | Occupato da Proprietario |
| Box auto | Assente |
Costi
| Prezzo | 49.000 € |
| Prezzo al m2 | 721 €/m2 |
Efficienza energetica
| Stato | Buono |
| Tipo Impianto Di Riscaldamento | ad aria |
| Tipo Alimentazione Riscaldamento | Altro |
| Classe energetica | G |
| Indice di prestazione energetica (IPE) | 163 kWh/m2 anno |
Planimetrie
Indirizzo e mappa
Via Leonida
59, Taranto
Annuncio senza mappa,
prova a chiedere la posizione all'inserzionista
prova a chiedere la posizione all'inserzionista
Calcolo mutuo
Prezzo di vendita:
Anticipo
20,00
Mutuo
80,00
Tasso: -+
Rata: 140 al mese
I risultati sono una stima indicativa basata sui dati inseriti e non costituiscono un’offerta finanziaria.
Inserzionista

Coldwell Banker Gruppo Bodini
Via Pitagora, 90B, Taranto
Mostra Telefono
Chiama
CONTATTA

