Casa semi indipendente Via Garibaldi N.10, Casteldidone
€ 130.000
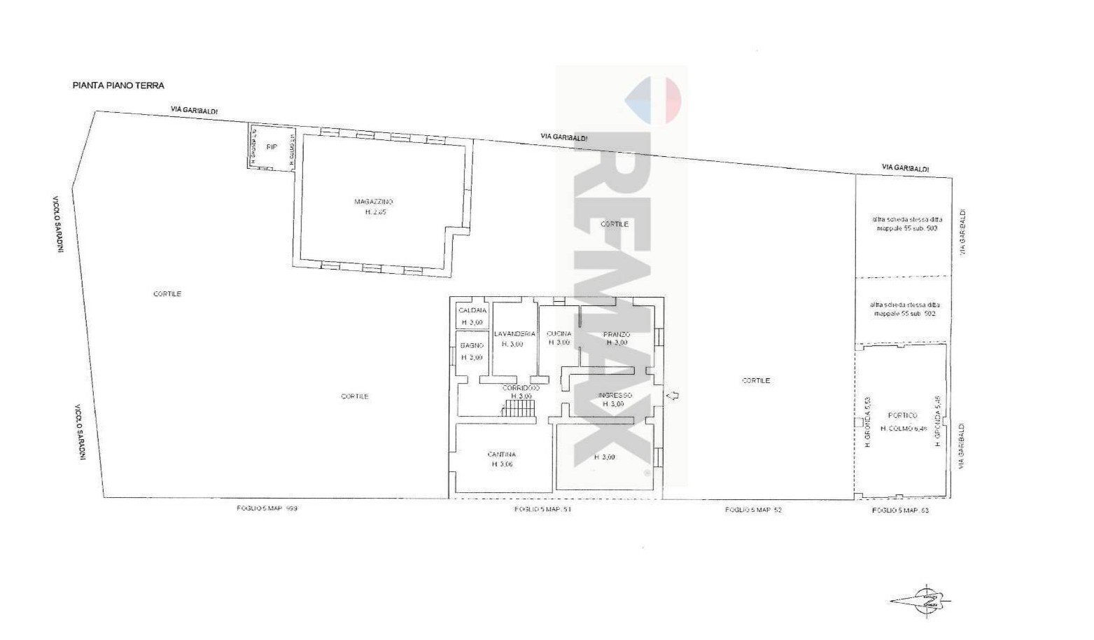
Questa bellissima casa semindipendente in vendita a Casteldidone si trova in uno stato attuale libero al rogito, il che significa che l'acquirente potrà firmare il contratto di acquisto senza alcun vincolo. La proprietà si sviluppa su due piani e vanta una superficie totale di 410 metri quadrati. Con accesso dall'area cortiva si entra al piano terra tramite un corridoio.Troviamo una sala pranzo, cucina, un'altra stanza molto grande, lavanderia, bagno, locale caldaia e una capiente cantina da usufruire per le proprie neccessità. Al piano superiore troviamo cinque stanze e un secondo bagno con vasca, ideali per ospitare una famiglia numerosa ed eventuali ospiti. L'edificio è alimentato con metano, il che garantisce un riscaldamento efficiente e conveniente. Inoltre, dispone di un impianto a radiatori per garantire il massimo comfort durante l'inverno. Lo stato di conservazione è buono ed è parzialmente arredata, il che significa che non dovrai preoccuparti di acquistare tutti i mobili. La cucina è abitabile e perfetta per chi ama cucinare e trascorrere del tempo con la famiglia. All'esterno, c'è un ampio giardino privato dove potrai godere di momenti di relax e organizzare cene all'aperto durante i mesi estivi. La proprietà include anche un terreno circostante dove i può accedere anche da un secondo ingresso perfetto per chi ha una passione per l'agricoltura o per chi desidera avere uno spazio extra per animali domestici. Inoltre, non manca lo spazio per parcheggiare le auto, grazie al quadruplo box auto incluso nella proprietà oltre a un'area cortiva Non perdere l'opportunità di acquistare questa casa semindipendente in una posizione tranquilla e comoda, perfetta per chi desidera la tranquillità della campagna senza rinunciare alla vicinanza ai servizi della città.
Dati principali
| Riferimento | 33631028-171 |
| Data annuncio | 21/01/2026 |
| Contratto | Vendita |
| Tipologia | Casa semi indipendente |
| Superficie | 410 m2 |
| Locali | più di 5 (6 camere da letto, 1 altro), 2 bagni, cucina abitabile |
| Piano | Terra, 2 totali |
| Tipo di costruzione | Media |
| Occupato | Libero |
| Box auto | Triplo |
| Arredamento | Parziale |
Caratteristiche
Costi
| Prezzo | 130.000 € |
| Prezzo al m2 | 317 €/m2 |
Efficienza energetica
| Stato | Buono |
| Riscaldamento | Autonomo |
| Classe energetica | G |
| Indice di prestazione energetica (IPE) | 554 kWh/m2 anno |
Planimetrie
Indirizzo e mappa
Via Garibaldi
N.10, Casteldidone
Annuncio senza mappa,
prova a chiedere la posizione all'inserzionista
prova a chiedere la posizione all'inserzionista
Calcolo mutuo
Prezzo di vendita:
Anticipo
20,00
Mutuo
80,00
Tasso: -+
Rata: 372 al mese
I risultati sono una stima indicativa basata sui dati inseriti e non costituiscono un’offerta finanziaria.
Inserzionista

RE/MAX Golden House
Via D'Azeglio, 11,, Viadana
Mostra Telefono
Chiama
CONTATTA

