Trilocale Viale enrico berlinguer, Moncalieri
€ 199.000Trilocale in vendita
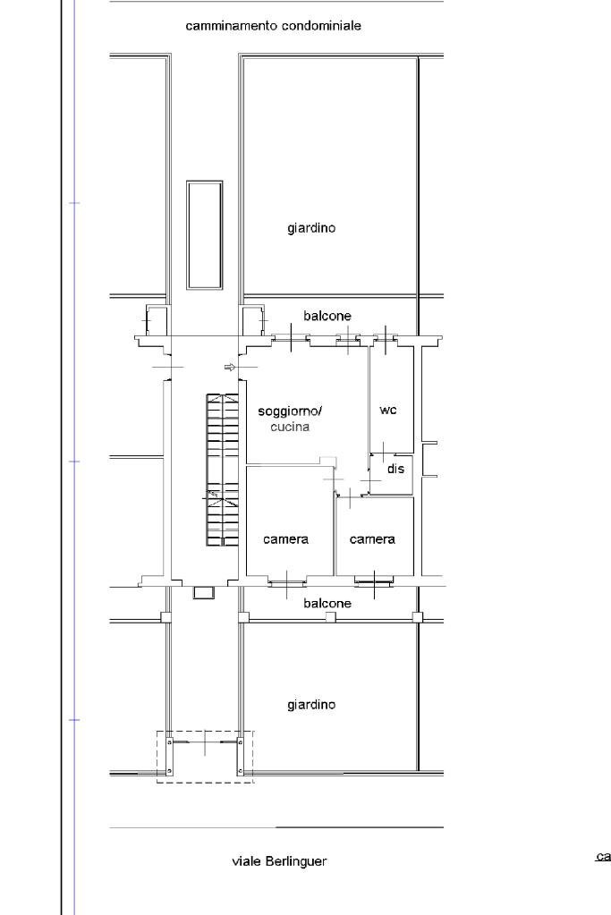
Nella Borgata di Tagliaferro, in una palazzina del 2008 situata in zona tranquilla, ben servita e inserita in un piccolo contesto residenziale privo di barriere architettoniche, proponiamo in vendita un elegante appartamento sito al piano terra. L’ingresso è living su un luminoso salone con cucina abitabile, caratterizzato da un’ottima esposizione grazie ad una portafinestra, la quale conduce ad un giardino privato, ideale per pranzi e momenti di relax comodo disimpegno accompagna alla zona notte, composta da una camera da letto matrimoniale e una cameretta. La casa disponde di un bagno finestrato, dotato di box doccia. Il riscaldamento è autonomo, regolabile tramite termostato, garantendo un’ottima gestione dei consumi. Inoltre completa la proprietà un box auto doppio compreso nel prezzo. Una soluzione moderna e funzionale, ideale per chi cerca tranquillità.
Dati principali
| Riferimento | 61163424 |
| Data annuncio | 20/01/2026 |
| Contratto | Vendita |
| Tipologia | Appartamento |
| Superficie | 82 m2 |
| Locali | 3 (3 altro), 1 bagno |
| Piano | 2 totali |
Costi
| Prezzo | 199.000 € |
| Prezzo al m2 | 2.427 €/m2 |
| Spese condominiali | € 108,00/mese |
Efficienza energetica
| Anno costruzione | 2008 |
| Riscaldamento | Autonomo |
| Tipo Alimentazione Riscaldamento | Metano |
| Classe energetica | E |
| Indice di prestazione energetica (EP GL, REN) | 85.85 kWh/m3 anno |
| Indice di prestazione energetica (EP GL, NREN) | 215.44 kWh/m3 anno |
Planimetrie
Indirizzo e mappa
Viale enrico berlinguer, Moncalieri
Calcolo mutuo
Prezzo di vendita:
Anticipo
20,00
Mutuo
80,00
Tasso: -+
Rata: 569 al mese
I risultati sono una stima indicativa basata sui dati inseriti e non costituiscono un’offerta finanziaria.
Inserzionista
Agenzia Tecnorete Munca Re Sas
Via Goito, 3, Moncalieri
Mostra Telefono
Chiama
CONTATTA

