Porzione di casa Via Carignano, Rivalta di Torino
€ 449.000Porzione di bifamiliare in vendita
VILLE DI NUOVA COSTRUZIONE
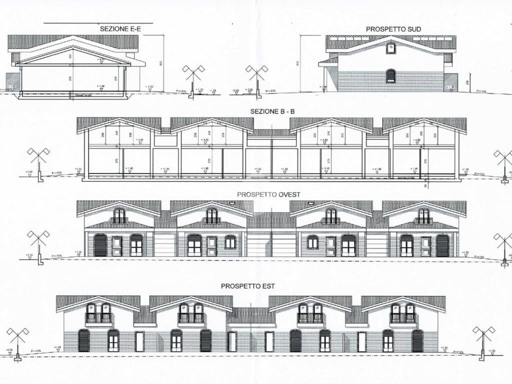
Proponiamo in vendita eleganti ville di nuova costruzione in classe energetica A4, dotate di riscaldamento a pavimento con pompa di calore alimentata da pannelli fotovoltaici, progettate per garantire comfort abitativo, efficienza energetica e qualità costruttiva. È prevista la possibilità di scelta di un capitolato di pregio e di personalizzazione degli spazi interni.
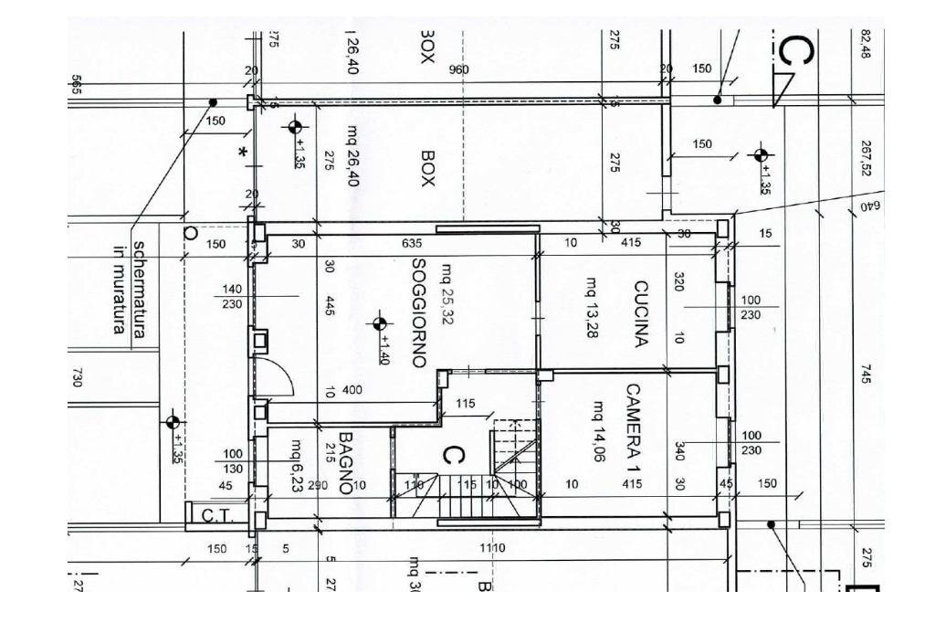
Al piano terra, l’ingresso conduce a un ampio e luminoso soggiorno, separato dalla cucina abitabile. Un comodo disimpegno, che funge anche da vano scale, accompagna alla camera matrimoniale e al bagno finestrato con doccia.
Il piano mansardato offre la possibilità di realizzare fino a quattro camere da letto e un secondo servizio con un'altezza minima di 1.40 m. La presenza di due balconi garantisce ambienti particolarmente luminosi e ben arieggiati.
L’abitazione è circondata da un’area esterna privata di circa 100 mq, distribuita sia sul fronte che sul retro della casa, ideale per momenti di relax all’aperto.
Completa la proprietà un box auto doppio, comodamente posizionato a fianco dell’abitazione dotato di portone sezionale motorizzato.
Consegna prevista entro 12 mesi dall'inizio dei lavori.
Proponiamo in vendita eleganti ville di nuova costruzione in classe energetica A4, dotate di riscaldamento a pavimento con pompa di calore alimentata da pannelli fotovoltaici, progettate per garantire comfort abitativo, efficienza energetica e qualità costruttiva. È prevista la possibilità di scelta di un capitolato di pregio e di personalizzazione degli spazi interni.
Al piano terra, l’ingresso conduce a un ampio e luminoso soggiorno, separato dalla cucina abitabile. Un comodo disimpegno, che funge anche da vano scale, accompagna alla camera matrimoniale e al bagno finestrato con doccia.
Il piano mansardato offre la possibilità di realizzare fino a quattro camere da letto e un secondo servizio con un'altezza minima di 1.40 m. La presenza di due balconi garantisce ambienti particolarmente luminosi e ben arieggiati.
L’abitazione è circondata da un’area esterna privata di circa 100 mq, distribuita sia sul fronte che sul retro della casa, ideale per momenti di relax all’aperto.
Completa la proprietà un box auto doppio, comodamente posizionato a fianco dell’abitazione dotato di portone sezionale motorizzato.
Consegna prevista entro 12 mesi dall'inizio dei lavori.
Dati principali
| Riferimento | 61163797 |
| Data annuncio | 18/01/2026 |
| Contratto | Vendita |
| Tipologia | Porzione di casa |
| Superficie | 220 m2 |
| Locali | più di 5 (4 camere da letto, 2 altro), 2 bagni |
| Piano | 1 totali |
Costi
| Prezzo | 449.000 € |
| Prezzo al m2 | 2.041 €/m2 |
| Spese condominiali | € 42,00/mese |
Efficienza energetica
| Anno costruzione | 2026 |
| Riscaldamento | Autonomo |
| Tipo Alimentazione Riscaldamento | Metano |
| Classe energetica | A4 |
| Indice di prestazione energetica (EP GL, REN) | 38.86 kWh/m3 anno |
| Indice di prestazione energetica (EP GL, NREN) | 38.86 kWh/m3 anno |
Planimetrie
Video
Indirizzo e mappa
Via Carignano, Rivalta di Torino
Calcolo mutuo
Prezzo di vendita:
Anticipo
20,00
Mutuo
80,00
Tasso: -+
Rata: 1.284 al mese
I risultati sono una stima indicativa basata sui dati inseriti e non costituiscono un’offerta finanziaria.
Inserzionista
Chiama
CONTATTA

