Quadrilocale Via Provinciale, Valsamoggia (zona Albareto - Mulini Nuovi)
€ 255.000Quadrilocale in vendita
L'agenzia Tecnocasa di Crespellano e Bazzano, sita in Via Provinciale n°240 a Crespellano di Valsamoggia, propone a CRESPELLANO (vicinanze Ponte Ronca) in vendita appartamento posto al secondo piano in buono stato di manutenzione.
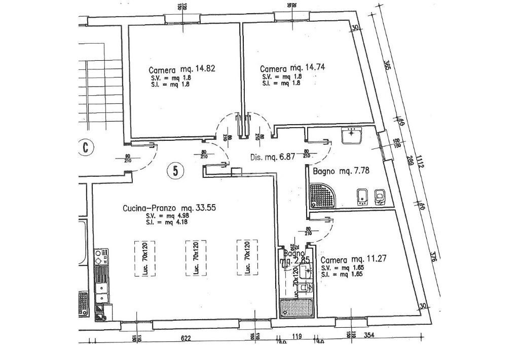
Ingresso su ampio soggiorno con angolo cottura, disimpegno con due camere matrimonilai e una camera doppia, due bagni, uno cieco e uno finestrato.
Completano l'immobile un garage e un posto auto posto privato al piano terra.
Il fabbricato è stato ristrutturato con il Super Bonus 110% quindi ha cappotto, infissi e scuri nuovi, caldaia a condensazione.
L'appartamento è accogliente, con finiture eleganti e spazi comodi.
Per ulteriori informazioni e visite ci potete contattare al numero 051.960676 o scrivere all’indirizzo mail .
Ingresso su ampio soggiorno con angolo cottura, disimpegno con due camere matrimonilai e una camera doppia, due bagni, uno cieco e uno finestrato.
Completano l'immobile un garage e un posto auto posto privato al piano terra.
Il fabbricato è stato ristrutturato con il Super Bonus 110% quindi ha cappotto, infissi e scuri nuovi, caldaia a condensazione.
L'appartamento è accogliente, con finiture eleganti e spazi comodi.
Per ulteriori informazioni e visite ci potete contattare al numero 051.960676 o scrivere all’indirizzo mail .
Dati principali
| Riferimento | 61163375 |
| Data annuncio | 18/01/2026 |
| Contratto | Vendita |
| Tipologia | Appartamento |
| Superficie | 100 m2 |
| Locali | 4 (4 altro), 2 bagni |
| Piano | 2 di 2 totali |
| Numero posti auto | 1 |
Costi
| Prezzo | 255.000 € |
| Prezzo al m2 | 2.550 €/m2 |
Efficienza energetica
| Anno costruzione | 2000 |
| Riscaldamento | Autonomo |
| Tipo Alimentazione Riscaldamento | Metano |
| Classe energetica | D |
| Indice di prestazione energetica (EP GL, REN) | 230 kWh/m3 anno |
| Indice di prestazione energetica (EP GL, NREN) | 230 kWh/m3 anno |
Planimetrie
Indirizzo e mappa
Via Provinciale, Valsamoggia - quartiere Albareto - Mulini Nuovi
Calcolo mutuo
Prezzo di vendita:
Anticipo
20,00
Mutuo
80,00
Tasso: -+
Rata: 729 al mese
I risultati sono una stima indicativa basata sui dati inseriti e non costituiscono un’offerta finanziaria.
Inserzionista
Chiama
CONTATTA

