Villa via Belvedere, Montevecchia
€ 1.400.000Antica casa colonica
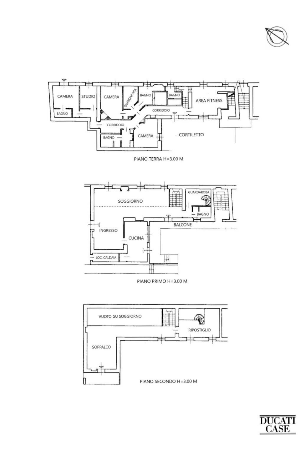
Nella perla della Brianza, Montevecchia, sorge un’antica casa colonica del 1800, immersa nella natura e circondata da un giardino pianeggiante con balconi, terrazze e una vista strepitosa. L’immobile, oggetto di un accurato recupero conservativo, si trova a due passi dallo splendido borgo posto su una collina panoramica. La dimora si trova in perfette condizioni, ristrutturata da un rinomato architetto, con un suo accesso indipendente, è cosi composta: il primo piano ospita la zona living con un ampio soggiorno, con annessa la cucina abitabile, uno studio collegato col soppalco tramite una scala a chiocciola in ghisa liberty ed un bagno ospiti. Il soggiorno è a doppia altezza con un grande soppalco che si affaccia sullo stesso, dove si trova la zona dedicata alla lettura e TV; completa il piano una camera per gli ospiti mansardata che gode di un balcone a loggia da cui si può ammirare tutta la collina. Il piano terra a cui si accede dalla corte, ospita tre camere da letto di cui quella padronale con cabina armadio e bagno en suite, una camera ospiti con cabina armadio e bagno annesso e un'altra camera con bagno attiguo. Completa il piano terra, l’area fitness con un piacevole e spazioso bagno turco. A rendere magico tutto il piano terra vi è la corte lombarda in ciottolato e pietra; la stessa corte che conduce anche ad un locale adibito a cantina per il vino, munito di vetrata. Dal grande terrazzo anti stante al living, posto al primo piano, si gode di una vista che domina tutta la valle del Curone, facendo da cornice a questo splendido immobile. La superficie esterna di giardino, rigogliosa e sapientemente piantumata, è molto piacevole e vivibile, ideale per la realizzazione di una piscina a sfioro, mentre una parte del terreno consente la costruzione di un box, pur mantenendo l’attuale parcheggio all’esterno dedicato alla proprietà. La casa colonica è ubicata nel centro storico di Montevecchia in posizione strategica: vicina alle montagne bergamasche e alla Valtellina, alle riserve naturali della Svizzera, ai piedi di Lecco e del Lago di Como, e a soli 40 minuti da Milano e dall’aeroporto di Linate. Tutti i dati e le informazioni contenuti nel presente documento sono stati forniti dal venditore/proprietario e devono considerarsi come puramente indicativi senza potere essere considerati quale presupposto contrattuale.
Dati principali
| Riferimento | Villa a Montevecchia (LC) |
| Data annuncio | 13/01/2026 |
| Contratto | Vendita |
| Tipologia | Villa |
| Superficie | 480 m2 |
| Locali | più di 5 (4 camere da letto, 3 altro), 4 bagni, cucina abitabile |
| Piano | 3 totali |
| Tipo di costruzione | Signorile |
| Numero di terrazzi | 1 |
| Numero di balconi | 1 |
| Box auto | Assente |
| Numero posti auto | 3 |
Caratteristiche
Costi
| Prezzo | 1.400.000 € |
| Prezzo al m2 | 2.917 €/m2 |
Efficienza energetica
| Anno costruzione | 1800 |
| Stato | Ottimo |
| Riscaldamento | Autonomo |
| Classe energetica | E |
| Indice di prestazione energetica (IPE) | 175 kWh/m2 anno |
Planimetrie
Indirizzo e mappa
via Belvedere, Montevecchia
Calcolo mutuo
Prezzo di vendita:
Anticipo
20,00
Mutuo
80,00
Tasso: -+
Rata: 4.004 al mese
I risultati sono una stima indicativa basata sui dati inseriti e non costituiscono un’offerta finanziaria.
Inserzionista

Ducati Case srl
Viale Vittorio Veneto 24, Milano
Mostra Telefono
Chiama
CONTATTA

