Villa via Don Giovanni Battista Sapino, 31/1, Carmagnola
€ 385.000Ampia villa indipendente su quattro lati con giardino
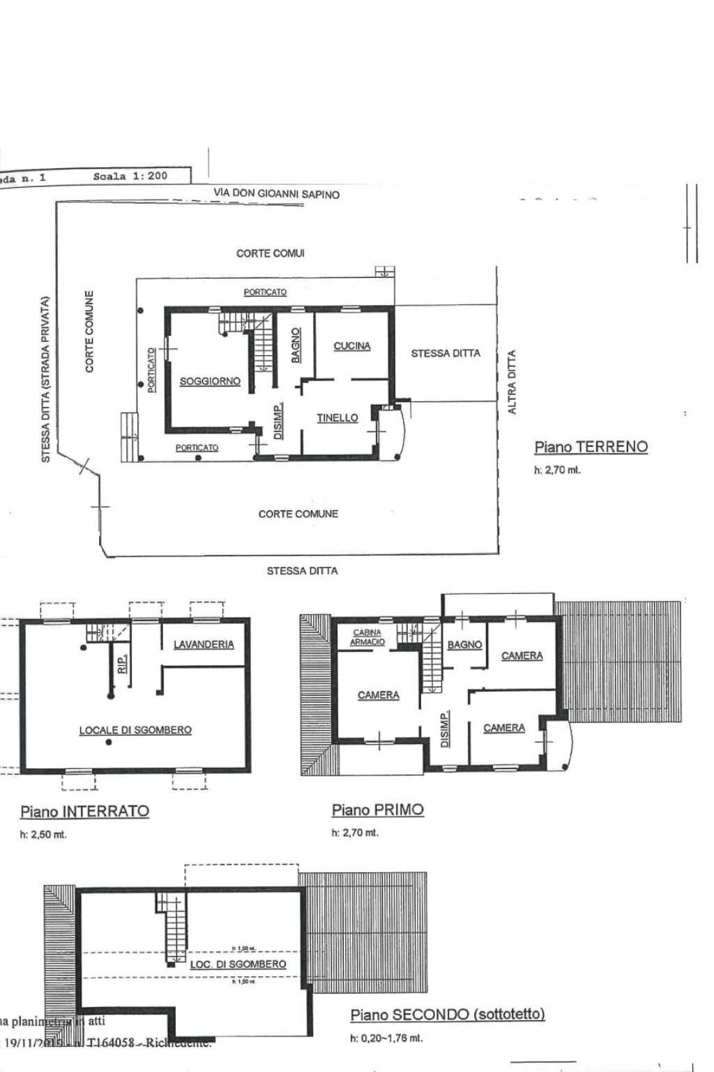
In frazione Cavalleri/Fumeri di Carmagnola, ampia villa indipendente, libera su quattro lati e ben esposta. L' immobile si sviluppa su due livelli e si compone come segue: l' ingresso è attraverso un porticato in pietra di luserna, il piano rialzato si compone da soggiorno con cucina che gode anche di un camino a legna, salotto, camera da letto e servizio; il piano primo, avente anche accesso indipendente esterno attraverso il portoncino blindato, si sviluppa da disimpegno, tre camere da letto, servizio. Una delle camere è attualmente utilizzata come un ulteriore zona giorno. Locale sottotetto ad uso sgombero. Al piano interrato un'ampia tavernetta con ripostiglio e lavanderia. Completa la proprietà il giardino privato su tre lati con zona adibita a gazebo e relax, l'autorimessa doppia. L' immobile è completo di antifurto, condizionatori/pompa di calore. Adatta anche come soluzione bifamiliare grazie all'indipendenza attuale dei due piani. Per avere ulteriori informazioni o per fissare un appuntamento potete chiamarci ai numeri 0119723929 oppure 3356351278 o passare a trovarci in Piazza Mazzini n. 2. Inoltre, potete anche contattarci al nostro indirizzo email [email protected] Qualora foste interessati ad una valutazione GRATUITA e SENZA IMPEGNO del Vostro immobile siamo a completa disposizione! Potete trovare questa e molte altre proposte sul nostro sito internet www.agenziaimmobiliaremazzini.com
Dati principali
| Riferimento | ID2951180 |
| Data annuncio | 15/01/2026 |
| Contratto | Vendita |
| Tipologia | Villa |
| Superficie | 322 m2 |
| Locali | più di 5 (4 camere da letto, 5 altro), 3 bagni, cucina abitabile |
| Piano | 2 totali |
| Tipo di costruzione | Signorile |
| Numero di terrazzi | 1 |
| Numero di balconi | 1 |
| Box auto | Doppio |
| Arredamento | Assente |
Caratteristiche
Costi
| Prezzo | 385.000 € |
| Prezzo al m2 | 1.196 €/m2 |
Efficienza energetica
| Anno costruzione | 2009 |
| Stato | Ottimo |
| Riscaldamento | Autonomo |
| Classe energetica | C |
| Indice di prestazione energetica (IPE) | 175 kWh/m2 anno |
Planimetrie
Indirizzo e mappa
via Don Giovanni Battista Sapino, 31/1, Carmagnola
Calcolo mutuo
Prezzo di vendita:
Anticipo
20,00
Mutuo
80,00
Tasso: -+
Rata: 1.101 al mese
I risultati sono una stima indicativa basata sui dati inseriti e non costituiscono un’offerta finanziaria.
Inserzionista

Immobiliare Mazzini
Piazza Mazzini 2, Carmagnola
Mostra Telefono
Chiama
CONTATTA

