Negozio via Circonvallazione, Borgo Ticino
€ 140.000Negozio in vendita a Borgo Ticino
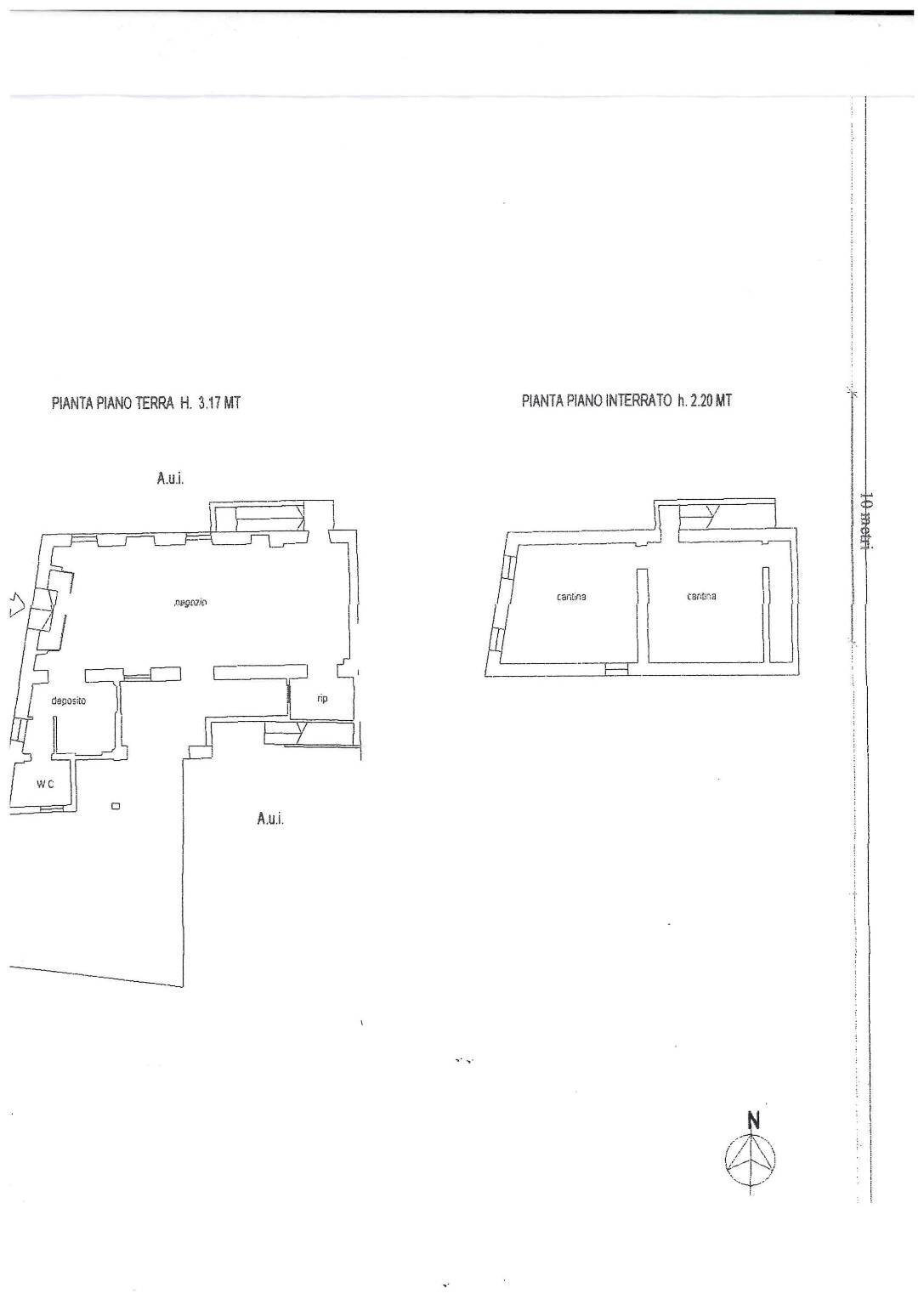
In posizione strategica e di forte passaggio, proponiamo in vendita le mura di un negozio situato a Borgo Ticino, ideale sia come attività commerciale diretta sia come investimento immobiliare a reddito. L’immobile si sviluppa interamente al piano terra (altezza interna circa 3,17 m, come da planimetria) e gode di ottima visibilità, grazie a una vetrina fronte strada di circa 5 metri, elemento che lo rende facilmente locabile e adatto a molteplici destinazioni commerciali e di servizio. La distribuzione interna, di forma regolare e ben sfruttabile, comprende: - locale principale ad uso negozio di circa 40/50 mq - servizio igienico - locale deposito/magazzino al piano terra La superficie complessiva del piano terra è di circa 90 mq, come rappresentato in planimetria. Al piano interrato è presente una cantina/seminterrato di circa 70 mq (altezza circa 2,20 m), collegata all’unità principale tramite scala esterna, utilizzabile come spazio accessorio o deposito. L’immobile è attualmente locato, con liberazione a breve, offrendo quindi: - continuità di reddito nel breve periodo e prossimo utilizzo diretto per la propria attività - oppure possibilità di nuova locazione, rendendolo un interessante investimento, grazie alla posizione ed alla visibilità strategiche. Soluzione ideale per: - commercianti e professionisti - investitori alla ricerca di un immobile commerciale facilmente affittabile - attività di vicinato, servizi e studi aperti al pubblico ???? Per maggiori informazioni o per fissare una visita, contattaci.
Dati principali
| Riferimento | ID2951124 |
| Data annuncio | 15/01/2026 |
| Contratto | Vendita |
| Tipologia | Negozio |
| Superficie | 172 m2 |
| Piano | 2 totali |
| Uso immobile | Commerciale |
Costi
| Prezzo | 140.000 € |
| Prezzo al m2 | 814 €/m2 |
Efficienza energetica
| Riscaldamento | Autonomo |
| Classe energetica | E |
| Indice di prestazione energetica (IPE) | 72.27 kWh/m2 anno |
Planimetrie
Indirizzo e mappa
via Circonvallazione, Borgo Ticino
Calcolo mutuo
Prezzo di vendita:
Anticipo
20,00
Mutuo
80,00
Tasso: -+
Rata: 400 al mese
I risultati sono una stima indicativa basata sui dati inseriti e non costituiscono un’offerta finanziaria.
Inserzionista

Idealcasa
via V.Emanuele II 82, Borgo Ticino
Mostra Telefono
Chiama
CONTATTA