Appartamento VIA SAN ZENO, Treviso
€ 170.000
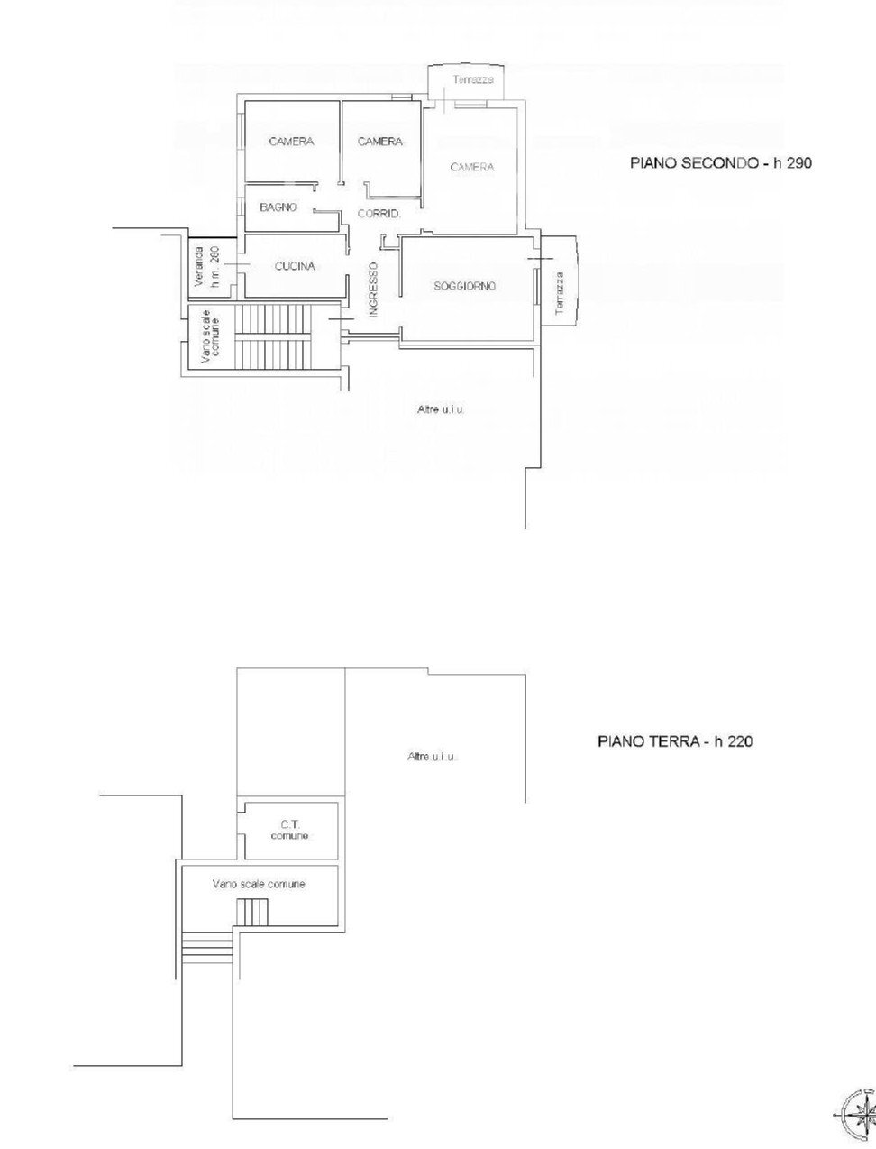
Appartamento tre camere a Treviso zona San Zeno in vendita. A cinque minuti dal centro di Treviso in un piccolo contesto residenziale del 1967, proponiamo in vendita appartamento di 111 mq. commerciali posto al piano 2° di un palazzina sviluppata su tre piani senza ascensore. L'appartamento libero su tre lati è così distribuito: ingresso comodo da arredare con una cappottiera, cucina abitabile e separata con accesso ad una veranda allestita ad uso lavanderia, ampio soggiorno di 24 mq. con terrazzo di pertinenza esposto a nord con vista sul campanile della Chiesa di San Nicolò Nella zona notte un disimpegno con piccolo ripostiglio, camera matrimoniale di 19 mq., 2° camera da 12 mq., 3° camera di 12 mq. e bagno finestrato con doccia e vasca. Altezza del locali cm 290. Al piano terra un comodo magazzino/garage di 24 mq. il cui basculante ha una apertura di 217 cm. e la lunghezza di 477 cm con altezza di cm 220. Adiacente al magazzino/garage c'è la possibilità di parcheggiare ad uso esclusivo 2 auto. L'immobile si trova all'interno di un'area condominiale di circa 5300 mq. dove c'e la possibilità di parcheggiare le auto oltre ad avere una estesa area verde. Le finiture dell'appartamento sono dell'epoca fatta eccezione di qualche rifinitura risalente ai primi anni '90 (impianto elettrico e pavimento cucina e bagno). Il riscaldamento è autonomo con caldaia a condensazione sostituita nel 2021 e radiatori in ghisa. Parquet nelle camere. Video citofono. Esposizione nord, sud, ovest Classe energetica G 206,88 kWh/mq. annuo Per maggiori informazioni su questo appartamento contattare il numero 04221784050 oppure visitate il nostro sito web www.impresaimmobiliare.com RIF.I/AL532
Dati principali
| Riferimento | I/AL532 |
| Data annuncio | 17/01/2026 |
| Contratto | Vendita |
| Tipologia | Appartamento |
| Superficie | 123 m2 |
| Locali | 5 (3 camere da letto, 2 altro), 1 bagno, cucina abitabile |
| Piano | 2 di 3 totali |
| Tipo di costruzione | Signorile |
| Occupato | Libero |
| Box auto | Singolo |
| Numero posti auto | 2 |
Caratteristiche
Costi
| Prezzo | 170.000 € |
| Prezzo al m2 | 1.382 €/m2 |
Efficienza energetica
| Riscaldamento | Autonomo |
| Classe energetica | G |
| Indice di prestazione energetica (IPE) | 206 kWh/m2 anno |
Planimetrie
Virtual tour
Indirizzo e mappa
VIA SAN ZENO, Treviso
Annuncio senza mappa,
prova a chiedere la posizione all'inserzionista
prova a chiedere la posizione all'inserzionista
Calcolo mutuo
Prezzo di vendita:
Anticipo
20,00
Mutuo
80,00
Tasso: -+
Rata: 486 al mese
I risultati sono una stima indicativa basata sui dati inseriti e non costituiscono un’offerta finanziaria.
Inserzionista
Chiama
CONTATTA


