Locale Commerciale Acireale
€ 900 al mese
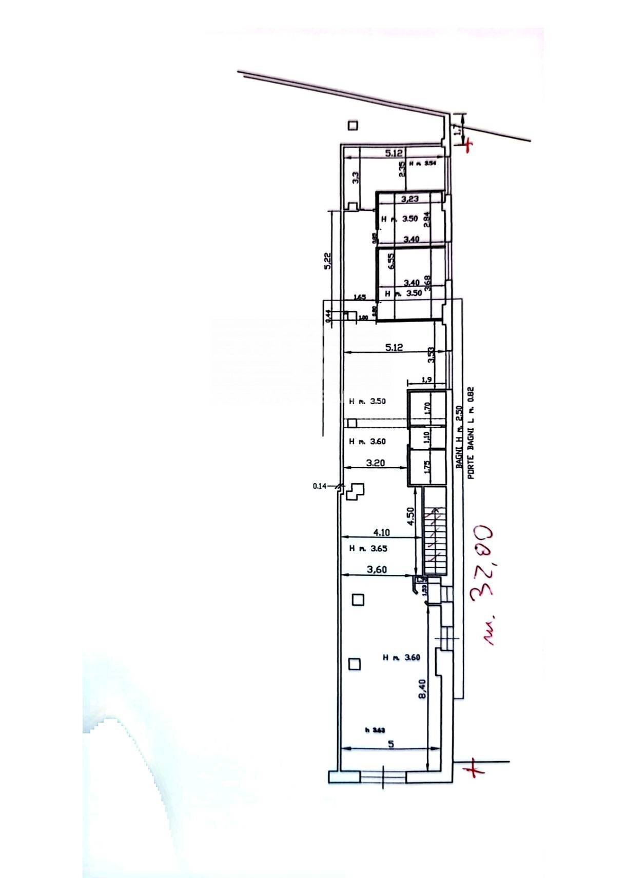
Coldwell Banker propone in locazione in Via paolo Vasta 21, bottega commerciale di ampia metratura , ci troviamo precisamente vicino alla posta centrale, provate solo ad immaginare l'affluenza di clientela che si potrebbe attirare..I locali si prestano a molteplici utilizzi, come ambulatorio, centro fisioterapico, palestra etc. Allo stato attuale potrebbe essere anche perfetto come centro estetico e/o SPA . Si tratta di un locale commerciale situato in una zona centrale, comoda e ben servita, che lo rende ideale per aprire una nuova attività. L'immobile si presenta in ottime condizioni, pronto per essere adibito a qualsiasi tipo di attività commerciale. Dispone di 4 locali, distribuiti su una superficie totale di 164 metri quadrati, possiede già anche i servizi per disabili, ciò permette di avere ampi spazi a disposizione, che possono essere sfruttati in modo ottimale per la propria attività. La struttura dispone inoltre di una grande vetrina, con vetrine scorrevoli a vetri , si affaccia sulla strada principale, perfetta per attirare l'attenzione dei passanti e per promuovere al meglio il proprio marchio e i propri prodotti . La posizione strategica e la qualità degli spazi rendono questo locale commerciale una soluzione ideale per chi desidera avviare una nuova attività a Acireale. Per maggiori dettagli chiamaci e fissa il tuo appuntamento.
Dati principali
| Riferimento | CBI178-2721-1026 |
| Data annuncio | 17/01/2026 |
| Contratto | Affitto |
| Tipologia | Locale Commerciale |
| Superficie | 164 m2 |
| Locali | 4 (4 altro), 2 bagni, cucina non presente |
| Occupato | Libero |
| Box auto | Assente |
Costi
| Prezzo | 900 € al mese |
Efficienza energetica
| Tipo Alimentazione Riscaldamento | Altro |
| Classe energetica | Immobile esente da certificazione energetica |
Indirizzo e mappa
Acireale
Annuncio senza mappa,
prova a chiedere la posizione all'inserzionista
prova a chiedere la posizione all'inserzionista
Inserzionista
Chiama
CONTATTA


