Villa a Schiera Decimomannu
€ 280.000
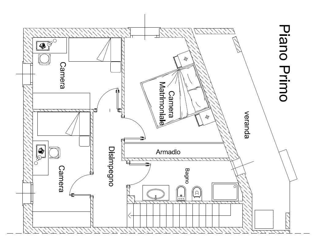
Allingresso di Decimomannu, in una delle zone residenziali piu tranquille e ricercate, stanno per prendere forma quattro eleganti villette bilivelli di nuova costruzione tipologia quadrivano, progettate per offrire comfort, qualità costruttiva e unatmosfera accogliente fin dal primo sguardo. Ogni unità abitativa si sviluppa su una superficie di circa 130 mq, distribuiti in modo armonioso per valorizzare la luce naturale e garantire ambienti funzionali e raffinati. Gli ampi balconi e il giardino fronteretro, pensati come estensione naturale della casa, regalano spazi perfetti per vivere momenti di relax allaria aperta. Completa la proprietà un posto auto privato, comodo e riservato. La costruzione si distingue per lutilizzo di materiali di altissimo livello, selezionati per garantire durabilità, estetica e prestazioni eccellenti, e per il rispetto delle migliori tecniche costruttive moderne. Le villette saranno dotate di impianto fotovoltaico da 3 kW e raggiungeranno la classe energetica A4, il massimo standard oggi disponibile, garanzia di efficienza, sostenibilità e risparmio energetico nel tempo. Essendo attualmente in fase di realizzazione, vi è la preziosa opportunità di personalizzare le rifiniture interne, modellando gli ambienti secondo il proprio gusto e stile di vita. La consegna è prevista per giugno 2026, un orizzonte perfetto per chi desidera programmare con serenità il proprio futuro in una casa nuova, moderna e costruita con cura. Euro 280.000,00. Per ulteriori informazioni sui nostri immobili, per visionarli se interessati o per trovare, tra le nostre numerose offerte, la soluzione perfetta per le vostre esigenze visitate il nostro sito http://www.cagliarisanbenedetto.limmobiliare.com/ oppure chiamateci ai numeri 070/497965-3914736339 e-mail [email protected]..
Dati principali
| Riferimento | 78 |
| Data annuncio | 17/01/2026 |
| Contratto | Vendita |
| Tipologia | Villa a Schiera |
| Superficie | 130 m2 |
| Locali | 3 (2 camere da letto, 1 altro), 2 bagni, cucina abitabile |
| Tipo di costruzione | Signorile |
| Occupato | Libero |
| Numero posti auto | 1 |
Caratteristiche
Costi
| Prezzo | 280.000 € |
| Prezzo al m2 | 2.154 €/m2 |
Efficienza energetica
| Riscaldamento | Autonomo |
| Tipo Impianto Di Riscaldamento | ad aria |
| Tipo Alimentazione Riscaldamento | Fotovoltaico |
| Classe energetica | A4 |
Indirizzo e mappa
Decimomannu
Annuncio senza mappa,
prova a chiedere la posizione all'inserzionista
prova a chiedere la posizione all'inserzionista
Calcolo mutuo
Prezzo di vendita:
Anticipo
20,00
Mutuo
80,00
Tasso: -+
Rata: 801 al mese
I risultati sono una stima indicativa basata sui dati inseriti e non costituiscono un’offerta finanziaria.
Inserzionista

L'IMMOBILIARE.COM CAGLIARI
Via Pergolesi n°1, Cagliari
Mostra Telefono
Mostra Cellulare
Chiama
CONTATTA

