Appartamento VIA STAZIONE, Crema
€ 260.000Appartamento - Bilocale a Crema
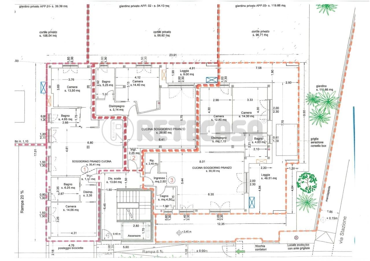
CREMA CENTRO IMPERDIBILE!!!! NUOVA COSTRUZIONE IN CLASSE A POSIZIONE CENTRALISSIMA, a due passi da Piazza Garibaldi, proponiamo PALAZZINA DI NUOVA COSTRUZIONE costituita da 12 unità immobiliari, ognuna dotata di box (singoli o doppi) Al piano primo disponibile BILOCALE così composto: ingresso, ampio soggiorno con angolo cottura, disimpegno, camera matrimoniale e bagno. Il bilocale gode di una bella LOGGIA sulla zona giorno attrezzabile per pranzi e cene all'aperto. L' abitazioni è servita da ascensore, le finiture interne sono a scelta dell'acquirente da capitolato di ottima qualità. La costruzione prevede: impianto di riscaldamento a pavimento in pompa di calore, cappotto esterno da 15 cm, serramenti esterni in legno con tripli vetri basso emissivi, sistema di ventilazione meccanica, predisposizione A/C, zanzariere, tapparelle elettriche e impianto fotovoltaico. TI ASPETTIAMO IN UFFICIO PER PRENOTARE LA TUA CASA DEL FUTURO!!! Classe A3 Alcuni dati descrittivi dell'immobile potrebbero essere solo approssimativi (es: spese di riscaldamento, spese condominiali e divisione superfici) e pertanto verranno forniti in modo completo solo telefonicamente oppure in fase di appuntamento. SI PRECISA che l'indirizzo pubblicato INDICA SOLO LA ZONA E/O LA DIREZIONE di ubicazione dell'immobile. Dettagli più precisi verranno forniti solo con contatto telefonico. Per maggiori informazioni o visite contattare senza impegno i numeri 0373/1996506 o 329/6772411. Se preferite, VENITE A CONOSCERCI DI PERSONA, ci trovate a Crema in Viale De Gasperi n. 25.
Dati principali
| Riferimento | CREMA3072loc |
| Data annuncio | 15/01/2026 |
| Contratto | Vendita |
| Tipologia | Appartamento |
| Superficie | 95 m2 |
| Locali | 2 (1 camera da letto, 1 altro), 1 bagno |
| Piano | 1 totali |
Costi
| Prezzo | 260.000 € |
| Prezzo al m2 | 2.737 €/m2 |
Efficienza energetica
| Anno costruzione | 2024 |
| Classe energetica | A+ |
| Indice di prestazione energetica (IPE) | - |
Planimetrie
Indirizzo e mappa
VIA STAZIONE, Crema
Calcolo mutuo
Prezzo di vendita:
Anticipo
20,00
Mutuo
80,00
Tasso: -+
Rata: 744 al mese
I risultati sono una stima indicativa basata sui dati inseriti e non costituiscono un’offerta finanziaria.
Inserzionista

Beni Immobili Srl
Viale De Gasperi 25, Crema
Mostra Telefono
Mostra Cellulare
Chiama
CONTATTA

