Trilocale VIA PISACANE, Pomezia
€ 129.000
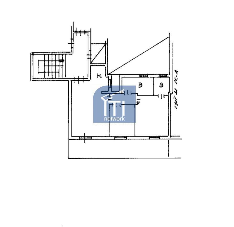
Pomezia, appartamento posto al quarto piano, con splendida vista sui Castelli romani e sul mare, composto da salone con accesso al terrazzo, cucinotto con balconcino finestrato, due camere da letto con porta finestra sul terrazzo, doppi servizi, di cui uno con vasca, entrambi con finestre, terrazzo perimetrale abitabile e box auto di proprietà. L'immobile è dotato di ascensore che conduce fino ai garage e tende da sole per tutto il perimetro del terrazzo. Sia gli infissi che le tende sono nuovi. Il riscaldamento è autonomo con relativa caldaia. Questo appartamento in vendita a Torvaianica , vicino Ardea, Anzio, Aprilia, Castelli Romani, Roma, Castel Romano, Cinecittà World, Zoo Marine ed è ubicato in una zona servita da mezzi pubblici. Le descrizioni del presente annuncio sono puramente indicative e pertanto non costituiscono vincolo contrattuale.
Dati principali
| Riferimento | 29/320 LELE |
| Data annuncio | 16/01/2026 |
| Contratto | Vendita |
| Tipologia | Appartamento |
| Superficie | 80 m2 |
| Locali | 3 (2 camere da letto, 1 altro), 2 bagni, cucina cucinino |
| Piano | 4 di 6 totali |
| Tipo di costruzione | Media |
| Occupato | Libero |
| Box auto | Singolo |
| Arredamento | Assente |
Caratteristiche
Costi
| Prezzo | 129.000 € |
| Prezzo al m2 | 1.613 €/m2 |
Efficienza energetica
| Stato | Ottimo |
| Riscaldamento | Autonomo |
| Classe energetica | G |
| Indice di prestazione energetica (IPE) | 3 kWh/m2 anno |
Planimetrie
Video
Indirizzo e mappa
VIA PISACANE, Pomezia
Annuncio senza mappa,
prova a chiedere la posizione all'inserzionista
prova a chiedere la posizione all'inserzionista
Calcolo mutuo
Prezzo di vendita:
Anticipo
20,00
Mutuo
80,00
Tasso: -+
Rata: 369 al mese
I risultati sono una stima indicativa basata sui dati inseriti e non costituiscono un’offerta finanziaria.
Inserzionista
Chiama
CONTATTA


