Locale Commerciale Via Amico Aspertini, Roma
€ 275.000
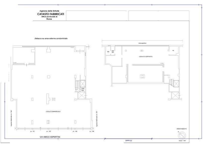
Ampio locale commerciale a reddito - Roma, Via Amico Aspertini Proponiamo in vendita uninteressante opportunità di investimento situata a Roma, in via Amico Aspertini, in una zona altamente commerciale. Il locale è inserito in un contesto particolarmente vivace, lungo un marciapiede dotato anche di parcheggio clienti, che ospita numerose attività di vicinato (bar, tabaccheria, supermercato, laboratorio analisi, panetteria, parrucchiere, frutteria, farmacia, ecc.), garantendo un continuo afflusso pedonale. Limmobile, di ampia metratura, si sviluppa su due livelli: Piano terra: locale C/1 di circa 255 mq, caratterizzato da grande luminosità e ottima visibilità grazie alle cinque vetrine su strada. Piano S/1: cantina/magazzino di circa 80 mq dotato di bagno, accessibile internamente sia tramite scala sia mediante montacarichi/ascensore, ideale come deposito merci. Il locale è inoltre dotato di una porta sul retro con ampio spazio antistante, molto funzionale per laccesso dei camion in fase di carico e scarico. Completa la proprietà un posto auto scoperto nel cortile condominiale, accessibile tramite cancello motorizzato. Attualmente limmobile è locato, garantendo unottima rendita annuale. Si trova in una zona ad alta densità abitativa, con uscita del Grande Raccordo Anulare nelle immediate vicinanze e a soli 1 km dallautostrada RomaNapoli. Lampiezza del locale e le numerose vetrine consentono inoltre la possibilità di realizzare due unità commerciali indipendenti.
Dati principali
| Riferimento | CBI038-1184-301675 |
| Data annuncio | 16/01/2026 |
| Contratto | Vendita |
| Tipologia | Locale Commerciale |
| Superficie | 355 m2 |
| Locali | 1 (1 altro), 1 bagno, cucina non presente |
| Piano | Su più livelli, 2 totali |
| Occupato | Libero |
| Box auto | Assente |
| Numero posti auto | 1 |
| Arredamento | Assente |
Caratteristiche
Costi
| Prezzo | 275.000 € |
| Prezzo al m2 | 775 €/m2 |
Efficienza energetica
| Riscaldamento | Assente |
| Tipo Alimentazione Riscaldamento | Altro |
| Classe energetica | F |
| Indice di prestazione energetica (IPE) | 99 kWh/m2 anno |
Planimetrie
Indirizzo e mappa
Via Amico Aspertini, Roma
Annuncio senza mappa,
prova a chiedere la posizione all'inserzionista
prova a chiedere la posizione all'inserzionista
Calcolo mutuo
Prezzo di vendita:
Anticipo
20,00
Mutuo
80,00
Tasso: -+
Rata: 786 al mese
I risultati sono una stima indicativa basata sui dati inseriti e non costituiscono un’offerta finanziaria.
Inserzionista

Coldwell Banker Gruppo Bodini
Via Orazio, 23, Roma
Mostra Telefono
Chiama
CONTATTA

