Villa Via Valdarno 3, Cassano Magnago
€ 1.500.000
Villa di Design Contemporaneo con Piscina a Cassano Magnago.
Nel comune di Cassano Magnago, proponiamo in vendita esclusiva una villa contemporanea di straordinaria bellezza, dove architettura, comfort e stile si fondono in un equilibrio perfetto.
Questa residenza di pregio, unica nel suo genere, si distingue per il design ricercato, gli ambienti luminosi e le finiture di altissimo livello.
Descrizione:
Al piano terra, la zona giorno ruota attorno a un suggestivo atrio a doppia altezza, che accoglie ambienti ariosi e raffinati.
Una cucina moderna su misura, separata dalla sala da pranzo con eleganti pareti in cristallo, si apre su una zona livingdal forte impatto scenografico, impreziosita da giochi di luce e tonalità calde.
Completano il piano uno studio e una camera per ospiti con bagno privato.
Al piano superiore, la suite padronale con cabina armadio e bagno en suite offre unoasi di privacy e relax. Unulteriore camera con bagno privato e due camere soppalcate completano il livello, una delle quali vanta un esclusivo terrazzo panoramico interno con vista sulla zona living e sulla piscina.
Il piano interrato ospita una taverna, lavanderia, bagno di servizio e un garage multiplo capace di accogliere fino a cinque auto.
Esterni:
Gli spazi esterni rappresentano una naturale estensione degli interni, con ampie vetrate che si affacciano sulla piscina a sfioro e sul giardino privato.
Un contesto riservato, elegante e di grande fascino, ideale per chi cerca comfort, design e tranquillità a pochi minuti dai principali servizi.
Vicino allautostrada A8 MilanoVarese, con accesso comodo al casello di Gallarate (Busto ArsizioCassano Magnago).
Da lì:
Milano si raggiunge in circa 30 minuti
Varese in circa 15 minuti
Aeroporto di Malpensa in 20 minuti
con ottimi collegamenti anche via mezzi pubblici.
Nel comune di Cassano Magnago, proponiamo in vendita esclusiva una villa contemporanea di straordinaria bellezza, dove architettura, comfort e stile si fondono in un equilibrio perfetto.
Questa residenza di pregio, unica nel suo genere, si distingue per il design ricercato, gli ambienti luminosi e le finiture di altissimo livello.
Descrizione:
Al piano terra, la zona giorno ruota attorno a un suggestivo atrio a doppia altezza, che accoglie ambienti ariosi e raffinati.
Una cucina moderna su misura, separata dalla sala da pranzo con eleganti pareti in cristallo, si apre su una zona livingdal forte impatto scenografico, impreziosita da giochi di luce e tonalità calde.
Completano il piano uno studio e una camera per ospiti con bagno privato.
Al piano superiore, la suite padronale con cabina armadio e bagno en suite offre unoasi di privacy e relax. Unulteriore camera con bagno privato e due camere soppalcate completano il livello, una delle quali vanta un esclusivo terrazzo panoramico interno con vista sulla zona living e sulla piscina.
Il piano interrato ospita una taverna, lavanderia, bagno di servizio e un garage multiplo capace di accogliere fino a cinque auto.
Esterni:
Gli spazi esterni rappresentano una naturale estensione degli interni, con ampie vetrate che si affacciano sulla piscina a sfioro e sul giardino privato.
Un contesto riservato, elegante e di grande fascino, ideale per chi cerca comfort, design e tranquillità a pochi minuti dai principali servizi.
Vicino allautostrada A8 MilanoVarese, con accesso comodo al casello di Gallarate (Busto ArsizioCassano Magnago).
Da lì:
Milano si raggiunge in circa 30 minuti
Varese in circa 15 minuti
Aeroporto di Malpensa in 20 minuti
con ottimi collegamenti anche via mezzi pubblici.
Dati principali
| Riferimento | CBI135-2953-2654 |
| Data annuncio | 15/01/2026 |
| Contratto | Vendita |
| Tipologia | Villa |
| Superficie | 700 m2 |
| Locali | più di 5 (5 camere da letto, 3 altro), 5 bagni, cucina abitabile |
| Piano | Su più livelli, 3 totali |
| Tipo di costruzione | Media |
| Occupato | Libero |
| Box auto | Doppio |
| Numero posti auto | 2 |
| Arredamento | Assente |
Caratteristiche
Costi
| Prezzo | 1.500.000 € |
| Prezzo al m2 | 2.143 €/m2 |
Efficienza energetica
| Stato | Parzialmente ristrutturato |
| Riscaldamento | Autonomo |
| Tipo Impianto Di Riscaldamento | a pavimento |
| Classe energetica | C |
| Indice di prestazione energetica (IPE) | 206 kWh/m2 anno |
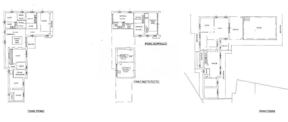
Planimetrie
Indirizzo e mappa
Via Valdarno
3, Cassano Magnago
Annuncio senza mappa,
prova a chiedere la posizione all'inserzionista
prova a chiedere la posizione all'inserzionista
Calcolo mutuo
Prezzo di vendita:
Anticipo
20,00
Mutuo
80,00
Tasso: -+
Rata: 4.290 al mese
I risultati sono una stima indicativa basata sui dati inseriti e non costituiscono un’offerta finanziaria.
Inserzionista

Coldwell Banker Immobiliare Morabito
Corso Sempione, 44, Milano
Mostra Cellulare
Morabito Francesco
Mostra Telefono
Chiama
CONTATTA