Casa semi indipendente Piazza Livio Sategna, Baldissero Canavese
€ 39.000Casa semindipendente in vendita
Nel cuore del comune di Baldissero Canavese, con comodo accesso alla Valchiusella, casa semindipendente con appezzamento di terreno a pochi passi dall'immobile.
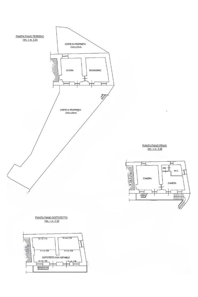
Questa soluzione si sviluppa su tre livelli; il piano terreno ospita la zona giorno composta da cucina abitabile e ampio soggiorno.
La zona notte si sviluppa al piano primo, collegato con scala esterna, e ospita due camere da letto e un servizio.
Il piano secondo, ad oggi allo stato grezzo, ospita un ampio locale sottotetto.
A corredo della proprietà vi è un box auto e un appezzamento di terreno di circa ottocento metri.
Questa soluzione è ideale per chi è alla ricerca di un immobile in zona comoda ai servizi e da poter modificare in base alle proprie esigenze.
Questa soluzione si sviluppa su tre livelli; il piano terreno ospita la zona giorno composta da cucina abitabile e ampio soggiorno.
La zona notte si sviluppa al piano primo, collegato con scala esterna, e ospita due camere da letto e un servizio.
Il piano secondo, ad oggi allo stato grezzo, ospita un ampio locale sottotetto.
A corredo della proprietà vi è un box auto e un appezzamento di terreno di circa ottocento metri.
Questa soluzione è ideale per chi è alla ricerca di un immobile in zona comoda ai servizi e da poter modificare in base alle proprie esigenze.
Dati principali
| Riferimento | 61161520 |
| Data annuncio | 14/01/2026 |
| Contratto | Vendita |
| Tipologia | Casa semi indipendente |
| Superficie | 80 m2 |
| Locali | 4 (4 altro), 1 bagno |
| Piano | 3 di 3 totali |
| Numero posti auto | 1 |
Costi
| Prezzo | 39.000 € |
| Prezzo al m2 | 488 €/m2 |
Efficienza energetica
| Anno costruzione | 1967 |
| Riscaldamento | Autonomo |
| Tipo Alimentazione Riscaldamento | Metano |
| Classe energetica | G |
| Indice di prestazione energetica (EP GL, NREN) | 439.6 kWh/m3 anno |
Planimetrie
Video
Indirizzo e mappa
Piazza Livio Sategna, Baldissero Canavese
Calcolo mutuo
Prezzo di vendita:
Anticipo
20,00
Mutuo
80,00
Tasso: -+
Rata: 112 al mese
I risultati sono una stima indicativa basata sui dati inseriti e non costituiscono un’offerta finanziaria.
Inserzionista
Chiama
CONTATTA

