Villa Via Giacinta Pezzana, Roma
€ 690.000
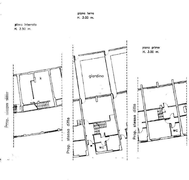
Vendita Nuda Proprietà Via Giacinta Pezzana 109 Accanto al Circolo Acqua Aniene Nel cuore della prestigiosa zona Parioli, a pochi passi dal Circolo Acqua Aniene, proponiamo in vendita la nuda proprietà di una residenza esclusiva di 190 mq interni, immersa nella tranquillità e nel verde di un contesto residenziale riservato e ben curato, con servizio di portineria. La proprietà si sviluppa su tre livelli, con ingresso indipendente e un affaccio sul verde, offrendo la sensazione di vivere in una vera e propria villa in città. Al piano terra, si viene accolti da un elegante ingresso che conduce al luminoso salone con camino, impreziosito da unuscita diretta sul giardino pavimentato, uno spazio esterno privato dove godere della quiete, organizzare cene allaperto o semplicemente rilassarsi immersi nel verde. Su questo stesso livello si trovano una camera da letto matrimoniale e un bagno finestrato, comodo e ben rifinito. Al primo piano, due ampie camere da letto offrono affacci panoramici sul parco condominiale, circondate dal silenzio e dalla luce naturale; un bagno finestrato e armadiature a muro completano la zona notte con funzionalità e comfort. Scendendo invece al piano seminterrato troviamo una calda e conviviale zona giorno: area pranzo, un pratico angolo cottura, la zona lavanderia e un ripostiglio. Ambienti versatili e ben organizzati, ideali anche come zona di servizio o per ospiti. L'immobile vanta anche un comodo e prezioso posto auto condominiale. Questa proprietà rappresenta un'opportunità unica per investitori o famiglie lungimiranti: lacquisto della nuda proprietà consente di acquisire oggi un bene di pregio a un valore significativamente inferiore rispetto al prezzo di mercato, con la prospettiva di un importante apprezzamento futuro. Un investimento sicuro e strategico in una delle aree più ambite e richieste di Roma, perfetta combinazione tra eleganza, tranquillità e potenziale economico.
Dati principali
| Riferimento | CBI100-1562-290735 |
| Data annuncio | 14/01/2026 |
| Contratto | Vendita |
| Tipologia | Villa |
| Superficie | 200 m2 |
| Locali | 5 (3 camere da letto, 2 altro), 2 bagni, cucina semi abitabile |
| Piano | Su più livelli, 3 totali |
| Tipo di costruzione | Signorile |
| Occupato | Libero |
| Numero posti auto | 1 |
| Arredamento | Parziale |
Caratteristiche
Costi
| Prezzo | 690.000 € |
| Prezzo al m2 | 3.450 €/m2 |
Efficienza energetica
| Stato | Buono |
| Riscaldamento | Centralizzato |
| Classe energetica | G |
| Indice di prestazione energetica (IPE) | 175 kWh/m2 anno |
Planimetrie
Virtual tour
Indirizzo e mappa
Via Giacinta Pezzana, Roma
Annuncio senza mappa,
prova a chiedere la posizione all'inserzionista
prova a chiedere la posizione all'inserzionista
Calcolo mutuo
Prezzo di vendita:
Anticipo
20,00
Mutuo
80,00
Tasso: -+
Rata: 1.973 al mese
I risultati sono una stima indicativa basata sui dati inseriti e non costituiscono un’offerta finanziaria.
Inserzionista
Chiama
CONTATTA


