Trilocale Via lecco, Milano
€ 495.000Trilocale in vendita
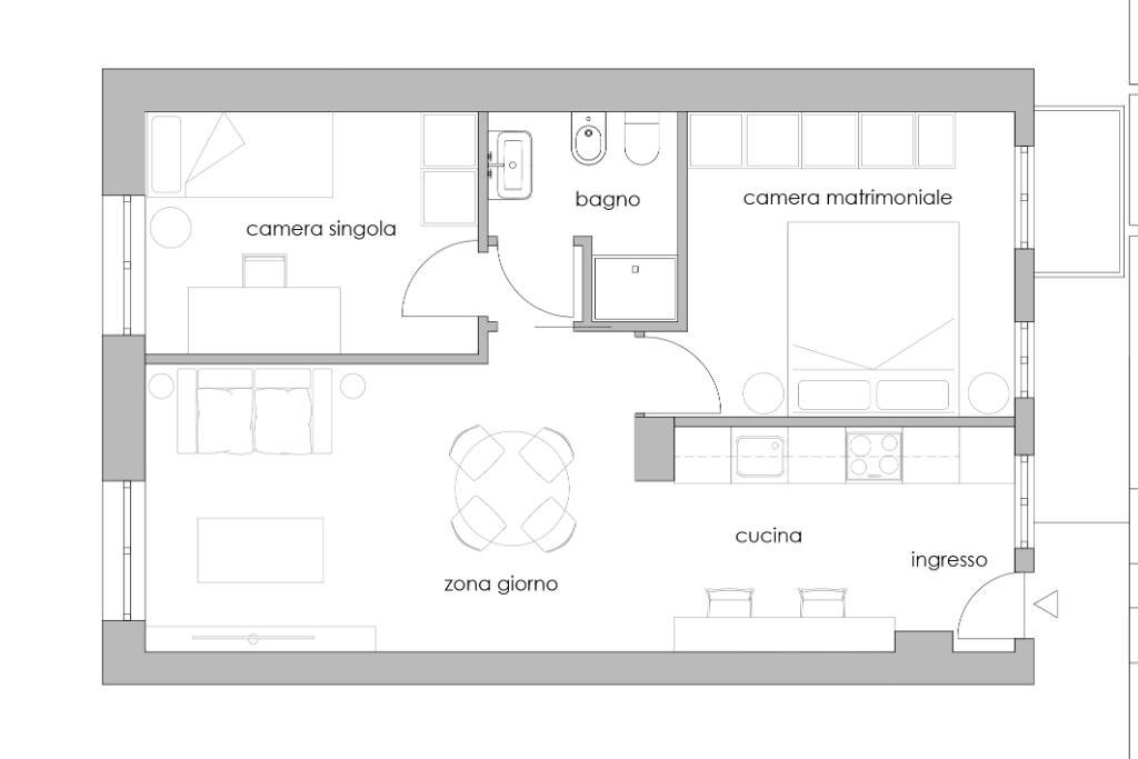
Questo trilocale in fase di ristrutturazione rappresenta un'opportunità unica nel panorama immobiliare milanese. Con una superficie ben distribuita, l'appartamento offre spazi luminosi e versatili, ideali per essere personalizzati secondo i propri gusti e necessità. La zona giorno, spaziosa e accogliente, è perfetta per momenti di convivialità, mentre le camere da letto sono progettate per garantire il massimo comfort e privacy. La vicinanza a Corso Buenos Aires, una delle arterie commerciali più note della città, assicura una vita dinamica e ricca di opportunità. Inoltre, la presenza di doppi ascensori e il servizio di portineria aumentano la sicurezza e la comodità dell'edificio. Che sia per investimento o per un utilizzo personale, questo immobile promette di soddisfare le aspettative più elevate di chi desidera vivere nel cuore pulsante di Milano.
Dati principali
| Riferimento | 61161263 |
| Data annuncio | 13/01/2026 |
| Contratto | Vendita |
| Tipologia | Appartamento |
| Superficie | 59 m2 |
| Locali | 3 (3 altro), 1 bagno |
| Piano | 3 di 7 totali |
Costi
| Prezzo | 495.000 € |
| Prezzo al m2 | 8.390 €/m2 |
| Spese condominiali | € 167,00/mese |
Efficienza energetica
| Anno costruzione | 1960 |
| Riscaldamento | Autonomo |
| Tipo Alimentazione Riscaldamento | Gasolio |
| Classe energetica | D |
| Indice di prestazione energetica (EP GL, NREN) | 183.72 kWh/m3 anno |
Planimetrie
Indirizzo e mappa
Via lecco, Milano
Calcolo mutuo
Prezzo di vendita:
Anticipo
20,00
Mutuo
80,00
Tasso: -+
Rata: 1.416 al mese
I risultati sono una stima indicativa basata sui dati inseriti e non costituiscono un’offerta finanziaria.
Inserzionista
Chiama
CONTATTA

