Villa Via Canova, Rivalta di Torino
€ 339.000Villa singola in vendita
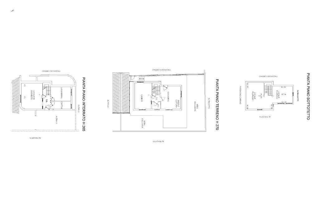
In contesto residenziale di poche unità, proponiamo villa singola costruita nel 2008.
L’ingresso si apre su un luminoso soggiorno, separato dalla spaziosa cucina abitabile; entrambi gli ambienti godono di accesso diretto all’area esterna.
Completa il piano terra un bagno di servizio finestrato.
Salendo al piano mansardato troviamo due camere da letto, entrambe dotate di cabina armadio, oltre al bagno con vasca.
Al piano interrato si sviluppa un'ampia taverna con camino a pellet, la lavanderia con doccia e sanitari, una cabina armadio e un comodo ripostiglio nel sottoscala.
Completa la proprietà il box auto doppio.
L’area esterna di circa 300 mq è suddivisa tra zona verde e area piastrellata, ideale per momenti di relax all’aperto.
La posizione è tranquilla, pur rimanendo comoda ai principali servizi.
L’ingresso si apre su un luminoso soggiorno, separato dalla spaziosa cucina abitabile; entrambi gli ambienti godono di accesso diretto all’area esterna.
Completa il piano terra un bagno di servizio finestrato.
Salendo al piano mansardato troviamo due camere da letto, entrambe dotate di cabina armadio, oltre al bagno con vasca.
Al piano interrato si sviluppa un'ampia taverna con camino a pellet, la lavanderia con doccia e sanitari, una cabina armadio e un comodo ripostiglio nel sottoscala.
Completa la proprietà il box auto doppio.
L’area esterna di circa 300 mq è suddivisa tra zona verde e area piastrellata, ideale per momenti di relax all’aperto.
La posizione è tranquilla, pur rimanendo comoda ai principali servizi.
Dati principali
| Riferimento | 61161425 |
| Data annuncio | 13/01/2026 |
| Contratto | Vendita |
| Tipologia | Villa |
| Superficie | 220 m2 |
| Locali | 4 (4 altro), 3 bagni |
| Piano | 1 totali |
Costi
| Prezzo | 339.000 € |
| Prezzo al m2 | 1.541 €/m2 |
| Spese condominiali | € 42,00/mese |
Efficienza energetica
| Anno costruzione | 2008 |
| Riscaldamento | Autonomo |
| Tipo Alimentazione Riscaldamento | Metano |
| Classe energetica | C |
| Indice di prestazione energetica (EP GL, REN) | 142.35 kWh/m3 anno |
| Indice di prestazione energetica (EP GL, NREN) | 142.35 kWh/m3 anno |
Planimetrie
Video
Indirizzo e mappa
Via Canova, Rivalta di Torino
Calcolo mutuo
Prezzo di vendita:
Anticipo
20,00
Mutuo
80,00
Tasso: -+
Rata: 970 al mese
I risultati sono una stima indicativa basata sui dati inseriti e non costituiscono un’offerta finanziaria.
Inserzionista
Chiama
CONTATTA

