Appartamento all'asta Via XV Febbraio 10, Follo
€ 76.500Appartamento - Quadrilocale a Follo
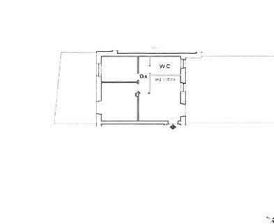
Quota di 1/1 di piena proprietà di appartamento con ingresso indipendente della superficie commerciale di 71,70 mq. facente parte di un compendio immobiliare di recente edificazione con parti ancora in corso costruzione, sito in località Pian di Follo, in Via XV Febbraio 10/A, Comune di Follo (SP). L'appartamento posto al piano terra è composto da soggiorno con angolo cottura, disimpegno, due camere e servizio igienico, - Il Prezzo visualizzato è la Base d'Asta in quanto l’immobile è oggetto di esecuzione immobiliare venduto tramite Asta Giudiziaria. - L'immobile aggiudicato, viene venduto libero e sgombro da persone cose ed ipoteche nello stato di fatto e di diritto in cui si trova. - Non rappresentiamo il Tribunale, ma lavoriamo nell'esclusivo interesse del potenziale acquirente per garantire un acquisto sicuro. - I consulenti di ASTE ITALIA ti assisteranno in tutte le attività dell'iter giudiziario dalla visita dell'immobile fino alla consegna chiavi. - Contatta il nostro Servizio Clienti , i nostri operatori sono a disposizione per chiarire i molteplici dubbi per partecipare alle ASTE.
Dati principali
| Riferimento | SP92/20L6-2304-26-1115 |
| Data annuncio | 29/08/2023 |
| Contratto | Vendita |
| Tipologia | Appartamento |
| Superficie | 72 m2 |
| Locali | 4 (2 camere da letto, 2 altro), 1 bagno |
| Piano | 1 totali |
Costi
| Offerta minima | € 76.500 |
| Prezzo al m2 | 1.063 €/m2 |
Efficienza energetica
| Classe energetica | G |
Planimetrie
Indirizzo e mappa
Via XV Febbraio 10, Follo
Calcolo mutuo
Prezzo di vendita:
Anticipo
20,00
Mutuo
80,00
Tasso: -+
Rata: 219 al mese
I risultati sono una stima indicativa basata sui dati inseriti e non costituiscono un’offerta finanziaria.
Inserzionista

DOMY ONLINE S.R.L.
Via San Lorenzo 5 Int. 41, Genova
Mostra Telefono
Mostra Cellulare
Chiama
CONTATTA

