Mansarda all'asta Via Beggiola 2, Follo
€ 57.750Appartamento - Mansarda a Follo
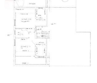
Quota di 1/1 di piena proprietà di appartamento posto al piano secondo sottotetto di fabbricato in Via Beggiola 2, frazione Pian di Follo, Comune di Follo (SP) della superficie commerciale di 62,00 mq., composto da ingresso su soggiorno con zona cottura e balcone, disimpegno, servizio igienico, due camere e un ripostiglio per una superficie esterna lorda di 65,00 mq oltre a una terrazza di 14,00 mq. L’immobile risulta difforme rispetto a quanto autorizzato e, pertanto, non è conforme catastalmente ma regolarizzabile. Inoltre, il medesimo non risulta conforme urbanisticamente ma regolarizzabile. Immobile costruito nel 1970 e ristrutturato nel 2007. - Il Prezzo visualizzato è la Base d'Asta in quanto l’immobile è oggetto di esecuzione immobiliare venduto tramite Asta Giudiziaria. - L'immobile aggiudicato, viene venduto libero e sgombro da persone cose ed ipoteche nello stato di fatto e di diritto in cui si trova. - Non rappresentiamo il Tribunale, ma lavoriamo nell'esclusivo interesse del potenziale acquirente per garantire un acquisto sicuro. - I consulenti di ASTE ITALIA ti assisteranno in tutte le attività dell'iter giudiziario dalla visita dell'immobile fino alla consegna chiavi. - Contatta il nostro Servizio Clienti , i nostri operatori sono a disposizione per chiarire i molteplici dubbi per partecipare alle ASTE.
Dati principali
| Riferimento | SP92/20L10-0705-26-1115 |
| Data annuncio | 01/09/2023 |
| Contratto | Vendita |
| Tipologia | Mansarda |
| Superficie | 79 m2 |
| Locali | 5 (2 camere da letto, 3 altro), 1 bagno |
| Piano | 1 totali |
| Numero di terrazzi | 1 |
| Numero di balconi | 1 |
Costi
| Offerta minima | € 57.750 |
| Prezzo al m2 | 731 €/m2 |
Efficienza energetica
| Classe energetica | G |
Planimetrie
Indirizzo e mappa
Via Beggiola 2, Follo
Calcolo mutuo
Prezzo di vendita:
Anticipo
20,00
Mutuo
80,00
Tasso: -+
Rata: 165 al mese
I risultati sono una stima indicativa basata sui dati inseriti e non costituiscono un’offerta finanziaria.
Inserzionista

DOMY ONLINE S.R.L.
Via San Lorenzo 5 Int. 41, Genova
Mostra Telefono
Mostra Cellulare
Chiama
CONTATTA

