Casa indipendente Via 4 Novembre 45, Campoformido
€ 125.000
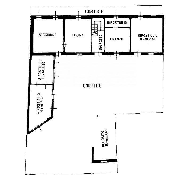
Vi proponiamo un terra cielo affiancato su un lato, adatto anche ad essere rivisto per ottenere 6 appartamenti. Attualmente l'immobile si sviluppa su tre livelli, al piano terra troviamo la zona giorno, cucina, sala da pranzo, soggiorno e un grande ripostiglio, gli ambienti adiacenti separati da pareti. La scala centrale ci porta al primo piano dove troviamo 4 camere, due disimpegni ed un bagno, al secondo ed ultimo piano troviamo il sotto tetto abitabile, diviso da pareti in tre grandi stanze. Esternamente dall'ampio cortile ci sono 3 depositi che possono essere sviluppati a piacere, lasciandoli come depositi o trasformarli in garage o zone abitabili. I rendering riportati nelle foto, mostrano l'alto potenziale dell'immobile grazie alle grandi dimensioni, resta valida l'opportunità di realizzare uno o più appartamenti d'affittare, data l'alta richiesta nella zona.
Dati principali
| Riferimento | GI564 |
| Data annuncio | 13/01/2026 |
| Contratto | Vendita |
| Tipologia | Casa indipendente |
| Superficie | 339 m2 |
| Locali | più di 5 (5 camere da letto, 8 altro), 1 bagno, cucina abitabile |
| Piano | Terra, 3 totali |
| Tipo di costruzione | Popolare |
| Occupato | Libero |
| Numero posti auto | 2 |
| Arredamento | Parziale |
Caratteristiche
Costi
| Prezzo | 125.000 € |
| Prezzo al m2 | 369 €/m2 |
Efficienza energetica
| Riscaldamento | Autonomo |
| Classe energetica | F |
| Indice di prestazione energetica (IPE) | - |
Planimetrie
Indirizzo e mappa
Via 4 Novembre
45, Campoformido
Annuncio senza mappa,
prova a chiedere la posizione all'inserzionista
prova a chiedere la posizione all'inserzionista
Calcolo mutuo
Prezzo di vendita:
Anticipo
20,00
Mutuo
80,00
Tasso: -+
Rata: 357 al mese
I risultati sono una stima indicativa basata sui dati inseriti e non costituiscono un’offerta finanziaria.
Inserzionista

Evol
Viale Venezia 494, Udine
Mostra Telefono
Mostra Cellulare
Chiama
CONTATTA

