Appartamento via Santo Garovaglio 65, Como
€ 1.300.000
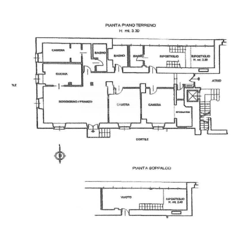
Appartamento di pregio nel centro storico di Como (CO) In uno dei quartieri più eleganti e ricercati del centro di Como, a pochi passi dal Duomo e dal lungolago, proponiamo in vendita un appartamento di grande prestigio, situato allinterno di un signorile palazzo depoca dei primi del Novecento. Un contesto esclusivo e silenzioso, immerso nella tranquillità di una zona residenziale raffinata, ma al tempo stesso a pochi minuti dal cuore pulsante della città. Labitazione, di ampia metratura 250 mq c.a., caratterizzata da una straordinaria luminosità, conserva tutto il fascino dellarchitettura depoca, unito al comfort delle moderne dotazioni. Lingresso si apre su un ampio salone di rappresentanza, con soffitti alti oltre 3,30 metri, che conferiscono profondità agli spazi. La cucina abitabile, separata e funzionale, è perfetta per chi ama vivere la convivialità quotidiana senza rinunciare alleleganza. La zona notte è composta da tre camere da letto accoglienti e da tre bagni finemente rifiniti, oltre a un comodo ripostiglio. La disposizione interna, equilibrata e razionale, consente una perfetta suddivisione tra area giorno e area notte, garantendo privacy e comfort. Ogni ambiente dellappartamento è curato con particolare attenzione ai materiali e ai dettagli. I pavimenti in pietra naturale nella zona giorno, mentre le camere sono arricchite da elegante parquet in legno massello. Gli infissi in legno con doppi vetri e chiusure battenti assicurano ottimo isolamento acustico e termico; le finestre motorizzate aggiungono un tocco di praticità e modernità, mentre il sistema di antifurto garantisce la massima sicurezza. La proprietà dispone inoltre di doppio ingresso, una caratteristica rara e preziosa che consente, se desiderato, di suddividere lappartamento in due unità abitative indipendenti, ideale per famiglie numerose o per chi desidera una zona dedicata a ospiti o studio professionale. A completare lofferta, un posto auto privato, elemento di grande valore in centro città, e due ampie cantine. Il condominio, ben curato e riservato, offre inoltre spazi comuni di utilità quotidiana, tra cui un deposito per biciclette e un locale di servizio condominiale. La zona Valduce rappresenta una delle aree più prestigiose e tranquille di Como centro. In pochi minuti a piedi si raggiungono lOspedale Valduce, le mura storiche, Piazza Duomo, le vie dello shopping e i ristoranti più rinomati della città. Il Lungolago di Como è anchesso facilmente raggiungibile a piedi, in meno di dieci minuti, offrendo la possibilità di godere delle passeggiate panoramiche e degli scorci suggestivi che rendono Como una delle città più affascinanti del nord Italia. La posizione è inoltre strategica per i collegamenti: in soli 5 minuti dauto si raggiunge il molo dei battelli con partenze verso Cernobbio, Moltrasio, Carate Urio, Argegno, Blevio, Torno e fino a Bellagio. Ottima anche la connessione con le principali arterie stradali, lautostrada A9 MilanoChiasso e la Svizzera, facilmente accessibili in pochi minuti. Questo appartamento rappresenta una soluzione perfetta per chi desidera una dimora di prestigio in una delle zone più ambite della città, dove il fascino storico si unisce alla praticità della vita urbana. Un luogo ideale per vivere Como con stile, comfort e autenticità.
Dati principali
| Riferimento | CBI135-2930-1968 |
| Data annuncio | 09/01/2026 |
| Contratto | Vendita |
| Tipologia | Appartamento |
| Superficie | 250 m2 |
| Locali | 5 (3 camere da letto, 2 altro), 3 bagni, cucina abitabile |
| Piano | Ammezzato, 2 totali |
| Tipo di costruzione | Signorile |
| Occupato | Libero |
| Box auto | Doppio |
| Numero posti auto | 2 |
| Arredamento | Assente |
Caratteristiche
Costi
| Prezzo | 1.300.000 € |
| Prezzo al m2 | 5.200 €/m2 |
Efficienza energetica
| Stato | Parzialmente ristrutturato |
| Riscaldamento | Centralizzato |
| Classe energetica | G |
| Indice di prestazione energetica (IPE) | 190 kWh/m2 anno |
Planimetrie
Indirizzo e mappa
via Santo Garovaglio
65, Como
Annuncio senza mappa,
prova a chiedere la posizione all'inserzionista
prova a chiedere la posizione all'inserzionista
Calcolo mutuo
Prezzo di vendita:
Anticipo
20,00
Mutuo
80,00
Tasso: -+
Rata: 3.718 al mese
I risultati sono una stima indicativa basata sui dati inseriti e non costituiscono un’offerta finanziaria.
Inserzionista

Coldwell Banker Immobiliare Morabito
Corso Sempione, 44, Milano
Mostra Cellulare
Morabito Francesco
Mostra Telefono
Chiama
CONTATTA

