Bilocale CASCINA CAVALLASCO, Pozzo d'Adda
€ 62.621
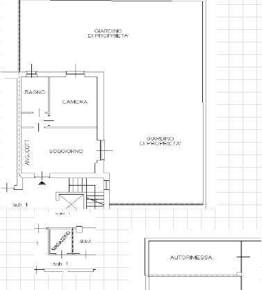
Appartamento composto da due locali con angolo cottura oltre servizio igienico e giardino al piano terra, con annesso vano di cantina al piano interrato, oltre a pertinenziale box ad uso autorimessa al piano interrato. 24 18423-8 Per ulteriori informazioni contattare il seguente recapito telefonico 02/9552248 oppure scrivete a [email protected]. MELPUM CASA è un punto di riferimento nel settore delle aste immobiliari. Il nostro team è composto da esperti professionisti in grado di soddisfare le esigenze del cliente, garantendo un adeguato servizio di consulenza in ogni fase dellacquisto, fino allimmissione in possesso dellimmobile. Affidarsi a noi significa acquisire un immobile in modo consapevole e con la massima chiarezza su tempistiche, costi e procedure. MELPUM CASA offre ulteriori servizi dedicati al cliente quali: - Broker per ottenimento mutuo - Preventivi di spesa riguardanti ristrutturazioni e/o manutenzioni - Redazione di pratiche edilizie e catastali - Intermediazione su future vendite o locazioni.
Dati principali
| Riferimento | 11979 |
| Data annuncio | 08/01/2026 |
| Contratto | Vendita |
| Tipologia | Appartamento |
| Superficie | 53 m2 |
| Locali | 2 (1 camera da letto, 1 altro), 1 bagno, cucina a vista |
| Piano | Terra |
| Box auto | Singolo |
| Arredamento | Assente |
Caratteristiche
Costi
| Prezzo | 62.621 € |
| Prezzo al m2 | 1.182 €/m2 |
Efficienza energetica
| Riscaldamento | Autonomo |
| Tipo Alimentazione Riscaldamento | Altro |
| Classe energetica | G |
| Indice di prestazione energetica (IPE) | 170 kWh/m2 anno |
Indirizzo e mappa
CASCINA CAVALLASCO, Pozzo d'Adda
Annuncio senza mappa,
prova a chiedere la posizione all'inserzionista
prova a chiedere la posizione all'inserzionista
Calcolo mutuo
Prezzo di vendita:
Anticipo
20,00
Mutuo
80,00
Tasso: -+
Rata: 179 al mese
I risultati sono una stima indicativa basata sui dati inseriti e non costituiscono un’offerta finanziaria.
Inserzionista

MELPUMCASA
Casanova,9, Melzo
Mostra Telefono
Chiama
CONTATTA

