Quadrilocale Corso Guglielmo Marconi, Sanremo
€ 270.000Quadrilocale in vendita
- IN ESCLUSIVA -
In posizione strategica a Sanremo, a pochi passi dall’Aurelia, proponiamo in vendita un appartamento che unisce comfort, luminosità e una splendida apertura verso il mare.
Il condominio è stato recentemente oggetto di ristrutturazione della facciata pertanto si presenta in ottime condizioni.
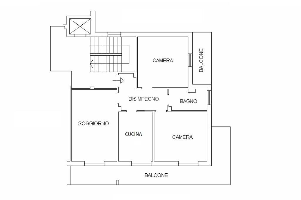
L’ingresso in casa ci accompagna in un accogliente soggiorno, separato dalla cucina abitabile, entrambi spazi ben organizzati e pensati per la vita quotidiana. La zona giorno, insieme a una delle camere da letto sono dotate di tapparelle elettriche e si affacciano su un ampio balcone con esposizione verso il mare, regalando una vista aperta e una piacevole continuità tra interno ed esterno, ideale per momenti di relax all’aria aperta.
La zona notte è composta da due camere da letto ben proporzionate, tutte con accesso allo spazio esterno, e da un bagno finestrato, elemento sempre più raro e prezioso. Ogni ambiente gode di ottima luminosità grazie alle ampie aperture, rendendo la casa ariosa e piacevole durante tutto l’arco della giornata.
L’immobile si presenta in ottime condizioni, pronto per essere abitato da subito, senza necessità di interventi. Il riscaldamento autonomo garantisce una gestione efficiente dei consumi.
Completa la proposta la possibilità di acquistare un posto auto privato al prezzo di €20.000, un valore aggiunto importante in una zona così richiesta.
Una soluzione ideale per chi cerca una casa comoda, ben posizionata e con una vista mare che fa la differenza, perfetta sia come prima abitazione che come casa per le vacanze a Sanremo.
In posizione strategica a Sanremo, a pochi passi dall’Aurelia, proponiamo in vendita un appartamento che unisce comfort, luminosità e una splendida apertura verso il mare.
Il condominio è stato recentemente oggetto di ristrutturazione della facciata pertanto si presenta in ottime condizioni.
L’ingresso in casa ci accompagna in un accogliente soggiorno, separato dalla cucina abitabile, entrambi spazi ben organizzati e pensati per la vita quotidiana. La zona giorno, insieme a una delle camere da letto sono dotate di tapparelle elettriche e si affacciano su un ampio balcone con esposizione verso il mare, regalando una vista aperta e una piacevole continuità tra interno ed esterno, ideale per momenti di relax all’aria aperta.
La zona notte è composta da due camere da letto ben proporzionate, tutte con accesso allo spazio esterno, e da un bagno finestrato, elemento sempre più raro e prezioso. Ogni ambiente gode di ottima luminosità grazie alle ampie aperture, rendendo la casa ariosa e piacevole durante tutto l’arco della giornata.
L’immobile si presenta in ottime condizioni, pronto per essere abitato da subito, senza necessità di interventi. Il riscaldamento autonomo garantisce una gestione efficiente dei consumi.
Completa la proposta la possibilità di acquistare un posto auto privato al prezzo di €20.000, un valore aggiunto importante in una zona così richiesta.
Una soluzione ideale per chi cerca una casa comoda, ben posizionata e con una vista mare che fa la differenza, perfetta sia come prima abitazione che come casa per le vacanze a Sanremo.
Dati principali
| Riferimento | 61158846 |
| Data annuncio | 04/01/2026 |
| Contratto | Vendita |
| Tipologia | Appartamento |
| Superficie | 92 m2 |
| Locali | 4 (4 altro), 1 bagno |
| Piano | 1 di 5 totali |
Costi
| Prezzo | 270.000 € |
| Prezzo al m2 | 2.935 €/m2 |
| Spese condominiali | € 83,00/mese |
Efficienza energetica
| Anno costruzione | 1958 |
| Riscaldamento | Autonomo |
| Tipo Alimentazione Riscaldamento | Metano |
| Classe energetica | E |
| Indice di prestazione energetica (EP GL, NREN) | 99.43 kWh/m3 anno |
Planimetrie
Video
Indirizzo e mappa
Corso Guglielmo Marconi, Sanremo
Calcolo mutuo
Prezzo di vendita:
Anticipo
20,00
Mutuo
80,00
Tasso: -+
Rata: 772 al mese
I risultati sono una stima indicativa basata sui dati inseriti e non costituiscono un’offerta finanziaria.
Inserzionista
Agenzia Tecnocasa Studio San Remo Sas
Via Roma, 191, Sanremo
Mostra Telefono
Chiama
CONTATTA

