Trilocale Castagnole Piemonte
€ 135.000
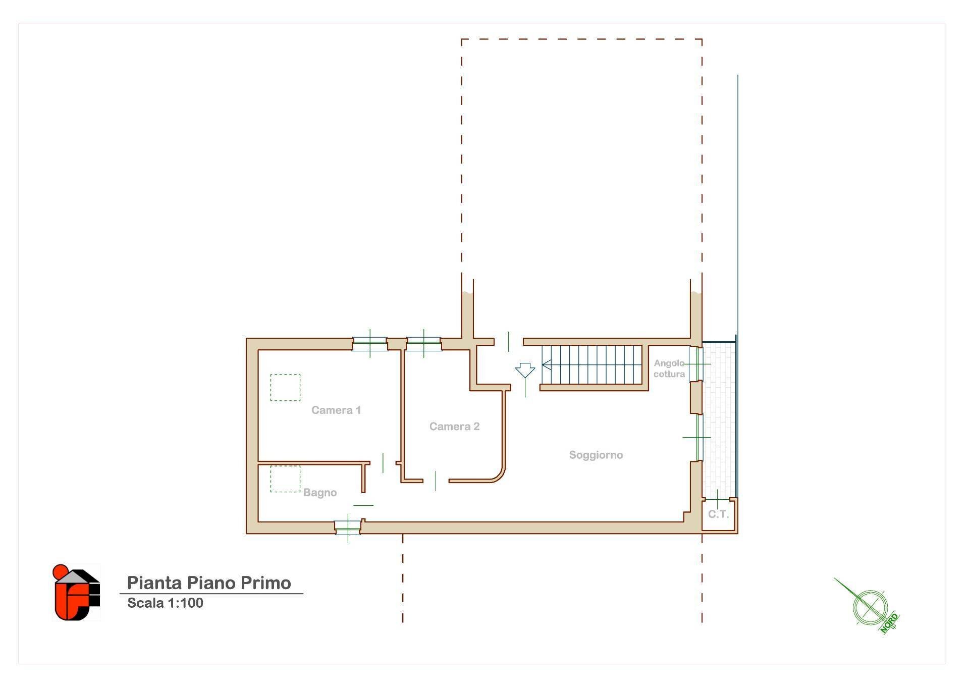
Castagnole Piemonte, vendesi appartamento posto all'ultimo piano di un cascinale ristrutturato interamente nel 2006. L'abitazione è composta da tre locali, perfetti per una coppia o una piccola famiglia. Ci sono due camere da letto, un comodo soggiorno con angolo cottura e un bagno moderno con tutti i comfort. Lo stato di conservazione dell'appartamento è ottimo, non ci sono lavori da fare e tutti gli impianti sono a norma. Gli infissi e le finestre sono in doppio vetro e legno, per garantire un'ottima isolamento termico e acustico. Inoltre, la presenza di un sistema di allarme rende l'abitazione ancora più sicura e tranquilla. L'appartamento viene venduto non arredato, in modo da dare la possibilità all'acquirente di personalizzare gli spazi a proprio gusto. Completa la proprietà un box auto singolo, perfetto per chi ha la macchina o la moto. L'appartamento dispone anche di una porzione di soffitta, per riporre oggetti. Il riscaldamento è autonomo, quindi i costi sono controllati e gestiti direttamente dal proprietario. Adatto sia per chi desidera una prima casa, sia per chi cerca un investimento immobiliare sicuro. Richiesta euro 135.000,00 trattabili.
Dati principali
| Riferimento | 86497 |
| Data annuncio | 03/01/2026 |
| Contratto | Vendita |
| Tipologia | Appartamento |
| Superficie | 75 m2 |
| Locali | 3 (2 camere da letto, 1 altro), 1 bagno, cucina angolo cottura |
| Piano | Ultimo piano, 2 totali |
| Tipo di costruzione | Media |
| Occupato | Libero |
| Box auto | Singolo |
| Arredamento | Assente |
Caratteristiche
Costi
| Prezzo | 135.000 € |
| Prezzo al m2 | 1.800 €/m2 |
Efficienza energetica
| Stato | Ottimo |
| Riscaldamento | Autonomo |
| Classe energetica | C |
| Indice di prestazione energetica (IPE) | - |
Planimetrie
Indirizzo e mappa
Castagnole Piemonte
Annuncio senza mappa,
prova a chiedere la posizione all'inserzionista
prova a chiedere la posizione all'inserzionista
Calcolo mutuo
Prezzo di vendita:
Anticipo
20,00
Mutuo
80,00
Tasso: -+
Rata: 386 al mese
I risultati sono una stima indicativa basata sui dati inseriti e non costituiscono un’offerta finanziaria.
Inserzionista

Immobiliare Ferrero
Piazza Marconi, 31, Vinovo
Mostra Telefono
Mostra Cellulare
Chiama
CONTATTA

