Quadrilocale Via Po, Torino (zona Centro)
€ 440.000Quadrilocale in vendita
Nel cuore di Torino, nella storica e iconica via Po, proponiamo in vendita un affascinante alloggio situato all’ultimo piano di uno stabile servito da ascensore, una soluzione rara e ricercata che regala luce, privacy e scorci unici sulla città.
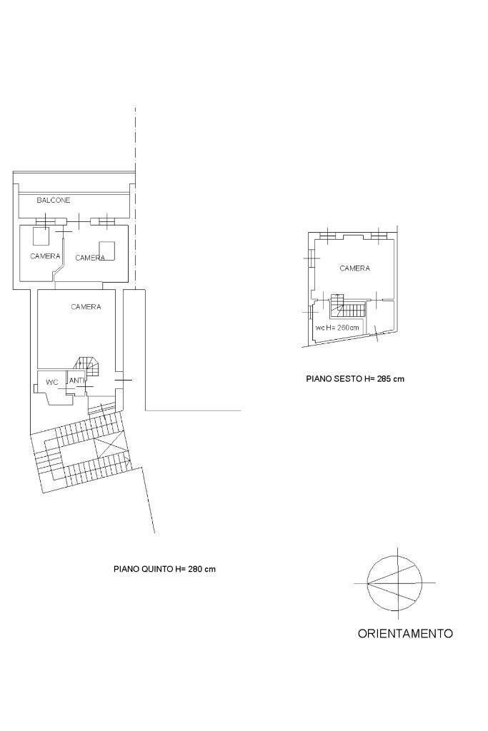
L’appartamento, di circa 100 mq, si sviluppa su due livelli e colpisce fin da subito per il suo carattere e la sua atmosfera. Al primo livello si apre un ampio soggiorno living con cucina a vista, uno spazio conviviale e accogliente impreziosito da splendidi soffitti a cassettoni e da un camino, elementi che raccontano la storia dell’edificio e donano calore e personalità all’ambiente. Dal soggiorno si accede al balcone, ideale per godersi un momento di relax affacciati su uno dei contesti più suggestivi del centro città. Completa il piano un bagno funzionale e ben distribuito.
Salendo al livello superiore si accede alla zona notte, dove trova spazio una camera da letto intima e silenziosa, arricchita da viste aperte e affascinanti su diversi scorci di Torino, tra cui il Monte dei Cappuccini e un elegante palazzo rinascimentale, che rendono l’ambiente unico e particolarmente suggestivo.
L’immobile è dotato di riscaldamento autonomo, caratteristica che garantisce comfort e una gestione efficiente dei consumi, con basse spese condominiali. Un ulteriore valore aggiunto è rappresentato dalla possibilità di frazionare l’alloggio in due unità abitative, rendendolo una soluzione interessante sia come abitazione principale sia come investimento.
Una proposta di grande charme, ideale per chi desidera vivere nel cuore della città, circondato dalla bellezza storica di Torino, senza rinunciare alla funzionalità e alla versatilità degli spazi.
L’appartamento, di circa 100 mq, si sviluppa su due livelli e colpisce fin da subito per il suo carattere e la sua atmosfera. Al primo livello si apre un ampio soggiorno living con cucina a vista, uno spazio conviviale e accogliente impreziosito da splendidi soffitti a cassettoni e da un camino, elementi che raccontano la storia dell’edificio e donano calore e personalità all’ambiente. Dal soggiorno si accede al balcone, ideale per godersi un momento di relax affacciati su uno dei contesti più suggestivi del centro città. Completa il piano un bagno funzionale e ben distribuito.
Salendo al livello superiore si accede alla zona notte, dove trova spazio una camera da letto intima e silenziosa, arricchita da viste aperte e affascinanti su diversi scorci di Torino, tra cui il Monte dei Cappuccini e un elegante palazzo rinascimentale, che rendono l’ambiente unico e particolarmente suggestivo.
L’immobile è dotato di riscaldamento autonomo, caratteristica che garantisce comfort e una gestione efficiente dei consumi, con basse spese condominiali. Un ulteriore valore aggiunto è rappresentato dalla possibilità di frazionare l’alloggio in due unità abitative, rendendolo una soluzione interessante sia come abitazione principale sia come investimento.
Una proposta di grande charme, ideale per chi desidera vivere nel cuore della città, circondato dalla bellezza storica di Torino, senza rinunciare alla funzionalità e alla versatilità degli spazi.
Dati principali
| Riferimento | 61158437 |
| Data annuncio | 31/12/2025 |
| Contratto | Vendita |
| Tipologia | Appartamento |
| Superficie | 100 m2 |
| Locali | 4 (4 altro), 2 bagni |
| Piano | 5 di 5 totali |
Costi
| Prezzo | 440.000 € |
| Prezzo al m2 | 4.400 €/m2 |
Efficienza energetica
| Anno costruzione | 1800 |
| Riscaldamento | Autonomo |
| Tipo Alimentazione Riscaldamento | Metano |
| Classe energetica | Immobile esente da certificazione energetica |
Planimetrie
Indirizzo e mappa
Via Po, Torino - quartiere Centro
Calcolo mutuo
Prezzo di vendita:
Anticipo
20,00
Mutuo
80,00
Tasso: -+
Rata: 1.258 al mese
I risultati sono una stima indicativa basata sui dati inseriti e non costituiscono un’offerta finanziaria.
Inserzionista
Agenzia Tecnocasa Studio Centro Sas
Via Giolitti, 18/E, Torino
Mostra Telefono
Chiama
CONTATTA

