Trilocale Via Quattrocase, Poggio Rusco
€ 109.000Trilocale in vendita
POGGIO RUSCO – In contesto tranquillo proponiamo maisonette con giardino comune senza spese condominiali.
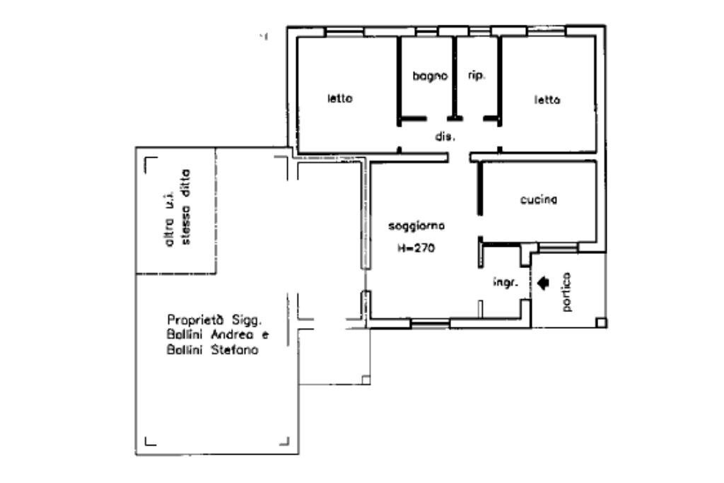
L’ingresso si apre su un soggiorno accogliente, affiancato da una cucina abitabile separata.
La zona notte è composta da due camere matrimoniali, un bagno finestrato e una comoda lavanderia.
L’immobile dispone di un garage comune e, a completare la proprietà, posto auto.
Per tutelare la privacy dei nostri clienti, l'indirizzo del presente annuncio potrebbe non corrispondere in maniera precisa all'esatta ubicazione dell'immobile.
Desideri conoscere il valore della tua casa? Chiamaci allo 0535.652477 per una valutazione gratuita e senza impegno.
L’ingresso si apre su un soggiorno accogliente, affiancato da una cucina abitabile separata.
La zona notte è composta da due camere matrimoniali, un bagno finestrato e una comoda lavanderia.
L’immobile dispone di un garage comune e, a completare la proprietà, posto auto.
Per tutelare la privacy dei nostri clienti, l'indirizzo del presente annuncio potrebbe non corrispondere in maniera precisa all'esatta ubicazione dell'immobile.
Desideri conoscere il valore della tua casa? Chiamaci allo 0535.652477 per una valutazione gratuita e senza impegno.
Dati principali
| Riferimento | 61157583 |
| Data annuncio | 30/12/2025 |
| Contratto | Vendita |
| Tipologia | Appartamento |
| Superficie | 93 m2 |
| Locali | 3 (3 altro), 1 bagno |
Costi
| Prezzo | 109.000 € |
| Prezzo al m2 | 1.172 €/m2 |
Efficienza energetica
| Anno costruzione | 2003 |
| Riscaldamento | Autonomo |
| Tipo Alimentazione Riscaldamento | Metano |
| Classe energetica | F |
| Indice di prestazione energetica (IPE) | - |
Planimetrie
Video
Indirizzo e mappa
Via Quattrocase, Poggio Rusco
Calcolo mutuo
Prezzo di vendita:
Anticipo
20,00
Mutuo
80,00
Tasso: -+
Rata: 312 al mese
I risultati sono una stima indicativa basata sui dati inseriti e non costituiscono un’offerta finanziaria.
Inserzionista
Chiama
CONTATTA

