Locale Commerciale Via Antonio Pisano 18, Verona
€ 99.000
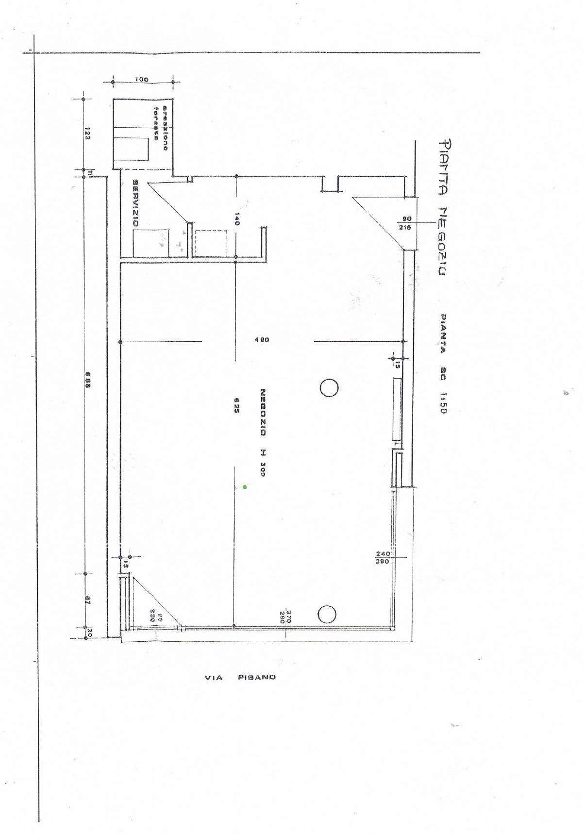
Negozio ristrutturato con vetrina angolare Borgo Venezia In zona Borgo Venezia, a ridosso di Piazza Isotta Nogarola, proponiamo in vendita negozio completamente ristrutturato, situato in via ad alto passaggio veicolare e pedonale. Limmobile gode di vetrina angolare, che garantisce ottima visibilità e luminosità, ed è inserito in un contesto di piccole dimensioni, con basse spese condominiali. Il negozio è climatizzato, in perfette condizioni e attualmente libero, pronto per essere utilizzato o messo a reddito senza necessità di ulteriori interventi. Posizione strategica anche in ottica futura: la via sarà interessata dal passaggio del filobus di prossima realizzazione, elemento che contribuirà ad aumentare ulteriormente visibilità e valore della zona. Soluzione ideale come investimento o per attività che necessitano di forte esposizione. Per maggiori informazioni o per fissare una visita, contattaci.
Dati principali
| Riferimento | 163 |
| Data annuncio | 26/12/2025 |
| Contratto | Vendita |
| Tipologia | Locale Commerciale |
| Superficie | 47 m2 |
| Locali | 2 (2 altro), 1 bagno |
| Piano | Terra |
| Occupato | Libero |
Costi
| Prezzo | 99.000 € |
| Prezzo al m2 | 2.106 €/m2 |
Efficienza energetica
| Tipo Alimentazione Riscaldamento | Altro |
| Classe energetica | Immobile esente da certificazione energetica |
Planimetrie
Indirizzo e mappa
Via Antonio Pisano
18, Verona
Annuncio senza mappa,
prova a chiedere la posizione all'inserzionista
prova a chiedere la posizione all'inserzionista
Calcolo mutuo
Prezzo di vendita:
Anticipo
20,00
Mutuo
80,00
Tasso: -+
Rata: 283 al mese
I risultati sono una stima indicativa basata sui dati inseriti e non costituiscono un’offerta finanziaria.
Inserzionista

Immobiliare Bazzoni
Largo Cà di Cozzi 34, Verona
Mostra Telefono
Chiama
CONTATTA

