Villa a Schiera Via Martin Luther King 6, Burago di Molgora
€ 245.000
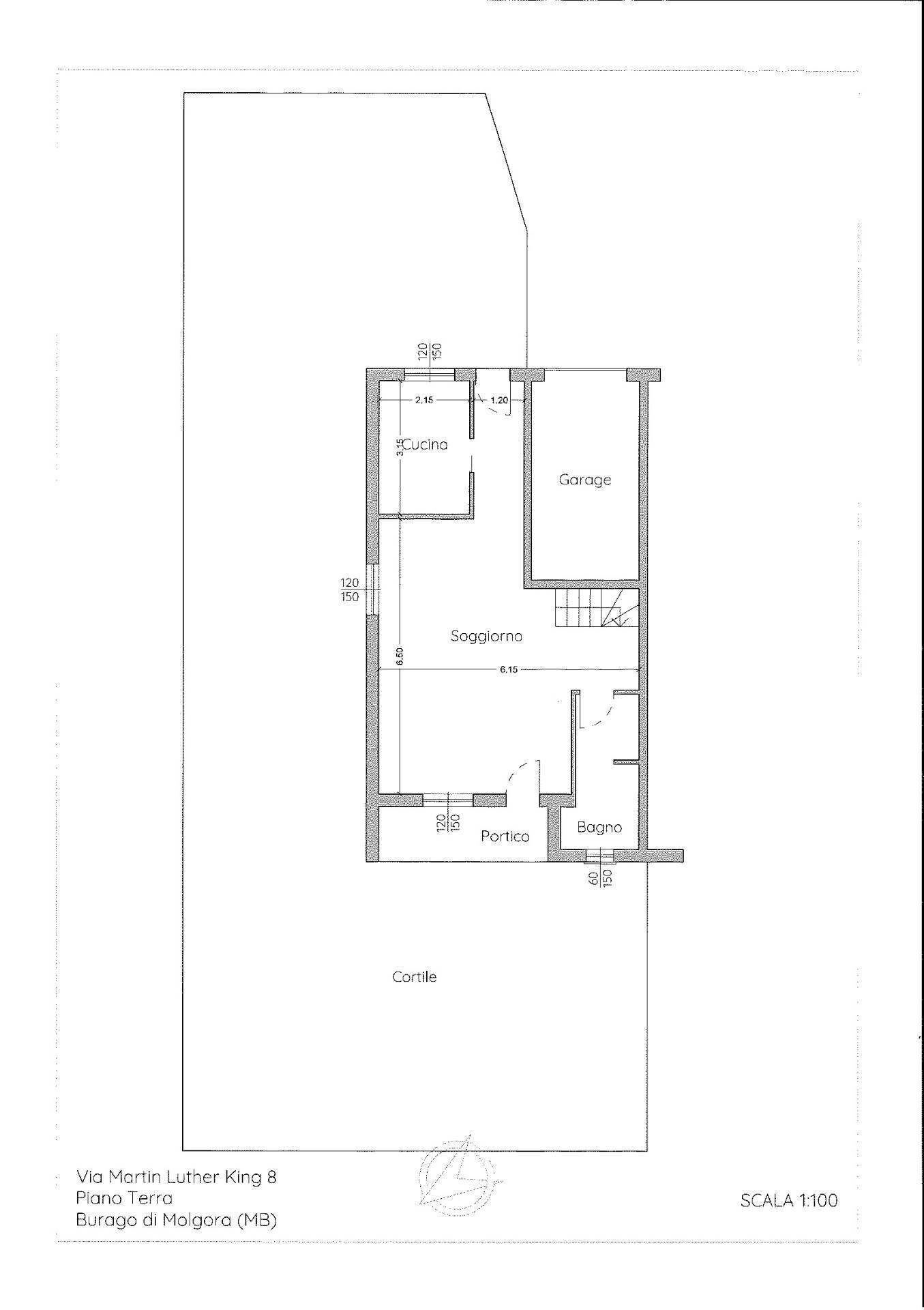
Burago di Molgora, zona residenziale, proponiamo villa a schiera di testa disposta su due livelli. Al piano terreno troviamo un'ampia zona giorno, la cucina abitabile e un bagno, i locali principali godono dell'uscita sul gradevole spazio esterno che si sviluppa sui tre lati liberi dell'abitazione avente come esposizione Est, Ovest e Nord. Al piano primo troviamo tre camere, un bagno e due balconi. L'immobile è stato oggetto di ristrutturazione parziale una decina di anni fa. Soluzione ideale per chi cerca una casa spaziosa, in una zona comoda e riservata. Box singolo in vendita ad 17.000,00. Consegna prevista a 10 mesi dal contratto preliminare.
Dati principali
| Riferimento | 2478 |
| Data annuncio | 25/12/2025 |
| Contratto | Vendita |
| Tipologia | Villa a Schiera |
| Superficie | 116 m2 |
| Locali | 4 (3 camere da letto, 1 altro), 2 bagni, cucina abitabile |
| Piano | Su più livelli, 2 totali |
| Box auto | Singolo |
| Arredamento | Assente |
Caratteristiche
Costi
| Prezzo | 245.000 € |
| Prezzo al m2 | 2.112 €/m2 |
Efficienza energetica
| Riscaldamento | Autonomo |
| Classe energetica | F |
| Indice di prestazione energetica (IPE) | 289 kWh/m2 anno |
Planimetrie
Video
Indirizzo e mappa
Via Martin Luther King
6, Burago di Molgora
Annuncio senza mappa,
prova a chiedere la posizione all'inserzionista
prova a chiedere la posizione all'inserzionista
Calcolo mutuo
Prezzo di vendita:
Anticipo
20,00
Mutuo
80,00
Tasso: -+
Rata: 701 al mese
I risultati sono una stima indicativa basata sui dati inseriti e non costituiscono un’offerta finanziaria.
Inserzionista

Puntocasa Vimercate
Via Mazzini n. 15, Vimercate
Mostra Telefono
Chiama
CONTATTA

