Villa a Schiera Via Arezzo, Cervia
€ 355.000Villa a schiera in vendita
PINARELLA - VILLETTA A SCHIERA RISTRUTTURATA:
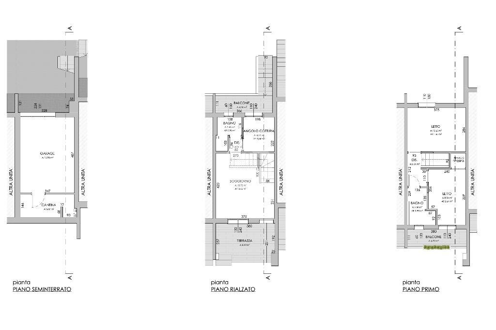
Tecnorete Pinarella propone in esclusiva una splendida villetta a schiera di circa 130 mq, completamente ristrutturata e caratterizzata da ambienti moderni, luminosi e curati in ogni dettaglio. La casa, costruita nel 1985 e oggi riportata a nuova vita grazie a un intervento di ristrutturazione totale, rappresenta una soluzione ideale per chi desidera vivere in un contesto residenziale tranquillo, ben servito e a pochi minuti dal mare.
L’ingresso indipendente introduce a un’abitazione accogliente e funzionale, pensata per garantire privacy e comfort in ogni stagione. Il soggiorno, separato dalla cucina è ben distribuito, perfetto per trascorrere momenti conviviali in famiglia o con gli amici. La zona notte comprende due camere da letto confortevoli e ben illuminate, mentre i tre bagni, entrambi rinnovati con materiali moderni e sanitari sospesi, offrono praticità ed eleganza.
A completare gli spazi interni troviamo una taverna versatile, ideale come ambiente relax, studio o area hobby, e un garage privato che aggiunge ulteriore comodità alla vita quotidiana.
Uno dei punti di forza della proprietà è il giardino privato, un vero valore aggiunto per chi ama vivere all’aperto, organizzare cene estive o semplicemente rilassarsi in un angolo verde riservato. L’abitazione è dotata di riscaldamento a pavimento e caldaia a condensazione, soluzioni che garantiscono un’elevata efficienza energetica e un comfort termico ottimale durante tutto l’anno. Gli impianti sono certificati e conformi alle normative vigenti, offrendo sicurezza e affidabilità.
La villetta si trova in una zona residenziale molto apprezzata, caratterizzata da tranquillità, servizi facilmente raggiungibili e un’atmosfera ideale per famiglie, coppie o chiunque desideri un’abitazione moderna e pronta da vivere.
Per informazioni oppure organizzare una visita, contattaci al 388 4580525 o al 328 2218151 o puoi scrivere alla mail ra2a3
Tecnorete Pinarella propone in esclusiva una splendida villetta a schiera di circa 130 mq, completamente ristrutturata e caratterizzata da ambienti moderni, luminosi e curati in ogni dettaglio. La casa, costruita nel 1985 e oggi riportata a nuova vita grazie a un intervento di ristrutturazione totale, rappresenta una soluzione ideale per chi desidera vivere in un contesto residenziale tranquillo, ben servito e a pochi minuti dal mare.
L’ingresso indipendente introduce a un’abitazione accogliente e funzionale, pensata per garantire privacy e comfort in ogni stagione. Il soggiorno, separato dalla cucina è ben distribuito, perfetto per trascorrere momenti conviviali in famiglia o con gli amici. La zona notte comprende due camere da letto confortevoli e ben illuminate, mentre i tre bagni, entrambi rinnovati con materiali moderni e sanitari sospesi, offrono praticità ed eleganza.
A completare gli spazi interni troviamo una taverna versatile, ideale come ambiente relax, studio o area hobby, e un garage privato che aggiunge ulteriore comodità alla vita quotidiana.
Uno dei punti di forza della proprietà è il giardino privato, un vero valore aggiunto per chi ama vivere all’aperto, organizzare cene estive o semplicemente rilassarsi in un angolo verde riservato. L’abitazione è dotata di riscaldamento a pavimento e caldaia a condensazione, soluzioni che garantiscono un’elevata efficienza energetica e un comfort termico ottimale durante tutto l’anno. Gli impianti sono certificati e conformi alle normative vigenti, offrendo sicurezza e affidabilità.
La villetta si trova in una zona residenziale molto apprezzata, caratterizzata da tranquillità, servizi facilmente raggiungibili e un’atmosfera ideale per famiglie, coppie o chiunque desideri un’abitazione moderna e pronta da vivere.
Per informazioni oppure organizzare una visita, contattaci al 388 4580525 o al 328 2218151 o puoi scrivere alla mail ra2a3
Dati principali
| Riferimento | 61156925 |
| Data annuncio | 23/12/2025 |
| Contratto | Vendita |
| Tipologia | Villa a Schiera |
| Superficie | 130 m2 |
| Locali | 3 (2 camere da letto, 1 altro), 3 bagni |
| Piano | 1 di 2 totali |
Costi
| Prezzo | 355.000 € |
| Prezzo al m2 | 2.731 €/m2 |
| Spese condominiali | € 25,00/mese |
Efficienza energetica
| Anno costruzione | 1985 |
| Riscaldamento | Autonomo |
| Classe energetica | C |
| Indice di prestazione energetica (IPE) | - |
Planimetrie
Indirizzo e mappa
Via Arezzo, Cervia
Calcolo mutuo
Prezzo di vendita:
Anticipo
20,00
Mutuo
80,00
Tasso: -+
Rata: 1.015 al mese
I risultati sono una stima indicativa basata sui dati inseriti e non costituiscono un’offerta finanziaria.
Inserzionista
Agenzia Tecnorete Studio Liberty Srl
Via Ravenna, 5, Cervia
Mostra Telefono
Chiama
CONTATTA

